Eladó felújítandó ház Balatonkenese
| Kedvencbe | Megosztás | Árfigyelő |
| FIX 3% lakáshitelre megvehető | ||
| 65 000 000 HUF | ||
Ingatlan adatai
- Eladó vagy kiadó:Eladó
- Település:Balatonkenese
- Kategória:Ház
- Alkategória:Családi ház
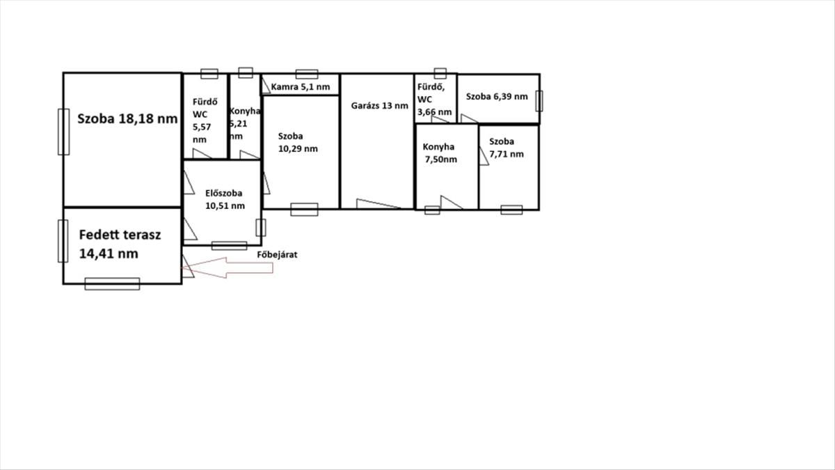
- Alapterület:108 m2
- Telekterület:523 m2
- Csere is:Nem
- Hirdető:Cég
- Élő videón megtekinthető:Nem
- Építés éve:1960
- Szobaszám:2 + 1 fél
- Állapot:Felújítandó
- Hány szintes az ingatlan:Földszintes
- Tetőtér:nincs megadva
- Komfortosság:nincs megadva
- Parkolási lehetőség:Udvaron
- Fűtés:Gáz (konvektor)
- Bútorozottság:nincs megadva
- Fényviszony:Jó
- Tájolás:nincs megadva
- Kilátás:nincs megadva
- Internet:nincs megadva
- Akadálymentesített:nincs megadva
- Energiatanúsítvány:F
- Villany:Van
- Víz:Van
- Gáz:Van
- Csatorna:Van
- Üzenetküldés
- Hívás
Referencia szám: BL132

Hitel ajánlat
Ingatlan hirdetés leírása
Balatonkenesén családi ház eladó
Balatonkenesén csendes utcába eladó egy felújításra szoruló családi ház. Hasznos alapterület 108 nm. a ház tégla falazatú, kő alapra épült. Tetőzete fa, héjazat bitumenes zsindely. a fő épületben kettő szoba összkomfort található, előszoba és egy fedett terasz is épült ehhez a részhez, a csatolt alaprajz szerint. Az épület folytatásában egy garázs található, majd közvetlen mellé, két szoba összkomfortos lakrész is épült. a tulajdonos elkezdte a felújítást, de nem szeretné azt befejezni.A ház az 1960-as években készült, a telek mérete 523 nm, teljes közmű.
A fűtést gázkonvektor biztosítja, a melegvizet villanybojler adja.
Csendes környék nem messze a vasútállomástól, de mégis nyugodt környezetben, nincs átmenő forgalom.
Hívjon bizalommal, visszahívom.
Referencia szám: bl132-ml FIX 3% lakáshitelre megvehető

