Eladó új építésű ház Balatonmáriafürdő
| Kedvencbe | Megosztás | Árfigyelő |
| FIX 3% lakáshitelre megvehető | ||
| 64 990 000 HUF | ||
Ingatlan adatai
- Eladó vagy kiadó:Eladó
- Település:Balatonmáriafürdő
- Kategória:Ház
- Alkategória:Családi ház
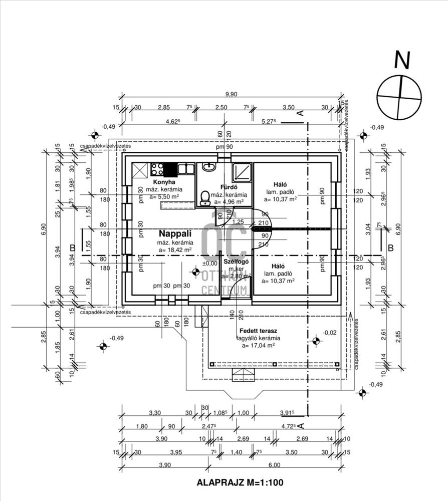
- Alapterület:80 m2
- Telekterület:450 m2
- Csere is:Nem
- Hirdető:Cég
- Élő videón megtekinthető:Nem
- Építés éve:2026
- Szobaszám:3
- Állapot:Új építésű
- Hány szintes az ingatlan:nincs megadva
- Tetőtér:nincs megadva
- Komfortosság:nincs megadva
- Parkolási lehetőség:nincs megadva
- Fűtés:Elektromos
- Bútorozottság:nincs megadva
- Fényviszony:nincs megadva
- Tájolás:DNY
- Kilátás:nincs megadva
- Internet:nincs megadva
- Akadálymentesített:nincs megadva
- Energiatanúsítvány:nincs megadva
- Villany:Van
- Víz:Van
- Gáz:Utcában
- Csatorna:Van
- Üzenetküldés
- Hívás


Hitel ajánlat
Ingatlan hirdetés leírása
Eladó új építésű ingatlan Balatonkeresztúron !
Fedezze fel ez...
Eladó új építésű ingatlan Balatonkeresztúron! Fedezze fel ezt a különleges lehetőséget, amely ideális otthont kínál Balatonkeresztúron, Somogy vármegyében. Az ingatlan egy újonnan épülő ház, amely prémium kivitelezésének köszönhetően várja új lakóit.
Ennek előnye, hogy az új tulajdonos választhatja ki a burkolatokat és még néhány dolgot.
Átadása 2026.
A ház jellemzői :
- 60 nm alapterülettel fog rendelkezni, amelyhez egy 450 nm-es telek tartozik
- Osztatlan közös telek, amely használati megállapodás keretében hasznosítható
- a házat 2 hálószobával, nappalival, fürdővel tervezték, amelyek lehetőséget adnak a kényelmes és modern életvitelre.
- a világos nappali ideális helyszíne a baráti összejöveteleknek.
- a ház egyedi tervezésű, amely a modern életstílushoz igazodik.
- a klíma gondoskodik a kellemes hőmérsékletről a nyári melegben és a téli hidegben egyaránt
- Az ingatlan 2026 végén kerül átadásra! !
Balatonkeresztúr csendes, biztonságos település, amely ideális hely mindenki számára. a közlekedési lehetőségek kiválóak: a közeli buszmegállók és vasútállomás gyors hozzáférést biztosítanak a környező városokhoz és a Balaton partjához.
A településen található üzletek, éttermek és szórakozási lehetőségek mind hozzájárulnak ahhoz, hogy itt élni valóban élvezetes legyen.
Ne hagyja ki ezt az egyedülálló lehetőséget, hogy egy modern, világos és tágas otthonra találjon Balatonkeresztúron!
Ha bármilyen kérdése van, vagy szeretne többet megtudni az ingatlanról, bizalommal keressen minket! FIX 3% lakáshitelre megvehető

