Eladó felújítandó ház - Belvárdgyula
- INGYENES HIRDETÉS FELADÁS
Ingatlan adatai
- Eladó vagy kiadó:Eladó
- Település:Belvárdgyula
- Kategória:Ház
- Alkategória:Családi ház
- Alapterület:108 m2
- Telekterület:2751 m2
- Csere is:Nem
- Hirdető:Cég
- Élő videón megtekinthető:Nem
- Építés éve:1950
- Szobaszám:2
- Állapot:Felújítandó
- Hány szintes az ingatlan:Földszintes
- Tetőtér:nincs megadva
- Komfortosság:nincs megadva
- Pince:nincs megadva
- Parkolási lehetőség:Udvaron
- Fűtés:Gáz (cirko)
- Bútorozottság:nincs megadva
- Fényviszony:Jó
- Tájolás:nincs megadva
- Kilátás:nincs megadva
- Internet:nincs megadva
- Klíma:nincs megadva
- Akadálymentesített:nincs megadva
- Energiatanúsítvány:nincs megadva
- Villany:nincs megadva
- Víz:nincs megadva
- Gáz:nincs megadva
- Csatorna:nincs megadva
- Kapcsolatfelvétel

Benedek Lili
+36-(70)-941-7330
Mondd meg a hirdetőnek, hogy a megveszLAK-on találtad a hirdetést.
Referencia szám: M300751
Hitel ajánlatok
Ingatlan hirdetés leírása
Eladó Ház, Belvárdgyula
Eladó ingatlan Belvárdgyulán, vállalkozásra vagy otthonteremtésre is kiváló lehetőség!
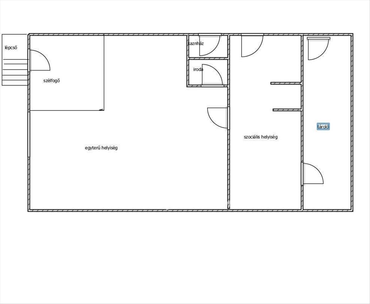
Belvárdgyulán, Pécstől mindössze 20 km-re kínálunk megvételre egy 2751 nm-es telken elhelyezkedő, 108 nm-es ingatlant.
Az épület vegyes falazatú, az elmúlt években élelmiszerboltként működött, de könnyedén átalakítható lakóingatlanná is. Az elosztása és mérete miatt vállalkozás, üzlet vagy családi ház kialakítására egyaránt alkalmas.
Főbb jellemzők:
Gázcirkó és vegyestüzelésű kazán biztosítja a fűtést.
Víz, villany, csatorna rendszer kiépítve.
Riasztórendszerrel felszerelt.
Különálló pince.
Tágas, 2751 nm-es telek.
Elhelyezkedése, mérete és sokoldalú hasznosíthatósága miatt kiváló befektetési lehetőség! Érték arányban kedvező, támogatott hitel is igénybe vehető a vásárláshoz.
Ha felkeltette érdeklődését a hirdetés keressen bizalommal! FIX 3% lakáshitelre megvehető

