Eladó újszerű állapotú ház - Birján
- INGYENES HIRDETÉS FELADÁS
Ingatlan adatai
- Eladó vagy kiadó:Eladó
- Település:Birján
- Kategória:Ház
- Alkategória:Családi ház
- Alapterület:241 m2
- Telekterület:11486 m2
- Csere is:Nem
- Hirdető:Cég
- Élő videón megtekinthető:Igen
- Építés éve:2004
- Szobaszám:4
- Állapot:Újszerű, kitűnő
- Hány szintes az ingatlan:Földszintes
- Tetőtér:nincs megadva
- Komfortosság:nincs megadva
- Pince:Van
- Parkolási lehetőség:Garázsban
- Fűtés:Gáz (cirko)
- Bútorozottság:nincs megadva
- Fényviszony:Napfényes
- Tájolás:D
- Kilátás:nincs megadva
- Internet:nincs megadva
- Klíma:Van
- Akadálymentesített:nincs megadva
- Energiatanúsítvány:nincs megadva
- Villany:Van
- Víz:Van
- Gáz:Van
- Csatorna:Nincs
- Kapcsolatfelvétel

Urszuly János
+36-(30)-512-8502
Mondd meg a hirdetőnek, hogy a megveszLAK-on találtad a hirdetést.
Referencia szám: HZ061521
Hitel ajánlatok
Ingatlan hirdetés leírása
Novreczky udvarház és arborétum eladó
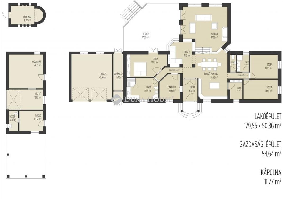
Baranya megyében, Pécstől 16 km re fekvő Birján településen eladó egy nem mindennapi élményt nyújtó arborétum-kert a benne található lakóházzal, melléképületekkel. a bírtok 15. 000 m2-en terül el, a tulajdonos 30 éve folyamatosan telepíti a növényzetet, jelenleg kb 486 féle faj, köztük díszfák, örökzöldek, cserjék, évelő virágok és gyümölcsfák találhatók. a házat körbe vevő zöld növényzet különleges mikroklímát biztosít a háznak, így az épület nem igényel hűtést, a legforróbb időszakokban sem. a kertet bio módszerrel ápolják, nem használnak vegyszereket. a terület teljesen körbe van kerítve, a falu felől téglafallal, hátul kerítéssel és sövénnyel. a birtoknak 3 bejárat van, fő és mellék kapu melyek elektromosan nyílnak, valamint gazdasági bejárat. a területen térkövezett utak vezetnek a kaputól az épületekig. a ház 1992-94 között épült prémium minőségben, nettó területe 179m2. Központi része a hatalmas konyha-étkező és a vele egybe nyíló, kis szinteltolással kialakított nappali és társalgó. Innen két oldalra nyílik a többi helyiség, a 3 hálószoba, két fürdő, és a nagy gardróbszoba. Az egyik fürdőszobában 3 személyes infraszauna került beépítésre. a nappalihoz kapcsolódik egy 48m2-es terasz is, ahonnan kiváló a kilátás a kertre. Az épület 10 cm homlokzati és 40 cm födém hőszigeteléssel rendelkezik, valamint fa nyílászárókkal dupla üvegezéssel van felszerelve. a ház mellett több melléképület is található, két fedett kocsi beálló, kettő garázs, kazánház, nagy tároló helyiségek. Az ingatlan egyedi és különleges gépészettel rendelkezik, benne a gépészmérnök tulajdonos által fejlesztett megoldásokkal. a fűtést több rendszerről is üzemeltetni lehet. Egyrészt van egy vegyes tüzelésű, egyedileg fejlesztett kazán, melyet a kert zöld hulladéka teljesen el tud látni tüzelővel. Ezen kívül gázcirkó kazán, hőszivattyú, a nappaliban épített cserépkályha, valamint hűtő-fűtő klímákkal is megoldható a fűtés, melyeket a 4, 5 KW-os napelemek is el tudnak látni árammal. a ház rezsije minimális költséggel fenntartható. a kert gondozásához rendelkezésre áll egy ásott és egy 40 mély fúrt kút, valamint egy 50 nm -es ciszterna, melyből az öntöző rendszeren keresztül folyamatosan biztosított a növények vízellátása. a kert egyik sarkában kis kápolna kapott helyet egyedileg épített haranglábbal. a ház nagycsalád részére is és többféle vállalkozás céljára is kiváló lehetőség. További információkért, megtekintéssel kapcsolatban keressen bizalommal. Hitel.hu - Hasonlítsa össze a bankok lakáshitel ajánlatait
Tetszett ez az eladó Birjáni újszerű állapotú 4 szobás családi ház? Hívd fel a hirdetőt most, és tudj meg mindent erről az eladó családi házról! Ha gondolod nézelődj tovább az eladó ház Birján oldal hirdetései között. Ennek az eladó háznak az ára 295000000 Ft és mivel az alapterülete 241 négyzetméter, ezért az átlagos négyzetméterára 1224066 HUF/m2.
Az eladó házak menüpontban további hirdetések között is böngészhetsz. Ha van kedved, akkor böngészhetsz a Urszuly János összes hirdetése között.

