Eladó jó állapotú ház - Bogács
- INGYENES HIRDETÉS FELADÁS
Ingatlan adatai
- Eladó vagy kiadó:Eladó
- Település:Bogács
- Kategória:Ház
- Alkategória:Családi ház
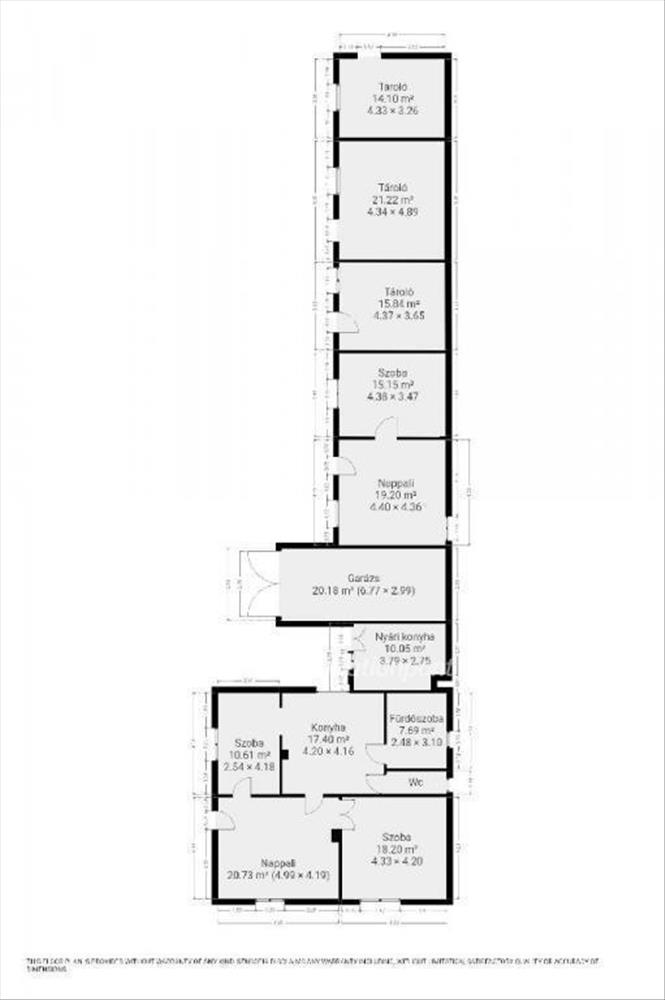
- Alapterület:76 m2
- Telekterület:791 m2
- Csere is:Nem
- Hirdető:Cég
- Élő videón megtekinthető:Nem
- Építés éve:2002
- Szobaszám:2
- Állapot:Jó állapotú
- Hány szintes az ingatlan:Földszintes
- Tetőtér:nincs megadva
- Komfortosság:nincs megadva
- Pince:nincs megadva
- Parkolási lehetőség:Teremgarázsban
- Fűtés:Egyéb
- Bútorozottság:nincs megadva
- Fényviszony:Jó
- Tájolás:nincs megadva
- Kilátás:nincs megadva
- Internet:nincs megadva
- Klíma:nincs megadva
- Akadálymentesített:nincs megadva
- Energiatanúsítvány:nincs megadva
- Villany:nincs megadva
- Víz:nincs megadva
- Gáz:nincs megadva
- Csatorna:nincs megadva
- Kapcsolatfelvétel

Juhász Anita
+36-(70)-907-0700
Mondd meg a hirdetőnek, hogy a megveszLAK-on találtad a hirdetést.
Referencia szám: M316420
Hitel ajánlatok
Ingatlan hirdetés leírása
Eladó Ház, Bogács, Eladó jó állapotú ház - Bogács
A település kedvelt részén kínálok megvételre egy 2 szobás, vegyes tüzelésű fűtéssel rendelkező házat, jó állapotú burkolatokkal és nyílászárókkal, réz vezetékekkel.
A telken több melléképület, nyári konyha, garázs, valamint egy nappali + szobás különálló lakrész is található, ami akár több generáció együttélésére vagy apartmanok kialakítására is kiváló alap lehet.
Bogács a Bükkalja egyik legkedveltebb üdülőfaluja, gyógyfürdővel, borospincékkel és természetközeli hangulattal, itt a nyugalom és a lehetőségek egyszerre adottak. Ideális választás állandó otthonnak vagy befektetésnek egyaránt.
OTP Banki hátterünknek köszönhetően finanszírozási igényekben (pl. Otthon Start Program, Babaváró, Falusi csok, CSOK Plusz, Lakáshitel, Személyi kölcsön stb. ), Illetve biztosítások tekintetében is díjmentesen, soron kívüli ügyintézéssel segítem ügyfeleim! Referenciaszám: M316420
Referencia szám: m316420-ml FIX 3% lakáshitelre megvehető
Tetszett ez az eladó Bogácsi jó állapotú 2 szobás családi ház? Hívd fel a hirdetőt most, és tudj meg mindent erről az eladó családi házról! Ha gondolod nézelődj tovább az eladó ház Bogács oldal hirdetései között. Ennek az eladó háznak az ára 32900000 Ft és mivel az alapterülete 76 négyzetméter, ezért az átlagos négyzetméterára 432895 HUF/m2.
Az eladó házak menüpontban további hirdetések között is böngészhetsz. Ha van kedved, akkor böngészhetsz a Juhász Anita összes hirdetése között, vagy akár a/az OTPip Eger Kertész utca 25 - OTP Ingatlanpont Iroda összes hirdetése között is.

