Eladó felújítandó ház - Bogács
- INGYENES HIRDETÉS FELADÁS
Ingatlan adatai
- Eladó vagy kiadó:Eladó
- Település:Bogács
- Kategória:Ház
- Alkategória:Családi ház
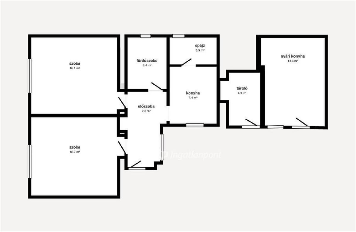
- Alapterület:75 m2
- Telekterület:1410 m2
- Csere is:Nem
- Hirdető:Cég
- Élő videón megtekinthető:Nem
- Építés éve:1960
- Szobaszám:2
- Állapot:Felújítandó
- Hány szintes az ingatlan:Földszintes
- Tetőtér:nincs megadva
- Komfortosság:nincs megadva
- Pince:nincs megadva
- Parkolási lehetőség:Udvaron
- Fűtés:Gáz (konvektor)
- Bútorozottság:nincs megadva
- Fényviszony:Jó
- Tájolás:nincs megadva
- Kilátás:nincs megadva
- Internet:nincs megadva
- Klíma:nincs megadva
- Akadálymentesített:nincs megadva
- Energiatanúsítvány:nincs megadva
- Villany:nincs megadva
- Víz:nincs megadva
- Gáz:nincs megadva
- Csatorna:nincs megadva
- Kapcsolatfelvétel

Piskóti Tibor Lajos
+36-(70)-322-2946
Mondd meg a hirdetőnek, hogy a megveszLAK-on találtad a hirdetést.
Referencia szám: M321685
Hitel ajánlatok
Ingatlan hirdetés leírása
Eladó Ház, Bogács, Eladó felújítandó ház - Bogács
Eladó családi ház Bogácson, csendes, nyugodt környezetben.
Az ingatlanról:
1410 nm a teljes telek terület, gyümölcs és dió fákkal tűzdelve. a telek mérete több dologra is lehetőséget nyújthat.
Az ingatlanba két kapun is bejárás nyílik.
A ház a 60 as években épült, falazata kő és tégla.
Bár az ingatlan nem ma épült, ellenállt az idő vasfogának.
A lakóterület 75 nm , melyben 2 szoba, konyha és fürdő+wc -egyben lett kialakítva.
Mindkét szoba tágas, sok elrendezési variációra adhat lehetőséget.
A konyhában spájz is megtalálható, pakolás szempontjából rettentő hasznos.
A szobákban még az eredeti fa parketta van, mint ahogy a nyílászárók is azok.
A fűtést gáz konvektorok biztosítják a meleg vizet gázbojler.
Az ingatlanhoz tartozik még egy nyári konyha, garázs és pince is.
A közelben megtalálható minden fontos dolog ami, amik a mindennapi élethez elengedhetetlenek.
Emellett a strand és a pincesori szórakozási lehetőségek sem elhanyagolhatóak, amennyiben kikapcsolódásra vágyik. Ha ez sem lenne elég: Eger, Egerszalók elérhető közelségben vannak.
Ne hagyja ki a lehetőséget és formálja saját képére ezt az aranyos házikót.
Amennyiben a hirdetés felkeltette az érdeklődését, esetleg lenne még kérdése, hívjon bizalommal!
Személyes megtekintés előre egyeztetett időpontban, bármikor lehetséges.
OTP Banki hátterünknek köszönhetően finanszírozási igényekben (pl. Otthon Start Hitelprogram, Babaváró, Falusi csok, CSOK Plusz, Lakáshitel, Személyi kölcsön stb. ), Illetve biztosítások tekintetében is díjmentesen, soron kívüli ügyintézéssel segítem ügyfeleim!
REFERENCIASZÁM: M321685
Referencia szám: m321685 FIX 3% lakáshitelre megvehető
Tetszett ez az eladó Bogácsi felújítandó 2 szobás családi ház? Hívd fel a hirdetőt most, és tudj meg mindent erről az eladó családi házról! Ha gondolod nézelődj tovább az eladó ház Bogács oldal hirdetései között. Ennek az eladó háznak az ára 35000000 Ft és mivel az alapterülete 75 négyzetméter, ezért az átlagos négyzetméterára 466667 HUF/m2.
Az eladó házak menüpontban további hirdetések között is böngészhetsz. Ha van kedved, akkor böngészhetsz a Piskóti Tibor Lajos összes hirdetése között, vagy akár a/az OTPip Miskolc Szemere Bertalan utca 20 - OTP Ingatlanpont Iroda összes hirdetése között is.

