Eladó átlagos állapotú ház - Bököny
- INGYENES HIRDETÉS FELADÁS
Ingatlan adatai
- Eladó vagy kiadó:Eladó
- Település:Bököny
- Kategória:Ház
- Alkategória:Családi ház
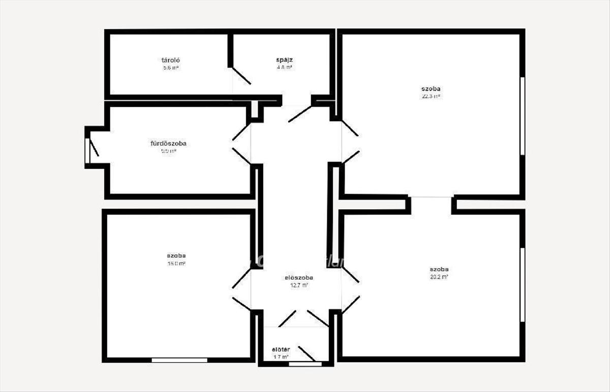
- Alapterület:93 m2
- Telekterület:1325 m2
- Csere is:Nem
- Hirdető:Cég
- Élő videón megtekinthető:Nem
- Építés éve:1973
- Szobaszám:3
- Állapot:Átlagos állapotú
- Hány szintes az ingatlan:Földszintes
- Tetőtér:nincs megadva
- Komfortosság:nincs megadva
- Pince:nincs megadva
- Parkolási lehetőség:nincs megadva
- Fűtés:Gáz (cirko)
- Bútorozottság:nincs megadva
- Fényviszony:Napfényes
- Tájolás:nincs megadva
- Kilátás:nincs megadva
- Internet:nincs megadva
- Klíma:nincs megadva
- Akadálymentesített:nincs megadva
- Energiatanúsítvány:nincs megadva
- Villany:nincs megadva
- Víz:nincs megadva
- Gáz:nincs megadva
- Csatorna:nincs megadva
- Kapcsolatfelvétel

Dávida Marcell
+36-(30)-464-5929
Mondd meg a hirdetőnek, hogy a megveszLAK-on találtad a hirdetést.
Referencia szám: M310558
Hitel ajánlatok
Ingatlan hirdetés leírása
Eladó Ház, Bököny, Eladó átlagos állapotú ház - Bököny
Eladásra kínálunk Bököny központi főutcáján, mindössze fél órára Debrecentől egy 93, 2 négyzetméteres, kiváló állapotban lévő, hagyományos Kádár-kocka jellegű családi házat, amely tökéletes választás lehet családok számára. Az ingatlan elhelyezkedése rendkívül előnyös, hiszen néhány perc sétával elérhető az óvoda, az iskola, a buszmegálló és a boltok, így minden fontos szolgáltatás kényelmes közelségben található. a ház praktikus elrendezésű, három tágas és világos szoba, különálló konyha, fürdőszoba, spájz és pince biztosítja a kényelmet. a lakóépülethez tartozik garázs, több tárolóhelyiség, valamint egy állattartásra is alkalmas melléképület, a gondozott kertben pedig egy kis veteményes is helyet kapott, amely ideális lehet saját termesztéshez. a fűtés gáz-központi rendszerrel megoldott, ugyanakkor a hangulatos cserépkályha és a vegyes tüzelési lehetőség is rendelkezésre áll. Az épület vegyes falazatú, beton alapra épült, szerkezetileg kifogástalan állapotban van, modern műanyag nyílászárókkal felszerelve, így hosszú távon is megbízható otthont nyújt. Az ingatlan minimálisan alku képes, ezért most remek lehetőséget kínál mindazoknak, akik egy nyugodt, barátságos falusi környezetben szeretnének új otthonra találni.
OTP Banki hátterünknek köszönhetően a finanszírozási igényekben? Legyen szó Babaváróról, Falusi CSOK-ról, CSOK Pluszról, lakáshitelről vagy személyi kölcsönről? , Valamint a biztosítások intézésében is díjmentes, soron kívüli ügyintézést biztosítok ügyfeleim számára.
Referenciaszám: m310558 FIX 3% lakáshitelre megvehető

