Eladó újszerű állapotú ház Budakalász
| Kedvencbe | Megosztás | Árfigyelő |
| Kedvezményes lakáshitel ajánlatok | ||
| 189 000 000 HUF | ||
Ingatlan adatai
- Eladó vagy kiadó:Eladó
- Település:Budakalász
- Kategória:Ház
- Alkategória:Családi ház
- Alapterület:270 m2
- Telekterület:579 m2
- Csere is:Nem
- Hirdető:Cég
- Élő videón megtekinthető:Nem
- Szobaszám:7
- Állapot:Újszerű, kitűnő
- Hány szintes az ingatlan:nincs megadva
- Tetőtér:nincs megadva
- Komfortosság:nincs megadva
- Parkolási lehetőség:Garázsban
- Fűtés:Egyéb
- Bútorozottság:nincs megadva
- Fényviszony:nincs megadva
- Tájolás:nincs megadva
- Kilátás:Panorámás
- Internet:nincs megadva
- Akadálymentesített:nincs megadva
- Energiatanúsítvány:nincs megadva
- Villany:Van
- Víz:Van
- Gáz:Van
- Csatorna:Van
- Üzenetküldés
- Hívás


Hitel ajánlat
Ingatlan hirdetés leírása
ELADÓ CSALÁDI HÁZ BUDAKALÁSZ KÉTGENERÁCIÓS SOKSZOBÁS HÉV KÖZELI
Nagycsaládosoknak, 2 generációnak tökéletes választás Budakalász legkedveltebb részén!ELADÓ Budakalász szentistvántelepen egy jó állapotú, sok szobás családi ház-KIZÁRÓLAG a családi ingatlan KÍNÁLATÁBÓL.
ALAPADATOK:
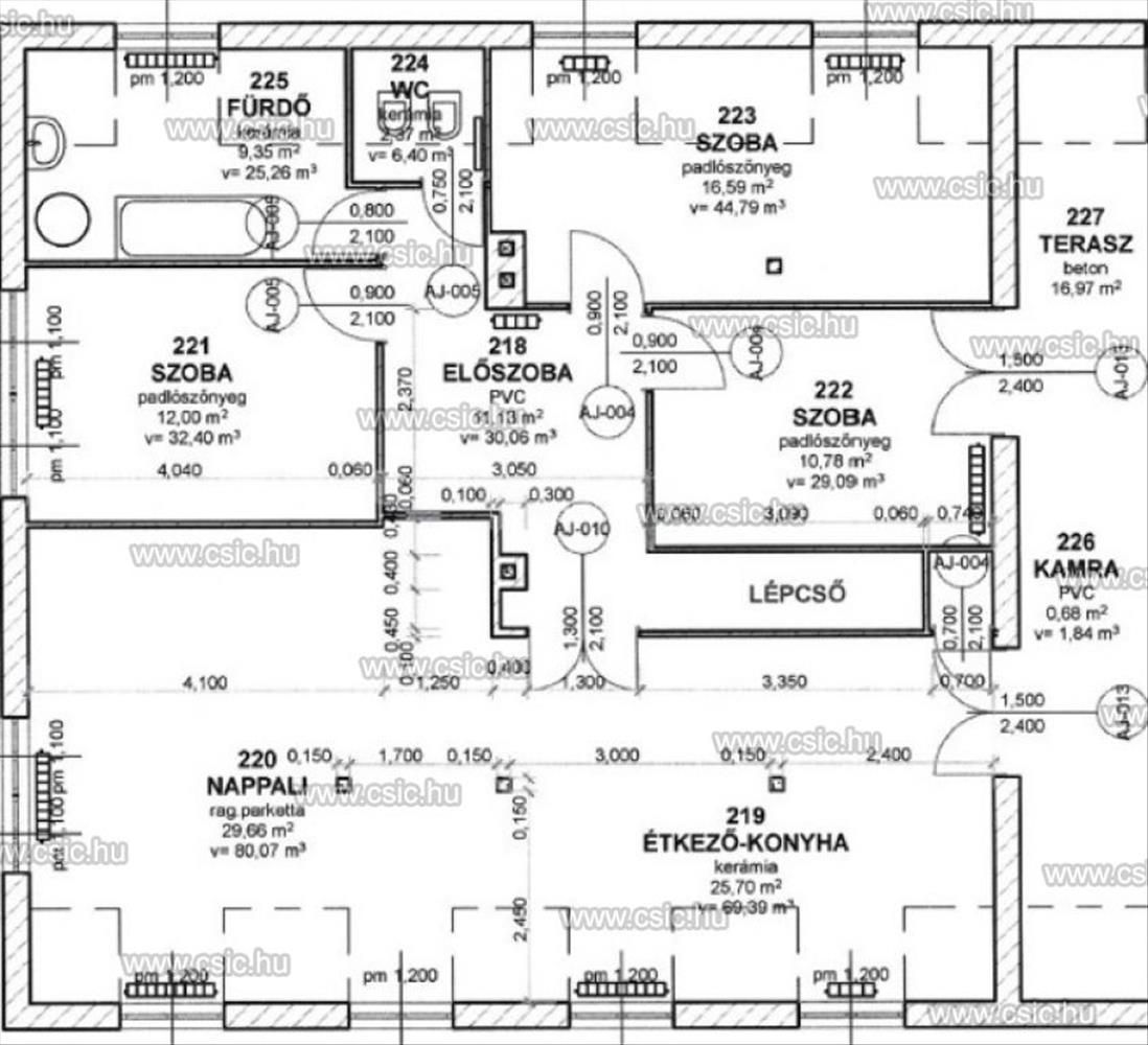
•270 m2 lakótér 2 szinten
•emeleti szinten: tágas előszoba, amerikai konyhás nappali, 2 szoba, fürdőszoba, külön wc-mosdó
•tetőtéri szinten: tágas előszoba, amerikai konyhás nappali, 3 szoba, fürdőszoba, külön wc-mosdó
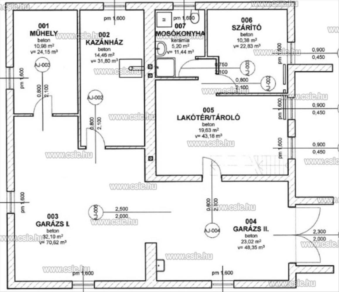
•+135 m2 szuterén: garázs, tárolók (kialakítható hobby-és kondi szobák, home office irodák)
•a garázs előtt-további- több kocsi beállásra van lehetőség
•7 szoba
•579 m2 telek terület
•jó állapot
•Szentistvántelep közepén- garantáltan pár perc séta minden infrastruktúra
MŰSZAKI-és egyéb JELLEMZŐK:
•1987-ben épült az alap
•2018-ban felújítás: teljes tetőszerkezet, gépészeti-és villanyvezetékek cseréje, újra kábelezése, új burkolatok, konyhabútorok, új kondenzációs kazán, bélelt kémény ( az öntött vas radiátorok maradtak)
•a két lakószinthez külön termosztátok a fűtés szabályozáshoz
•az emeleti szinten a melegvíz szintén a gázkazánról;
•a tetőtéri szinten Ariston bojler a meleg vízhez
•fa ablakok 2 rétegű üvegezéssel, az emeleti szinten mindenhol redőnnyel; a tetőtéri szinten az egyik szobában és a nappalin van redőny( nyugati homlokzatok)
•körbe süti a nap, napfényes, kertre, utcára, hegyekre panorámás
•jó energetika- kedvező rezsi díja van a háznak
KÖRNYEZET:
•6-8 perc sétára a Hévtől
•Szentistvántelep középen, kialakult, csendes, családi házas környezetben
•óvoda, iskola 2 perc séta
•játszótér, rét, parkok pár perc séta
•bevásárlás pár perc séta
Ha eladandó ingatlanja van, szakértő értékbecslését bízza rám; 20 éves tapasztalattal, értékesítési vezetőként profi árazást biztosítok.
Az ingatlan megvásárlásához ingyenes hitelügyintézéssel, ügyvédi, jogi, pénzügyi segítséggel állunk rendelkezésére, minden egy helyen a családi ingatlan pomázi irodájában. Hitel.hu - Hasonlítsa össze a bankok lakáshitel ajánlatait

