Eladó újszerű állapotú ház - Budakalász
- INGYENES HIRDETÉS FELADÁS
Ingatlan adatai
- Eladó vagy kiadó:Eladó
- Település:Budakalász
- Kategória:Ház
- Alkategória:Családi ház
- Alapterület:250 m2
- Telekterület:1037 m2
- Csere is:Nem
- Hirdető:Cég
- Élő videón megtekinthető:Nem
- Szobaszám:6
- Állapot:Újszerű, kitűnő
- Hány szintes az ingatlan:nincs megadva
- Tetőtér:nincs megadva
- Komfortosság:nincs megadva
- Pince:nincs megadva
- Parkolási lehetőség:Garázsban
- Fűtés:Egyéb
- Bútorozottság:nincs megadva
- Fényviszony:nincs megadva
- Tájolás:nincs megadva
- Kilátás:Panorámás
- Internet:nincs megadva
- Klíma:nincs megadva
- Akadálymentesített:nincs megadva
- Energiatanúsítvány:nincs megadva
- Villany:Van
- Víz:Van
- Gáz:Van
- Csatorna:Van
- Kapcsolatfelvétel

Balaton Bea
+36-(20)-543-5357
Mondd meg a hirdetőnek, hogy a megveszLAK-on találtad a hirdetést.
Hitel ajánlatok
Ingatlan hirdetés leírása
ELADÓ CSALÁDI HÁZ BUDAKALÁSZ LAKÁS BEFEKTETÉS
Nagy telek - 3 lakás - egy HÁZ
ELADÓ Budakalász családi HÁZ
ELADÓ Budakalász Taván városrészben egy többgenerációs 250 nm -es családi ház, 1037 nm -es telekkel.
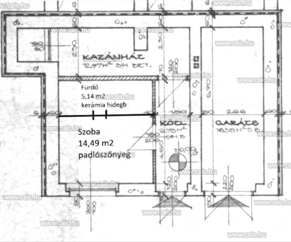
Az épület sávalapra épült, tégla tartó- és válaszfalakkal, monolit födémmel, fa tetőszerkezettel és pala héjazattal. a ház pinceszintjén található a garázs és kazánház mellett egy szoba és hozzá tartozó fürdőszoba.
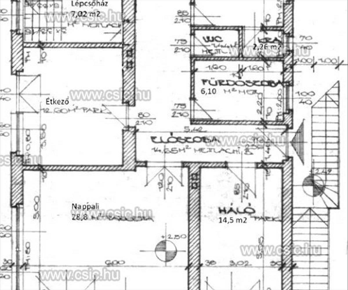
A földszinten és az emeleten lakótér helyezkedik el. a tetőtér beépítetlen padlástérrel is rendelkezik. a ház mögött helyezkedik el az udvarrész. Az emeleti lakótér utca irányába néző része felé hatalmas portálüveg található, melyekhez terasz csatlakozik és fantasztikus panorámával rendelkeznek.
A fűtésről gázkazán gondoskodik, a hőleadók pedig radiátorok. Alternatív lehetőségként vegyestüzelésű kazán is helyet kapott, mely jelenleg használaton kívül van. a melegvizet villanybojler szolgáltatja. a nyílászárók részben kétrétegű hidegperemes üvegezéssel lettek ellátva, de részben megmaradtak az eredetiek.
ELADÓ Budakalász családi ház főbb jellemzői:
- téglaépítésű
- összközműves
- alsó szinten: garázs (18 nm ), szoba (15 nm ), fürdőszoba, kazánház
- földszinten: nappali (30nm ), hálószoba (14, 5 nm ), konyha, kamra, fürdőszoba, wc, tároló, terasz (21 nm )
- emeleten: nappali (24 nm ), 2 hálószoba (12 ill 13 nm ), konyha, fürdőszoba, terasz (22 nm ) található
- napfényes, világos terek
- panoráma
- fűtése gázkazánnal történik, radiátoros hőleadókkal
- burkolatok, nyílászárók még az eredeti állapotban
- enyhén lejtős kertben gyümölcsfák, szölő
- felújítás után több generáció együttélésére, vagy befektetőknek is jó választás
ELADÓ Budakalász családi ház környezete:
- családiházas környezetben
- közel minden infrastruktúra
- hév gyalogosan 10 perc alatt elérhető
Amennyiben felkeltettem érdeklődését. . . Várom hívását! FIX 3% lakáshitelre megvehető
Tetszett ez az eladó Budakalászi újszerű állapotú 6 szobás családi ház? Hívd fel a hirdetőt most, és tudj meg mindent erről az eladó családi házról! Ha gondolod nézelődj tovább az eladó ház Budakalász oldal hirdetései között. Ennek az eladó háznak az ára 139000000 Ft és mivel az alapterülete 250 négyzetméter, ezért az átlagos négyzetméterára 556000 HUF/m2.
Az eladó házak menüpontban további hirdetések között is böngészhetsz. Ha van kedved, akkor böngészhetsz a Balaton Bea összes hirdetése között, vagy akár a/az Családi Ingatlan összes hirdetése között is.

