- >>
- eladó ingatlanok
- >>
- eladó ház
- >>
- eladó ház Budapest II. kerület
- >>
Eladó átlagos állapotú ház - Budapest II. kerület
| | |||
| Kedvencnek jelölöm | Elküldöm emailben | Megosztás | Szavazás |
| Kedvezményes lakáshitel ajánlatok | |||
| 249 000 000 HUF | |||
Ingatlan adatai
- Eladó vagy kiadó:Eladó
- Település:Budapest II. kerület
- Kategória:Ház
- Alkategória:Családi ház
- Alapterület:316 m2
- Telekterület:1113 m2
- Csere is:Nem
- Hirdető:Cég
- Élő videón megtekinthető:Nem
- Építés éve:1986
- Szobaszám:7
- Állapot:Átlagos állapotú
- Hány szintes az ingatlan:nincs megadva
- Tetőtér:nincs megadva
- Komfortosság:Dupla komfortos
- Pince:Van
- Parkolási lehetőség:Teremgarázsban (fizetős)
- Fűtés:Gáz (cirko)
- Bútorozottság:nincs megadva
- Fényviszony:nincs megadva
- Tájolás:nincs megadva
- Kilátás:nincs megadva
- Internet:nincs megadva
- Akadálymentesített:nincs megadva
- Energiatanúsítvány:nincs megadva
- Villany:Van
- Víz:Van
- Gáz:Van
- Csatorna:Utcában
- Üzenetküldés
- Hívás

Németh Zoltán László
Mondd meg a hirdetőnek, hogy a megveszLAK-on találtad a hirdetést.

Hitel ajánlat
Ingatlan hirdetés leírása
Eladó Családi ház, Budapest 2. kerület, Erzsébetliget, Gerecse...
Eladó önálló családi ház Pesthidegkút Ófalu szélén, természetvédelmi terület mellett!INGATLAN HELYSZÍNE:
II. kerület Pesthidegkút Ófalu részén található a Gerecse utcában. 5-10 Percre buszmegálló, több buszjárattal. 15 Percre a hüvi, majd onnan 15-20 perc a Széll Kálmán tér. Széphalom bevásárlóközpont, iskolák, orvosi rendelő 10 percre. Pokorny József Sport- és Szabadidőközpont és a Gyarmati Dezső Uszoda 6-8 percre, játszótér, kutyafuttató a környékén.
TELEK JELLEMZŐI:
Zsákutca végén található, téglalap alakú 1113nm-es sík, nyeles telek. Növényekkel beültetett nagykert, a kaputól az épületig. a kertet magas növényzet övezi.
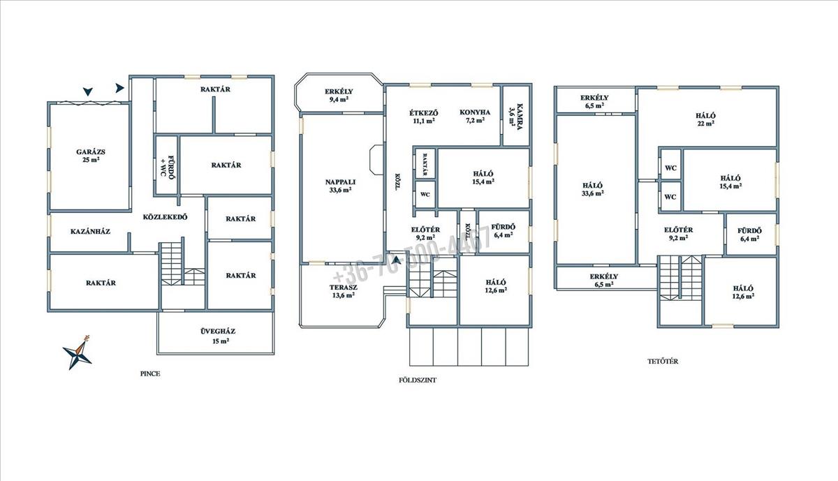
ÉPÜLET JELLEMZŐI:
1986-ban épület, 3 szintes, 316nm-es épület. Vastag falazattal épült. Tágas nappali, méretes étkezős konyha, 6 hálószoba, 2 a földszinten, 4 az emeleten. Több mellékhelyiséggel és fürdővel ellátott, a pince szinten számos tárolási lehetőséggel. Az épülethez kapcsolódik egy Üvegház is, valamint 3 erkély és terasz kapcsolattal rendelkezik.
Jelenlegi állapota közepes, lakható, de némi korszerűsítést igényel. Burkolatai, közüzemi hálózatai közepesen jók, ám karbantartásuk, cseréjük időszerű lehet.
Az épület beosztása kifejezetten átgondolt, ám további kialakítási lehetőségek is adottak igény szerint.
Az ingatlan tökéletesen alkalmas 3 külön bejáratú lakás kialakítására is.
MŰSZAKI FELSZERELTSÉG:
A fűtése gáz cirkóval és vegyestüzelésű kazánnal történik, részben radiátorokkal, részben padlófűtéssel. Elektromos hálózata 3 mérővel felszerelt 3x25A, Jellemzően fa, de részben műanyag nyílászárókkal ellátott. 25 Köbméteres emésztővel ellátott, melyet évente 2-3 alkalommal kell üríteni.
PARKOLÁS:
25nm-es Garázsban lehetséges, illetve telken belül fedetlen felszíni beállón.
IRÁNYÁR:
249 MFt Hitel.hu - Hasonlítsa össze a bankok lakáshitel ajánlatait

