Eladó jó állapotú ház - Budapest II. kerület
- INGYENES HIRDETÉS FELADÁS
Ingatlan adatai
- Eladó vagy kiadó:Eladó
- Település:Budapest II. kerület
- Kategória:Ház
- Alkategória:Családi ház
- Alapterület:135 m2
- Telekterület:674 m2
- Csere is:Nem
- Hirdető:Cég
- Élő videón megtekinthető:Nem
- Építés éve:1920
- Szobaszám:5
- Állapot:Jó állapotú
- Hány szintes az ingatlan:Földszintes
- Tetőtér:nincs megadva
- Komfortosság:nincs megadva
- Pince:Van
- Parkolási lehetőség:Garázsban
- Fűtés:Gáz (cirko)
- Bútorozottság:nincs megadva
- Fényviszony:Napfényes
- Tájolás:DNY
- Kilátás:Panorámás
- Internet:nincs megadva
- Klíma:Van
- Akadálymentesített:nincs megadva
- Energiatanúsítvány:nincs megadva
- Villany:Van
- Víz:Van
- Gáz:Van
- Csatorna:Van
- Kapcsolatfelvétel

Kiss Ildikó Mária
+36-(30)-950-8889
Mondd meg a hirdetőnek, hogy a megveszLAK-on találtad a hirdetést.
Referencia szám: M323139
Hitel ajánlatok
Ingatlan hirdetés leírása
Eladó Ház, Budapest 2. ker.
***Századfordulós, felújított villa hidegkúton, ERDŐSZÉLÉN***
Eladásra kínálunk Budapest ii/a. kerületének egyik legexkluzívabb, legzöldebb részén, hársakalján, egy igazi építészeti ékkövet!
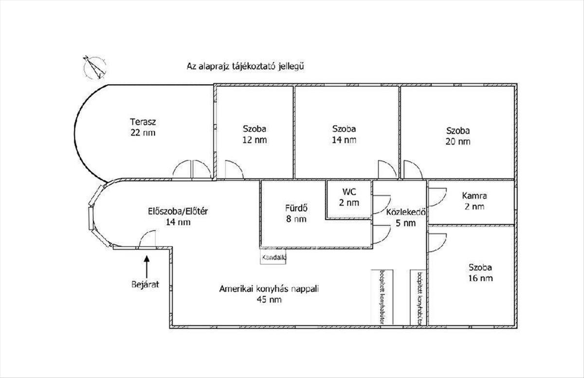
Ez a 135 nm -es, századfordulós stílusban épült, 2022-ben modernizált villa tökéletes harmóniát teremt a klasszikus elegancia és a mai kor kényelme között, amely egy 674 nm -es, parkosított telken helyezkedik el, egy csendes, erdőszéli zsákutcában.
Az ingatlanban 4 tágas szoba, valamint egy amerikai konyhás nappali található, ahol egy gyönyörű kandalló gondoskodik az otthonos, meghitt hangulatról.
A ház fűtését korszerű kombi gázkazán biztosítja radiátoros hőleadással, a nyári komfortot pedig légkondicionáló berendezések szolgálják.
Az épületet utoljára 2022-ben korszerűsítették, ennek köszönhetően kívül-belül kiváló állapotnak örvend, hőszigetelt, energiahatékony.
A házhoz tartozik egy kétállásos garázs, egy száraz pince, valamint egy beépített, gondozott medence is, amely a hatalmas terasz és a gyönyörű kert mellett tökéletes lehetőséget kínál a pihenésre és kikapcsolódásra.
Az ingatlan elhelyezkedése is elsőrangú, hiszen pár perc sétára található a legközelebbi buszmegálló, ahol éjszakai járat is közlekedik, a közelben pedig számos bevásárlási lehetőség, gyógyszertár, rendelő, iskola, óvoda és bölcsőde könnyíti meg a mindennapokat.
A Hűvösvölgyi végállomás pedig 5 perc sétára található.
Ez a villa nem csupán egy otthon, hanem egy életérzés, ahol a természet közelsége, a nyugalom és a kifinomult elegancia találkozik.
VIGYÁZAT! Ha megtekinti élőben nem fog tudni ellenállni neki!
Ha felkeltette érdeklődését az ingatlan, kérem, hívjon bizalommal akar hétvégén is! Hitel.hu - Hasonlítsa össze a bankok lakáshitel ajánlatait
Tetszett ez az eladó Budapest II. kerületi jó állapotú 5 szobás családi ház? Hívd fel a hirdetőt most, és tudj meg mindent erről az eladó családi házról! Ha gondolod nézelődj tovább az eladó ház Budapest II. kerület oldal hirdetései között. Ennek az eladó háznak az ára 259000000 Ft és mivel az alapterülete 135 négyzetméter, ezért az átlagos négyzetméterára 1918519 HUF/m2.
Az eladó házak menüpontban további hirdetések között is böngészhetsz. Ha van kedved, akkor böngészhetsz a Kiss Ildikó Mária összes hirdetése között, vagy akár a/az OTPip Budapest II. kerület Szépvölgyi út 2 - OTP Ingatlanpont Iroda összes hirdetése között is.

