Eladó új építésű ház - Budapest III. kerület
- INGYENES HIRDETÉS FELADÁS
Ingatlan adatai
- Eladó vagy kiadó:Eladó
- Település:Budapest III. kerület
- Kategória:Ház
- Alkategória:Családi ház
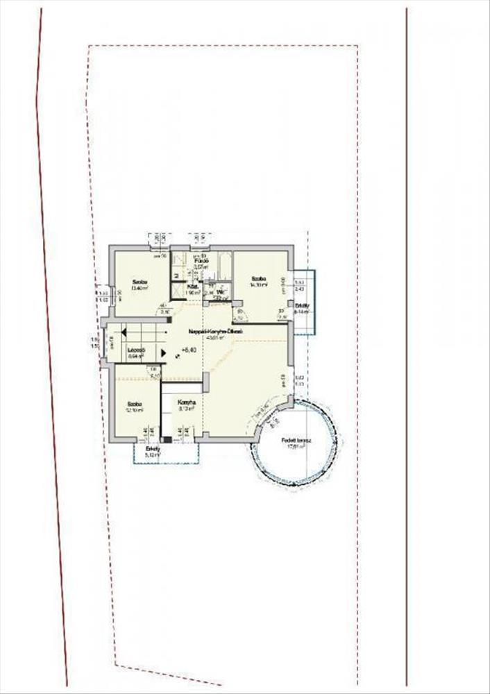
- Alapterület:315 m2
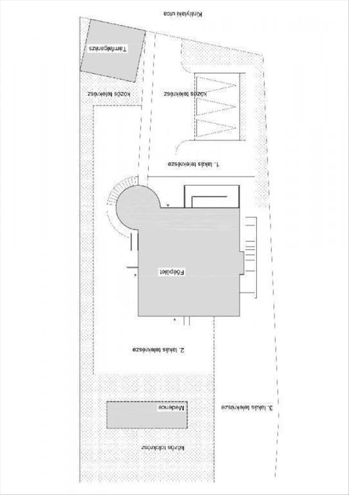
- Telekterület:1080 m2
- Csere is:Nem
- Hirdető:Cég
- Élő videón megtekinthető:Nem
- Építés éve:1990
- Szobaszám:11
- Állapot:Új építésű
- Hány szintes az ingatlan:3 szintes
- Tetőtér:nincs megadva
- Komfortosság:nincs megadva
- Pince:nincs megadva
- Parkolási lehetőség:Teremgarázsban
- Fűtés:Gáz (cirko)
- Bútorozottság:nincs megadva
- Fényviszony:Jó
- Tájolás:nincs megadva
- Kilátás:nincs megadva
- Internet:nincs megadva
- Klíma:Van
- Akadálymentesített:nincs megadva
- Energiatanúsítvány:nincs megadva
- Villany:Telken belül
- Víz:Telken belül
- Gáz:Telken belül
- Csatorna:nincs megadva
- Kapcsolatfelvétel

Takács Zsuzsanna
+36-(30)-495-3819
Mondd meg a hirdetőnek, hogy a megveszLAK-on találtad a hirdetést.
Referencia szám: M313982
Hitel ajánlatok
Ingatlan hirdetés leírása
Eladó Ház, Budapest 3. ker.
Újjáépített (mint az új) 3 lakásos épület, lakás 2 M ft-os m2 áron konyhabútorral? Igen lehetséges, olvassa tovább.
III. kerületben, Táborhegy és Testvérhegy határán egy 3 lakásos ház hirdetését olvassa.
1. ) Lakás: 90 m2-es nappali + 2 hálószobás, 80 m2-es saját kertkapcsolatos földszinti lakását ajánlom figyelmébe! Az 1990-ben épült épület, csak az alapszerkezetét meghagyva, teljes felújításon fog átesni, kiváló, Príma díjas építészmérnök átgondolt tervei alapján, ez egy olyan lakás lesz, ahol a szomszédok nem járnak át egymáson, tehát minden lakás, külön bejárati úttal fog rendelkezni, valamint minden lakás önálló, kizárólagos használatú kerttel lett tervezve. Külön helyrajzi számon értékesítjük az ingatlanokat (nem közös osztatlan), melyhez külön HRSZ-on lévő garázs is vásárolható igény esetén, vagy zárt gépkocsibeálló. Ebből 2 db lesz elérhető 18 m2 mérettel, automata garázskapuval, 12 M Ft-os áron, illetve 3db zárt udvari gépkocsibeálló 4 M Ft-os áron.
Nézzük a lakás elrendezését, egy 5, 16 m2-es előszobából érkezünk a 35 m2-es amerikai-konyha-étkezős nappaliba, ahonnan egy 5, 18 m2-es közlekedőn keresztül közelíthető meg a 2 nagy méretű hálószoba. (15 És 14. 25 Négyzetméretesek)
Külön 2 db mellékhelyiség, és külön, majd 10 m2-es nagy méretű fürdőszoba teszi kényelmessé a reggeli készülést, mely zuhanyzóval és káddal is el lesz látva, valamint egy 5, 33 m2-es háztartási helyiség praktikus megoldás a háztartási eszközök és a mosógép tárolására.
Mind a konyha és a hálószobák közvetlen 25, 45 m2-es teraszkapcsolattal rendelkeznek, ahonnan a zöld saját kert is megközelíthető.
2. ) 110 m2-es nappali + 3 hálószobás, 2 erkélyes, 200 m2-es saját kertkapcsolatos első emeleti.
A lakás elrendezése: egy 1, 83 m2-es előszobából érkezünk a 51, 78 m2-es amerikai-konyha-étkezős nappaliba, ahonnan egy 3, 75 m2-es közlekedőn keresztül közelíthető meg a 2 hálószoba. (11, 41 És 11 négyzetméretesek), a harmadik hálószoba egy további 2, 13 m2-es közlekedőből nyílik, amely 14, 4 m2-es.
2 Db mellékhelyiség és 10. 5 m2-es nagy méretű fürdőszoba teszi kényelmessé a reggeli készülést, mely zuhanyzóval és káddal is el lesz látva.
Mind a konyha, és a hátsó hálószoba (ez 14, 5 m2-es erkéllyel) közvetlen kijárással a 200 m2-es kertre. Az utcafrontra néző hálószobák 14. 82 m2-es erkélykapcsolatosak.
3. ) 115 m2-es nappali + 3 hálószobás, 3 erkélyes, 170 m2-es saját kert-el rendelkező de nem kertkapcsolatos!
A lakás elrendezése: egy 8, 64 m2-es saját lépcsőházból érkezünk a 51, 74 m2-es amerikai-konyha-étkezős nappaliba, ahonnan közvetlenül közelíthető meg a 3 nagy méretű hálószoba. (12, 10 Valamint 13, 4 és 14, 19 négyzetméretesek).
A 6. 57 m2-es fürdő és a 1, 82 mellékhelyiség külön lett elhelyezve, a fürdőszoba kényelmessé teszi a reggeli készülést, mert zuhanyzóval, és káddal is el lesz látva.
A saját lépcsőház előtt helyezkedik el, a saját kizárólagos használatú 170 m2-es kert. Erkélyek: Az utcafrontra néző hálószoba 5, 12 m2-es erkélykapcsolatos, a nappaliból 17, 61 m2-es fedett erkély nyílik, és oldalt a legnagyobb hálószobából szintén egy 5, 17 m2-es erkély nyílik.
KIALAKÍTÁSRA kerül egy körülbelül 8x4 M-es medence, finn szauna-wpc napozó rész (200m2 összesen) a telek hátsó részén kulcsrakészre kivitelezve. Lehetőség van akár külön megvásárolni, vagy együtt a lakóközösséggel 20 M ft-ért közös, vagy kizárólagos HASZNÁLATTAL.
SZERZŐDNI 30% telekhányad vásárlással és 10% vételárelőleggel lehet, a további fizetés készültségi fok alapján ÜTEMEZÉSSEL.
M313982
Az OTP Ingatlanpont, mint egyetlen közvetlen banki hátterű ingatlanközvetítő társaság teljes körű ügyintézéssel áll az eladók és a vevők rendelkezésére! a kínálatunkból választott ingatlan finanszírozásához minősített fogyasztóbarát, piaci és kedvezményes hitel- és lízingkonstrukciókat kínálunk (lakásvásárlási hitel, CSOK plusz, szabad felhasználású hitel, babaváró hitel, céges hitelek, pályázatok, amennyiben az ügyfél és az ingatlan megfelel a feltételeknek). Az adásvételi szerződés megkötéséhez igény szerint megbízható ügyvédi közreműködést biztosítunk, és segítséget nyújtunk az adásvételhez kapcsolódó egyéb ügyek intézéséhez.
Ha az új ingatlana megvásárlásához a jelenlegi ingatlanát el kell adnia, abban is szívesen segítünk.
Referencia szám: m313982-ml Hitel.hu - Hasonlítsa össze a bankok lakáshitel ajánlatait
Tetszett ez az eladó Budapest III. kerületi új építésű 11 szobás családi ház? Hívd fel a hirdetőt most, és tudj meg mindent erről az eladó családi házról! Ha gondolod nézelődj tovább az eladó ház Budapest III. kerület oldal hirdetései között. Ennek az eladó háznak az ára 629900000 Ft és mivel az alapterülete 315 négyzetméter, ezért az átlagos négyzetméterára 1999683 HUF/m2.
Az eladó házak menüpontban további hirdetések között is böngészhetsz. Ha van kedved, akkor böngészhetsz a Takács Zsuzsanna összes hirdetése között, vagy akár a/az OTPip Budapest XIII. kerület Lehel utca 50 - OTP Ingatlanpont Iroda összes hirdetése között is.

