Eladó jó állapotú ház - Budapest III. kerület
- INGYENES HIRDETÉS FELADÁS
Ingatlan adatai
- Eladó vagy kiadó:Eladó
- Település:Budapest III. kerület
- Kategória:Ház
- Alkategória:Családi ház
- Alapterület:700 m2
- Telekterület:1511 m2
- Csere is:Nem
- Hirdető:Cég
- Élő videón megtekinthető:Nem
- Építés éve:2000
- Szobaszám:9
- Állapot:Jó állapotú
- Hány szintes az ingatlan:4 szintes
- Tetőtér:nincs megadva
- Komfortosság:nincs megadva
- Pince:Nincs
- Parkolási lehetőség:Teremgarázsban (fizetős)
- Fűtés:nincs megadva
- Bútorozottság:Bútorozatlan
- Fényviszony:nincs megadva
- Tájolás:DK
- Kilátás:nincs megadva
- Internet:nincs megadva
- Klíma:Van
- Akadálymentesített:Nem akadálymentesített
- Energiatanúsítvány:nincs megadva
- Villany:nincs megadva
- Víz:nincs megadva
- Gáz:nincs megadva
- Csatorna:nincs megadva
- Kapcsolatfelvétel

Estók Niki
+36-(30)-674-1340
Mondd meg a hirdetőnek, hogy a megveszLAK-on találtad a hirdetést.
Hitel ajánlatok
Ingatlan hirdetés leírása
Eladásra kínálunk III. ker. Táborhegy részén, a Farkastorki út...
Eladásra kínálunk III. Ker. Táborhegy részén, a Farkastorki úton egy 2000-ben épült négyszintes, 700 m2-es, családi házat 1511 m2 telken.
Az ingatlan lokációja kiváló. a hegyvidék ezen zöldövezeti részéről pár percre található a gobuda Mall (volt Eurocenter) bevásárló központ, az angol iskola, több golf- és teniszpálya. a buszmegálló a háztól 20 méterre található.
Az ingatlant – méretei miatt – elsősorban cégeknek vállalkozásra, irodaháznak, magánklinikának, egészségügyi központnak, igényes nagycsaládosoknak, vagy cégüket a saját otthonukban működtetni kívánó befektetőknek, illetve építkezéssel foglalkozó kivitelezőknek ajánljuk.
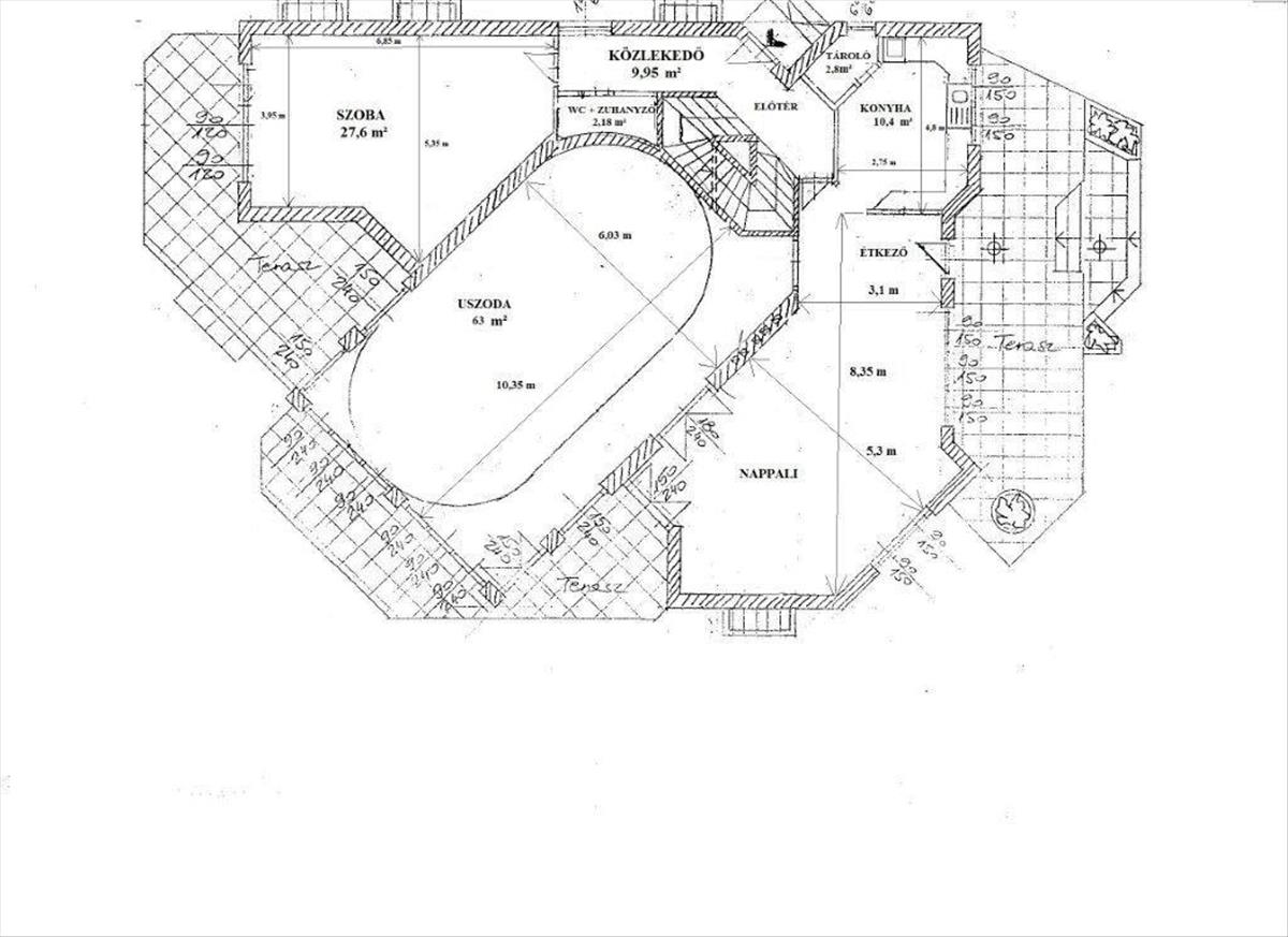
A házban 10×4×1, 6 m-es belső medence található, ezért (némi átalakítással) akár panzióként is hasznosítható. Szauna és konditerem is van az épületben.
A telekre további különálló épület építhető, vagy a ház átépítésével többlakásos társasházként is hasznosítható.
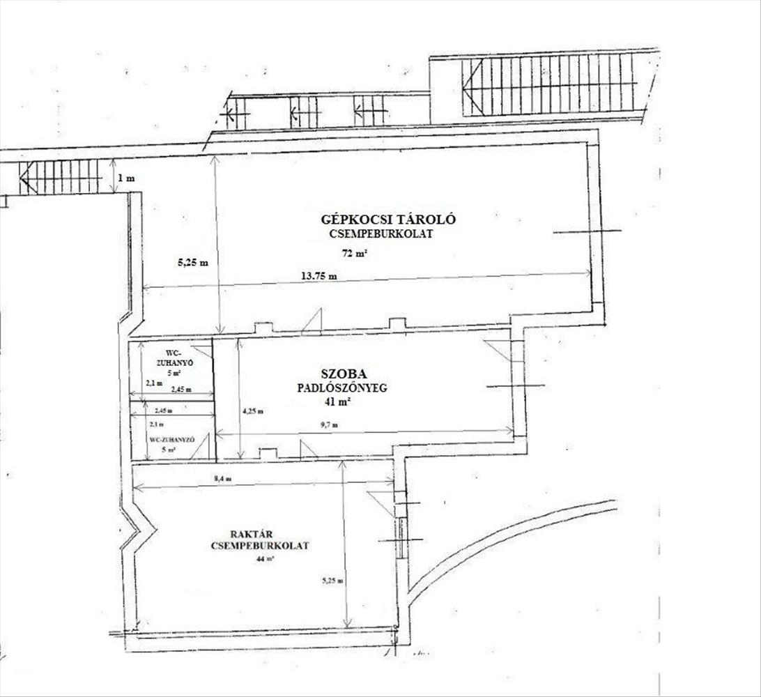
Az ingatlanban jelenleg 6 db gépkocsi tárolására alkalmas fűtött garázs található, mely igény esetén tovább bővíthető. Az épület földszintjén 2 db utcai bejáratú cca. 50 m2-es helyiség található zuhannyal WC-vel ellátva, melyek akár külön kiadhatóak, vagy kisebb vállalkozásokra (pl. : Fodrászat, kozmetika, könyvelőiroda stb. ) Kiválóan hasznosíthatóak.
A ház előtt a parkolás több gépkocsi számára megoldott és ingyenes.
A ház kiépítése miatt (lakás a házban rendszer) jelenleg is kétszeresen vehető igénybe a rezsitámogatott gázár.
Az ingatlan több terasszal rendelkezik, melyekből kilátás nyílik a városra, a Budai hegyekre, és a gyümölcsfákkal beültetett nagy méretű gondozott kertre.
Az épület riasztó rendszerrel és légkondicionálással ellátott.
Az épület fűtéséről egy 2021-ben kiépítésre került rendkívül korszerű energiatakarékos wifi rendszerrel vezérelt bosch típusú kondenzációs kazán gondoskodik. Az ingatlan azonnal költözhető, per, igény és tehermentes.
Amennyiben felketettem érdeklődését várom hívását. Hitel.hu - Hasonlítsa össze a bankok lakáshitel ajánlatait
Tetszett ez az eladó Budapest III. kerületi jó állapotú 9 szobás családi ház? Hívd fel a hirdetőt most, és tudj meg mindent erről az eladó családi házról! Ha gondolod nézelődj tovább az eladó ház Budapest III. kerület oldal hirdetései között. Ennek az eladó háznak az ára 549000000 Ft és mivel az alapterülete 700 négyzetméter, ezért az átlagos négyzetméterára 784286 HUF/m2.
Az eladó házak menüpontban további hirdetések között is böngészhetsz. Ha van kedved, akkor böngészhetsz a Estók Niki összes hirdetése között, vagy akár a/az Be My Home összes hirdetése között is.

