- >>
- eladó ingatlanok
- >>
- eladó ház
- >>
- eladó ház Budapest X. kerület
- >>
Eladó jó állapotú ház - Budapest X. kerület
| | |||
| Kedvencnek jelölöm | Elküldöm emailben | Megosztás | Szavazás |
| FIX 3% lakáshitelre megvehető | |||
| 149 900 000 HUF | |||
Ingatlan adatai
- Eladó vagy kiadó:Eladó
- Település:Budapest X. kerület
- Kategória:Ház
- Alkategória:Családi ház
- Alapterület:119 m2
- Telekterület:1296 m2
- Csere is:Nem
- Hirdető:Cég
- Élő videón megtekinthető:Nem
- Építés éve:1934
- Szobaszám:5
- Állapot:Jó állapotú
- Hány szintes az ingatlan:nincs megadva
- Tetőtér:nincs megadva
- Komfortosság:nincs megadva
- Parkolási lehetőség:nincs megadva
- Fűtés:Gáz
- Bútorozottság:nincs megadva
- Fényviszony:nincs megadva
- Tájolás:D
- Kilátás:nincs megadva
- Internet:nincs megadva
- Akadálymentesített:nincs megadva
- Energiatanúsítvány:nincs megadva
- Villany:Van
- Víz:Van
- Gáz:Van
- Csatorna:Van
- Üzenetküldés
- Hívás


Ingatlan hirdetés leírása
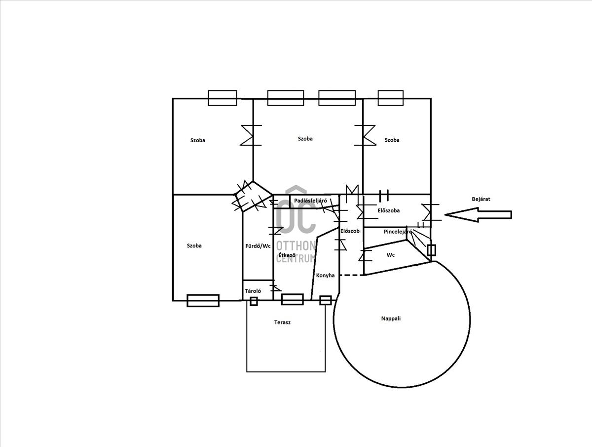
A X. kerület központi részén kínálunk megvételre egy jó állapo...
A x. kerület központi részén kínálunk megvételre egy jó állapotú nagypolgári családi házat.- 1296 Nm-es telek
- 116 nm lakótér
- nappali/télikert + 4 szoba
- konyha
- étkező
- kádas fürdőszoba
- kertre nyíló hatalmas terasz árnyékolóval
- fűtés gázkazánnal
- 1 állásos aknás garázs
- padlástér
Szuterén :
- nagyméretű kádas - zuhanyzós fürdőszoba
- gardróbszoba
- a telken melléképületben egy garzonlakás
Azonnal költözhető!
Kiváló közlekedés, közelben villamos és buszmegálló, pár percre bevásárlási lehetőségek.
Csendes, nyugodt környék, kisgyerekes családoknak kiváló lehetőség!
Ne maradjon le róla! FIX 3% lakáshitelre megvehető


