Eladó új építésű ház Budapest X. kerület
| Kedvencbe | Megosztás | Árfigyelő |
| FIX 3% lakáshitelre megvehető | ||
| 149 900 000 HUF | ||
Ingatlan adatai
- Eladó vagy kiadó:Eladó
- Település:Budapest X. kerület
- Kategória:Ház
- Alkategória:Családi ház
- Alapterület:122 m2
- Telekterület:205 m2
- Csere is:Nem
- Hirdető:Cég
- Élő videón megtekinthető:Nem
- Építés éve:2026
- Szobaszám:4
- Állapot:Új építésű
- Hány szintes az ingatlan:Földszintes
- Tetőtér:nincs megadva
- Komfortosság:nincs megadva
- Parkolási lehetőség:nincs megadva
- Fűtés:Hőszivattyús
- Bútorozottság:nincs megadva
- Fényviszony:Napfényes
- Tájolás:K
- Kilátás:nincs megadva
- Internet:nincs megadva
- Akadálymentesített:nincs megadva
- Energiatanúsítvány:nincs megadva
- Villany:Van
- Víz:Van
- Gáz:Van
- Csatorna:Van
- Üzenetküldés
- Hívás

Referencia szám: HZ085582

Hitel ajánlat
Ingatlan hirdetés leírása
Eladó ház, Budapest 10. ker.
Modern, kétszintes újépítésű ikerház!Budapest x. kerület egyik legnyugodtabb területén, egy csendes mellékutcában, gyönyörű és minőségi családi otthon épül!
Az ingatlan a mai kor műszaki elvárásai szerint kerül felépítésre. Prémium minőségű gépészet és kiváló minőségű anyagok felhasználásával.
A telek adta lehetőségek a leg optimálisabban került kihasználásra, az ikerház felépítésére.
Belső terei megtervezésekor első számú szempont volt a XXI. Századi modern kialakítás, a kényelmes és egyben praktikus tér elrendezés.
Az ingatlanhoz tartozik egy 231 m2-es kert, amely tökéletes egy nagyobb család számára is. a kert privát és nem látni be rá, megfelelő intimitást nyújt.
A csendes elhelyezkedés egyben egy remek infrastruktúrát jelent. a környéken minden megtalálható amire az embernek szüksége lehet, illetve a belváros is rendkívül gyorsan megközelíthető, autóval, és tömegközlekedéssel is.
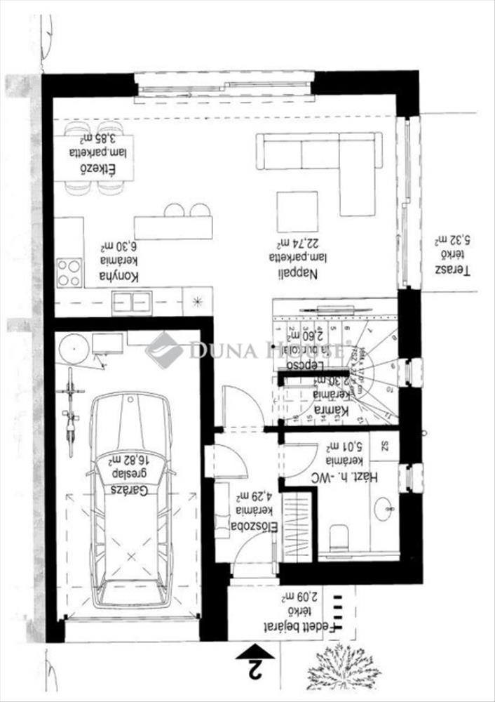
A ház helységei két szinten oszlanak meg, a hasznos alapterület 122 m2.
Az otthon szíve a, közel 33 m2-es amerikai konyhás nappali, ami terasz kapcsolatos, ezen a szinten még zuhanyzó+wc, háztartási helyiség kerül kialakításra.
Tartozik az ingatlanhoz egy fedett garázs is, ahova bőven be lehet parkolni egy nagyméretű autóval is, illetve a holmik tárolására is tökéletes.
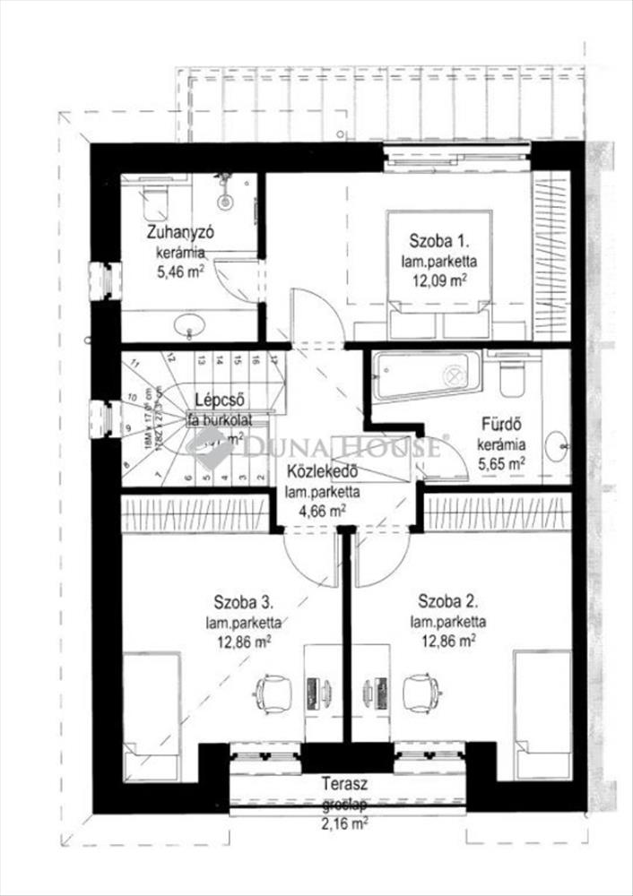
A felső szinten további 3 db teljes értékű szoba várja új tulajdonosait, a lakók kényelmét még két db fürdőszoba szolgálja.
FELÁR ellenében, a vállalkozó vállalja:
- beépített gépesített konyabútort,
- a teljes kertépítést,
- a beépített gardróbszekrényeket.
MŰSZAKI TARTALOM:
- Főfalak: 30 cm porotherm 30 n+f vázkerámia falazóblokk falazat ragasztva,
- Válaszfalak: 10 cm vtg. Kerámia válaszfallapból, speciális ragasztóval,
- Koszorúk: monolit vasbeton szerkezet, külső oldalán 5 cm plusz kiegészítő hőszigeteléssel,
- Födém: monolit vasbeton födém készül, statikai méretezés szerint, emelet felett fa fedélszék,
- Tető: hagyományos ácsszerkezetű magastető készül 25 fokos hajlásszöggel, dobozolt eresz kialakítással, Terrán Zenit Max Carbon szürke színben cserépfedéssel.
- Műanyag nyílászárók fenyő színben, 3 rétegű hőszigetelő üvegezéssel és több ponton záródó biztonsági bejárati ajtóval.
- Burkolatok: hálószobákban laminált parketta melegburkolat, vizes helyiségeben kerámia-, és csempeburkolat készül. Kültéren a gépkocsi behajtó és járdák térkő burkolatúak.
- Homlokzati hőszigetelés expandált polisztirol hőszigetelő lemez 15 cm vtg-ban
- Lábazati hőszigetelés extrudált polisztirol hőszigetelő lemez 12 cm vtg-ban
- Koszorú külső hőszigetelés expandált polisztirol hőszigetelő lemez 5 cm vtg-ban
- Hőszigetelés padlóban expandált polisztirol hőszigetelő lemez 10 cm vtg-ban
- Födém feletti hőszigetelés eps hőszigetelés, 20 cm vtg-ban,
- hőszivattyús fűtés, mennyezeti fűtés, hútés.
EXTRÁK:
- okos RENDSZER,
- elektromos redőnyök,
- kamera és riasztó rendszer kiépítés,
- videó kaputelefon,
- elektromos kapu,
- öntöző rendszer,
- elektromos autótöltő kiépítés,
- Wpc kerítés,
- 3 rétegű üvegek,
- rejtett világítások,
- udvar világítások,
- légtechnika.
Teljes átláthatóság az építkezés során digitálisan, kényelmesen, biztonságosan!
Az építkezés nálunk nem csak szakmai precizitásról szól, hanem valódi átláthatóságról is. a PlanRadar digitális projektkövető rendszerének köszönhetően Ön, mint leendő tulajdonos:
Valós időben nyomon követheti az építkezés minden lépését akár mobilról is.
Kéthetente részletes jelentést kap az aktuális állapotról, fotókkal, dokumentumokkal.
A projekt végén digitálisan megkapja az összes hivatalos dokumentumot, beleértve a garanciákat, tervrajzokat, átadási jegyzőkönyveket mindezt egyetlen, biztonságos platformon.
FINANSZÍROZÁS: Hitelre megvásárolható, vevőink részére díjmentes hitel közvetítés, minden magyarországi bankból. Állami támogatások felvehetőek rá!
Átadás: 2026. III. NEGYEDÉV
Ne hagyja ki ezt a páratlan lehetőséget! Egy ilyen prémium ingatlan ritkán kerül piacra, és most Ön előtt áll a lehetőség, hogy a város egyik legvonzóbb helyén éljen. Tökéletes választás a modern, kényelmes és biztonságos életstílust keresők számára!
Várom megtisztelő hívását a hét minden napján! FIX 3% lakáshitelre megvehető

