Eladó jó állapotú ház - Budapest XI. kerület
- INGYENES HIRDETÉS FELADÁS
Ingatlan adatai
- Eladó vagy kiadó:Eladó
- Település:Budapest XI. kerület
- Kategória:Ház
- Alkategória:Családi ház
- Alapterület:150 m2
- Telekterület:628 m2
- Csere is:Nem
- Hirdető:Cég
- Élő videón megtekinthető:Nem
- Építés éve:1980
- Szobaszám:6
- Állapot:Jó állapotú
- Hány szintes az ingatlan:2 szintes
- Tetőtér:nincs megadva
- Komfortosság:nincs megadva
- Pince:nincs megadva
- Parkolási lehetőség:Udvaron
- Fűtés:Gáz (cirko)
- Bútorozottság:nincs megadva
- Fényviszony:Napfényes
- Tájolás:nincs megadva
- Kilátás:nincs megadva
- Internet:nincs megadva
- Klíma:Van
- Akadálymentesített:nincs megadva
- Energiatanúsítvány:nincs megadva
- Villany:nincs megadva
- Víz:nincs megadva
- Gáz:nincs megadva
- Csatorna:nincs megadva
- Kapcsolatfelvétel

Takács Zsuzsanna
+36-(30)-495-3819
Mondd meg a hirdetőnek, hogy a megveszLAK-on találtad a hirdetést.
Referencia szám: M302340
Ingatlan hirdetés leírása
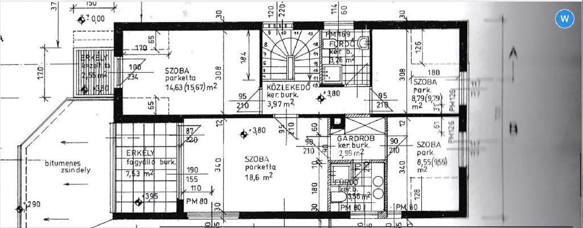
Eladó Ház, Budapest 11. ker.
Budapest, XI. kerület, Kelenvölgyben eladó, tehermentes, amerikai konyhás nappalis+ 5 szobás, 2 szintes családi ház.
Az eredeti épület 1987-ben épült, de 2015-ben a főfalak megtartásával építési engedéllyel, teljes átalakításon esett át. a belső lépcsőt is kicserélték. a jelenlegi gépészetet is akkor került alakították ki. a padlófűtés és a radiátorok Ariston cirkóról működnek, a melegvizet a cirkó melegíti fel, de egy Ariston tároló tartályból kerül a vízcsapokba, így nem okoz gondot, ha egyszerre több helyen is megnyitják a melegvíz csapot.
3 Fürdőszoba található a házban, 1 kádas és zuhanykabinos a földszinten, és 2 zuhanyzós az emeleten.
A földszinten ezen kívül még található egy vendég mosdó is WC-vel. Minden fürdőszobában van wc is.
A földszinten egy 30 nm-es fedett és egy 12 nm-es fedetlen terasz található. Az emeleten szintén van egy 6 nm-es loggia és egy 2 nm-es kis terasz. a ház mellett 2 autó részére fedett gépkocsibeállót lehet használni, elektromos autó számára kiépített töltőállomás is van. (3 Fázis).
A kertben egy nagyobb méretű melléképület is található.
Az amerikai konyhás nappaliban, valamint a vizes helyiségekben járólap a szobákban valódi faburkolat van.
A földszinten és az emeleten is van klíma, a földszinti helyiségeken és a déli fekvésű emeleti szobákon redőny van.
A házon 15 cm-es dryvit szigetelés van, ezért a rezsi nagyon kedvező.
A ház riasztóval szerelt.
Az új kerítés tavaly készült el.
A nappaliból és az innen nyíló fedett teraszról szép kilátás nyílik a hangulatos kertre, melyben sok gyümölcsfa (cseresznye, füge, alma, termő gránátalma és örökzöldek (leylandi cédrus, leanderek), valamint rózsák találhatók.
A kertben egy kerti grillező is helyet kapott.
M302340
Az OTP Ingatlanpont, mint egyetlen közvetlen banki hátterű ingatlanközvetítő társaság teljes körű ügyintézéssel áll az eladók és a vevők rendelkezésére! a kínálatunkból választott ingatlan finanszírozásához minősített fogyasztóbarát, piaci és kedvezményes hitel- és lízingkonstrukciókat kínálunk (lakásvásárlási hitel, CSOK plusz, szabad felhasználású hitel, babaváró hitel, céges hitelek, pályázatok). Az adásvételi szerződés megkötéséhez igény szerint megbízható ügyvédi közreműködést biztosítunk, és segítséget nyújtunk az adásvételhez kapcsolódó egyéb ügyek intézéséhez.
Ha az új ingatlana megvásárlásához a jelenlegi ingatlanát el kell adnia, abban is szívesen segítünk.
Referencia szám: m302340-ml Hitel.hu - Hasonlítsa össze a bankok lakáshitel ajánlatait


