Eladó felújítandó ház - Budapest XIX. kerület
- INGYENES HIRDETÉS FELADÁS
Ingatlan adatai
- Eladó vagy kiadó:Eladó
- Település:Budapest XIX. kerület
- Kategória:Ház
- Alkategória:Családi ház
- Alapterület:60 m2
- Telekterület:359 m2
- Csere is:Nem
- Hirdető:Cég
- Élő videón megtekinthető:Nem
- Építés éve:1933
- Szobaszám:2
- Állapot:Felújítandó
- Hány szintes az ingatlan:Földszintes
- Tetőtér:nincs megadva
- Komfortosság:nincs megadva
- Pince:Van
- Parkolási lehetőség:Utcán
- Fűtés:Gáz (cirko)
- Bútorozottság:nincs megadva
- Fényviszony:nincs megadva
- Tájolás:nincs megadva
- Kilátás:nincs megadva
- Internet:nincs megadva
- Klíma:nincs megadva
- Akadálymentesített:nincs megadva
- Energiatanúsítvány:nincs megadva
- Villany:Van
- Víz:Van
- Gáz:Van
- Csatorna:Van
- Kapcsolatfelvétel

Tokarcsik Károly (Tula...
+36-(30)-695-1357
Mondd meg a hirdetőnek, hogy a megveszLAK-on találtad a hirdetést.
Hitel ajánlatok
Ingatlan hirdetés leírása
Hirdetünk ön helyett!
Az ingatlan vételárát közvetítői díj nem terheli, tulajdonos: Tokarcsik Károly +36306951357
Egy lakás vagy egy kertes ház? Most kertes házat vehet egy panel lakás áráért!
Ezzel az ingatlannal foglalkozni kell, akár bővíthető is.
Ez nem házrész, nincs ügyvédi megosztás 1/1-es saját helyrajzi számmal rendelkező ingatlan.
Utcafront: 9, 48 méter
Telekhosszúság:37, 42 méter
Teleknagyság:359 m2
Áram:32A Nappali 20a éjszakai árammal.
Fűtés: Gáz központi ( mika Gázkazán - karbantartva, )
Meleg víz ellátás: Hajdú bojler ( éjszakai árammal).
EPH jegyzőkönyv: 2019-es.
Nyílászárók: Műanyag, alumínium redőnyökkel.
Szigetelés: Az ingatlan frontja illetve födémje szigeteléssel rendelkezik.
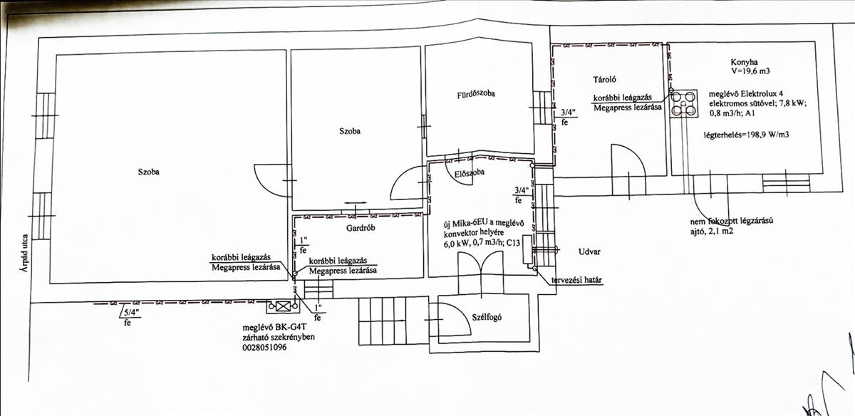
Fő épület 1 + fél szoba kb. 48 Nm.
Van egy kis pince is 3, 6 nm
Nyári konyha (10 nm ) és tároló (9 nm )
Kerti tároló 10 nm a kert végében.
Parkolás: Az ingatlan előtt az utcán, de a beállás is kialakítható.
Lokáció:
Óvoda, iskola a közelben. Tömegközlekedés pár perc sétával elérhető. 68 Busz
Csendes kertvárosi környék. FIX 3% lakáshitelre megvehető
Tetszett ez az eladó Budapest XIX. kerületi felújítandó 2 szobás családi ház? Hívd fel a hirdetőt most, és tudj meg mindent erről az eladó családi házról! Ha gondolod nézelődj tovább az eladó ház Budapest XIX. kerület oldal hirdetései között. Ennek az eladó háznak az ára 67500000 Ft és mivel az alapterülete 60 négyzetméter, ezért az átlagos négyzetméterára 1125000 HUF/m2.
Az eladó házak menüpontban további hirdetések között is böngészhetsz. Ha van kedved, akkor böngészhetsz a Tokarcsik Károly (Tulajdonos) összes hirdetése között, vagy akár a/az Hirdetünk ön helyett! összes hirdetése között is.

