Eladó új építésű ház Budapest XV. kerület
| Kedvencbe | Megosztás | Árfigyelő |
| Kedvezményes lakáshitel ajánlatok | ||
| 155 000 000 HUF | ||
Ingatlan adatai
- Eladó vagy kiadó:Eladó
- Település:Budapest XV. kerület
- Kategória:Ház
- Alkategória:Családi ház
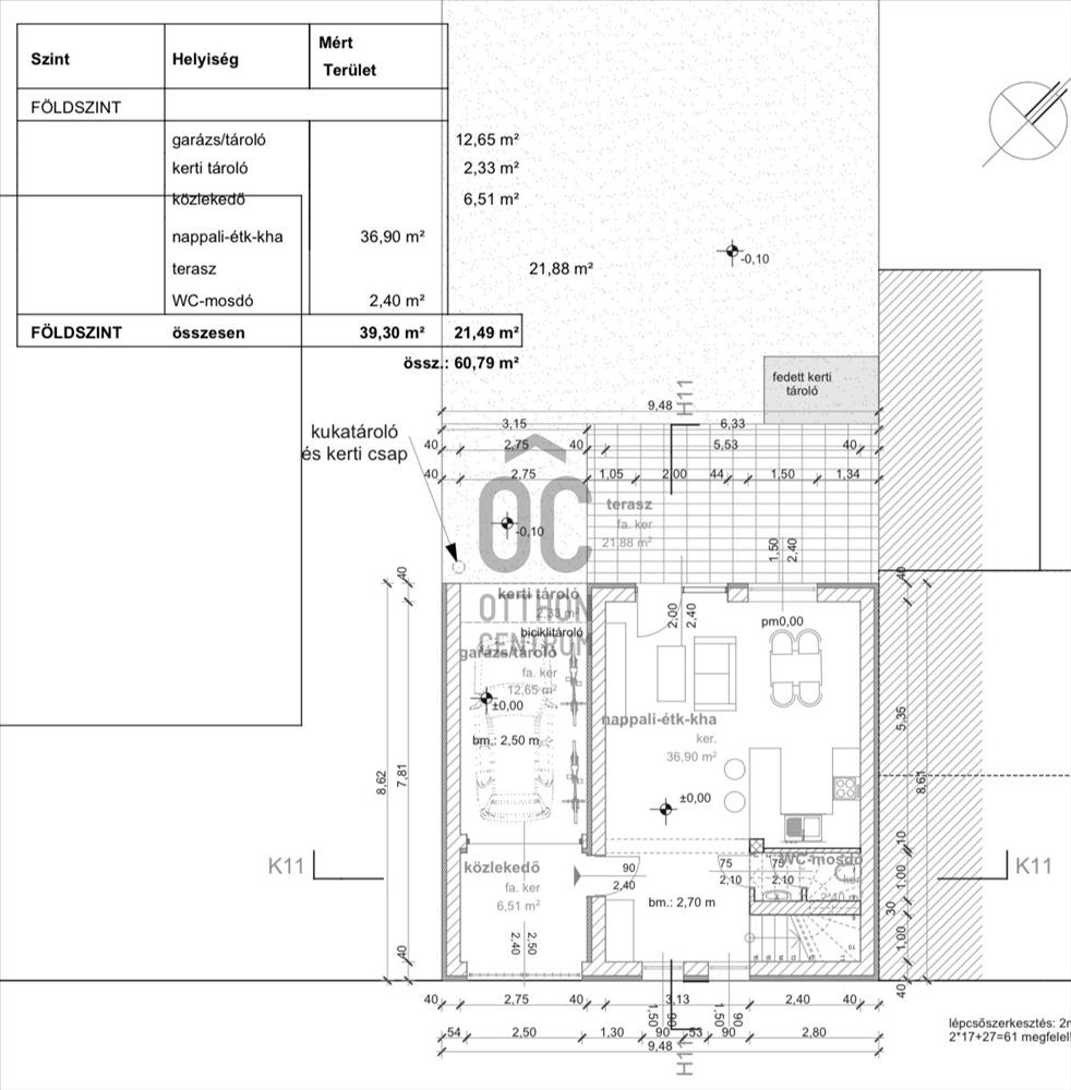
- Alapterület:125 m2
- Telekterület:340 m2
- Csere is:Nem
- Hirdető:Cég
- Élő videón megtekinthető:Nem
- Építés éve:2026
- Szobaszám:4
- Állapot:Új építésű
- Hány szintes az ingatlan:nincs megadva
- Tetőtér:nincs megadva
- Komfortosság:nincs megadva
- Parkolási lehetőség:nincs megadva
- Fűtés:Gáz (cirko)
- Bútorozottság:nincs megadva
- Fényviszony:nincs megadva
- Tájolás:ÉNY
- Kilátás:nincs megadva
- Internet:nincs megadva
- Akadálymentesített:nincs megadva
- Energiatanúsítvány:nincs megadva
- Villany:Van
- Víz:Van
- Gáz:Van
- Csatorna:Van
- Üzenetküldés
- Hívás


Hitel ajánlat
Ingatlan hirdetés leírása
Rákospalota kedvelt, kertvárosi részén, újépítésű családi ház,...
Rákospalota kedvelt, kertvárosi részén, újépítésű családi ház, referenciákkal rendelkező építtetőtől eladóA projekt folyamosan épült, várható kulcsrakész átadás 2026. Nyara!
De nézzük a részleteket!
- 341 m2-es telek
- 125 m2 nettó alapterületű, kétszintes ház
- a földszinten nagy, amerikai konyhás nappali, egy mosdó és egy terasz, valamint egy garázs kapott helyett
- az emeleten 3 halószoba, egy fürdőszoba, valamint egy háztartási helyiség kerül kialakításra
- magas műszaki tartalom, antracit cseréptető, gázcirkó, hűtő-fűtő klíma, 3 rétegű műanyag ablakok, 15 cm-es szigetelés
- a belső nyílászárók, falszínek, burkolatok, szaniterek még választhatók!
- Az ár tartalmazza a tereprendezést, valamint a fa kerítés elkészítését is
Kiváló lokáció. M3 autópálya pár perc alatt elérhető, Pólus Center, bevásárlási lehetőség 5 perc alatt elérhető. Buszmegálló a sarkon.
Jöjjön, és nézze meg még ma! Kiváló lehetőség!
Igény esetén bankfüggetlen szakemberünk ingyenes tanácsadással, ügyintézéssel áll rendelkezésére. Hitel.hu - Hasonlítsa össze a bankok lakáshitel ajánlatait

