Eladó újszerű állapotú ház Budapest XVI. kerület
| Kedvencbe | Megosztás | Árfigyelő |
| Kedvezményes lakáshitel ajánlatok | ||
| 269 000 000 HUF | ||
Ingatlan adatai
- Eladó vagy kiadó:Eladó
- Település:Budapest XVI. kerület
- Kategória:Ház
- Alkategória:Családi ház
- Alapterület:225 m2
- Telekterület:685 m2
- Csere is:Nem
- Hirdető:Cég
- Élő videón megtekinthető:Nem
- Építés éve:2024
- Szobaszám:5 + 1 fél
- Állapot:Újszerű, kitűnő
- Hány szintes az ingatlan:2 szintes
- Tetőtér:nincs megadva
- Komfortosság:Dupla komfortos
- Parkolási lehetőség:Udvaron
- Fűtés:Geotermikus
- Bútorozottság:nincs megadva
- Fényviszony:nincs megadva
- Tájolás:nincs megadva
- Kilátás:nincs megadva
- Internet:nincs megadva
- Akadálymentesített:nincs megadva
- Energiatanúsítvány:nincs megadva
- Villany:nincs megadva
- Víz:nincs megadva
- Gáz:nincs megadva
- Csatorna:nincs megadva
- Üzenetküldés
- Hívás
Referencia szám: IHL-G-849

Hitel ajánlat
Ingatlan hirdetés leírása
Eladó családi ház Budapest XVI. kerület
Eladó Budapest 16. kerületében Sashalom kedvelt részén megvalósult nettó: 187 nm lakóterületű modern, minden igényt kielégítő energiatakarékos 2 szintes, 25 nm pincével rendelkező családi ház. 685 Nm telekkel.Az ingatlant megbízható, nagy múltú, több referenciával rendelkező vállalkozó építi!
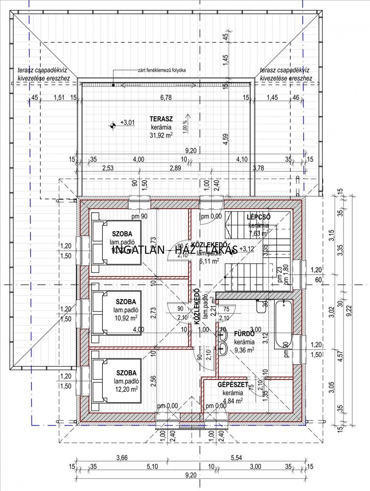
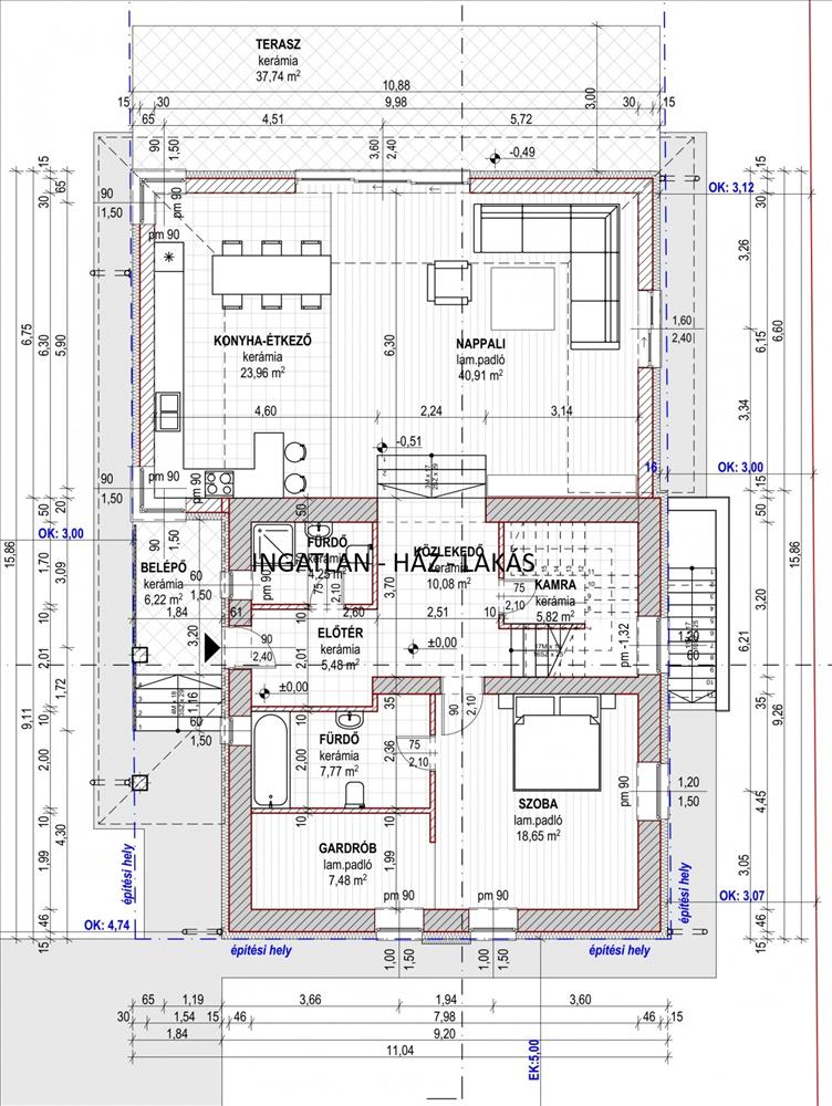
A házban 4 hálószoba, nagy nappali / amerikai étkezős konyha, 3 fürdőszoba, háztartási helyiség, tároló, gardrób, kertkapcsolatos terasz 37 nm valamint emeleti terasz 32 nm lett kialakítva.
Elosztás:
Földszint 125 nm + 37 nm terasz, kert mérete: 685 nm.
A földszinten található egy nagy nappali, étkezős konyha, hálószoba saját fürdőszoba, gardrób, tároló (zuhanyzó és wc) terasz antracit színű tolóajtós kertkapcsolat megközelítés.
Emelet 62 nm + 32 nm terasz,
Az emeleten található 3 hálószoba, közlekedő és egy fürdőszoba. a szobákhoz tartozik egy hatalmas, 32 nm-es terasz, aminek a korlátja üvegből készült.
Műszaki tartalom:
-falazat Porotherm 30-as síkra csiszolt tégla, monolit beton födém, 15 cm szigetelés
- Fűtés és hűtés: Az ingatlanban hőszivattyús padlófűtés lesz kialakítva, ami a fűtést szolgálja. Valamint a használati melegvizet biztosítja tárolón keresztül.
Klimatizált ingatlan fan coil kialakítása a hőszivattyúról szobánkként.
- 3 Rétegű üvegezés, toló ajtós terasz ajtók, antracit színű nyílászárók, redőnyök (motoros alu opció), kamera és riasztó rendszer,
-Beltéri hideg burkolatuk, meleg burkolatok, kül- és beltéri ajtók választhatók.
-Kert: a házhoz nagy kert tartozik. a kertben viacolor járda és autóbeálló is megtalálható.
Az ingatlan, amely számos modern kényelmi funkcióval és kiváló kültéri területekkel rendelkezik.
Referenciák a környéken megtekinthetők!
Várható átadás 2025. Ii-iii. Negyedév vége.
Ha bármilyen további információra van szüksége, vagy kérdései vannak az ingatlannal kapcsolatban, ne habozz megkérdezni, jelentkezni személyes megtekintéssel kapcsolatban a hét minden napján!
Ingyenes hitel ügyintézéssel és ügyvédi háttérrel segítjük ügyfeleinket a vásárlásban. Ha vásárláshoz még el kell adnia jelenlegi otthonát, annak értékesítését, kedvezményesen vállaljuk, hogy mihamarabb be tudjon, költözi álmai otthonába!
További információkért és megtekintésért várom megtisztelő hívását a hét minden napján!
IRÁNYMUTATÁS a CSOK + maximális kihasználásának lehetőségére amennyiben nem rendelkeznek közösen első LAKÁSSAL!
TELJES kínálatunkat területenként bővebb információkkal személyre szabva specifikusan a Lenti linken tájékozódhat. Hitelek, babaváró és ltp kalkulátorok. Keressen minket PROFILUNKON:
https://ingatlanhazlakas. Hu Hitel.hu - Hasonlítsa össze a bankok lakáshitel ajánlatait

