Eladó újszerű állapotú ház Budapest XVII. kerület
| Kedvencbe | Megosztás | Árfigyelő |
| Kedvezményes lakáshitel ajánlatok | ||
| 138 000 000 HUF | ||
Ingatlan adatai
- Eladó vagy kiadó:Eladó
- Település:Budapest XVII. kerület
- Kategória:Ház
- Alkategória:Családi ház
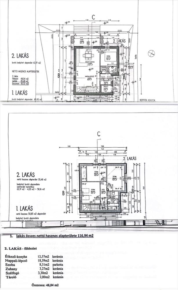
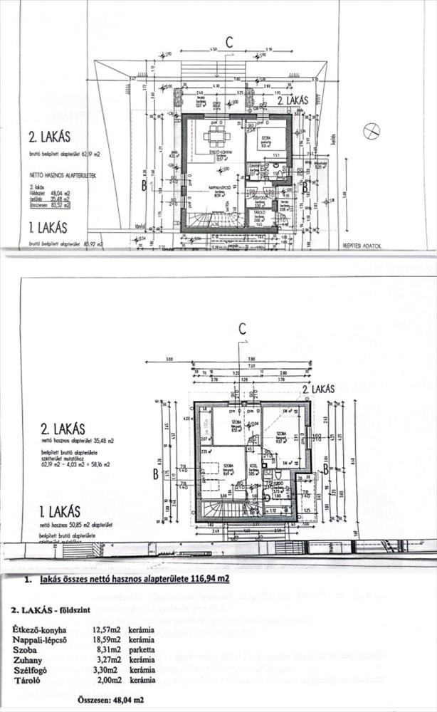
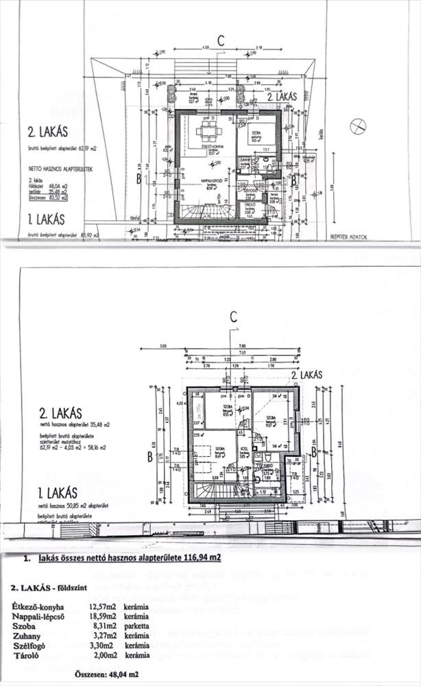
- Alapterület:83 m2
- Telekterület:613 m2
- Csere is:Nem
- Hirdető:Cég
- Élő videón megtekinthető:Nem
- Építés éve:2018
- Szobaszám:1 + 4 fél
- Állapot:Újszerű, kitűnő
- Hány szintes az ingatlan:2 szintes
- Tetőtér:nincs megadva
- Komfortosság:nincs megadva
- Parkolási lehetőség:Beállóban
- Fűtés:Gáz (cirko)
- Bútorozottság:nincs megadva
- Fényviszony:nincs megadva
- Tájolás:nincs megadva
- Kilátás:nincs megadva
- Internet:nincs megadva
- Akadálymentesített:nincs megadva
- Energiatanúsítvány:nincs megadva
- Villany:Van
- Víz:Van
- Gáz:Van
- Csatorna:Van
- Üzenetküldés
- Hívás


Hitel ajánlat
Ingatlan hirdetés leírása
Nyugalom és modern kényelem Rákoskerten – újszerű családi ház ...
Nyugalom és modern kényelem Rákoskerten – újszerű családi ház eladó a XVII. kerületbenBudapest XVII. kerületének közkedvelt, csendes rákoskerti részén kínálunk megvételre egy kiváló elosztású, újszerű állapotú családi házat, amely 2018-ban épült, és azóta is gondosan karbantartott, szeretettel ápolt otthon.
Már az első lépéseknél érezhető az ingatlan harmonikus hangulata.
A házba belépve az előszobából
– jobbra egy zuhanyzós fürdőszoba,
– balra egy háztartási helyiség és kamra,
– szemben pedig a tágas, világos amerikai konyhás nappali fogad.
A nappaliból közvetlenül nyílik a földszinti hálószoba, az étkező pedig teraszkijáratos, így a belső tér és a kert kapcsolata természetes és kényelmes.
Az emeleten további 3 külön nyíló hálószoba és egy kádas fürdőszoba található, ideális elrendezést biztosítva családok számára.
Műszaki tartalom és kényelem
Gázcirkó fűtés
A földszinten a hidegburkolatos helyiségekben padlófűtés, a szobákban radiátoros hőleadás
Klímaberendezés az emeleten a kellemes nyári hőmérsékletért
Videós kaputelefon a biztonságos beengedéshez
Riasztórendszer előkészített vezetékezéssel
Kültér
A szépen gondozott udvaron egy külön elkerített, hangulatos kerti sütögető rész került kialakításra – tökéletes helyszín családi és baráti összejövetelekhez.
Ez az ingatlan ideális választás mindazoknak, akik a városi élet kényelmét szeretnék ötvözni az otthon nyugalmával és meghittségével. Különösen ajánlott kisgyermekes családok számára, de mindenki számára tökéletes, aki rendezett, modern otthonra vágyik csendes környezetben.
Az ingatlan hitelezhető. Hitel.hu - Hasonlítsa össze a bankok lakáshitel ajánlatait

