Eladó újszerű állapotú ház - Budapest XVII. kerület
- INGYENES HIRDETÉS FELADÁS
Ingatlan adatai
- Eladó vagy kiadó:Eladó
- Település:Budapest XVII. kerület
- Kategória:Ház
- Alkategória:Családi ház
- Alapterület:100 m2
- Telekterület:722 m2
- Csere is:Nem
- Hirdető:Cég
- Élő videón megtekinthető:Nem
- Építés éve:1976
- Szobaszám:3 + 1 fél
- Állapot:Újszerű, kitűnő
- Hány szintes az ingatlan:nincs megadva
- Tetőtér:nincs megadva
- Komfortosság:nincs megadva
- Pince:nincs megadva
- Parkolási lehetőség:Beállóban
- Fűtés:Egyéb
- Bútorozottság:nincs megadva
- Fényviszony:nincs megadva
- Tájolás:nincs megadva
- Kilátás:nincs megadva
- Internet:nincs megadva
- Klíma:nincs megadva
- Akadálymentesített:nincs megadva
- Energiatanúsítvány:nincs megadva
- Villany:Van
- Víz:Van
- Gáz:Van
- Csatorna:Van
- Kapcsolatfelvétel

Fehérkuti Dóra
+36-(20)-328-7020
Mondd meg a hirdetőnek, hogy a megveszLAK-on találtad a hirdetést.
Ingatlan hirdetés leírása
Rákoskerten, kétszintes, 3+1 szobás családi ház, műhellyel eladó
Eladó a XVII. kerületben, Rákoskerten egy jó állapotú, kényelmes, világos 3+1 szobás, 100 nm-es családi ház, amely 722 nm-es telekre épült.
Kényelmes családi otthon extra lehetőséggel, saját autószerelő műhely a telken!
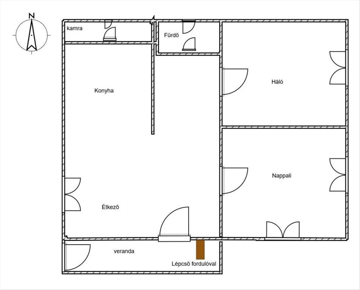
A földszinten étkezős konyha, kamra, nappali, hálószoba, fürdő WC-vel került kialakításra.
A tágas zárt verandáról juthatunk fel a tetőtérbe, ahol 2 szoba, zuhanyzós fürdő WC-vel és egy közlekedő található.
A ház egy része alatt 11, 6 nm-es száraz, jó állapotú pince található.
Fedett, kövezett teraszán kávézhatunk, családdal, barátokkal sütögethetünk.
Szép gondozott kertje biztosítja a kikapcsolódást.
Az igazi különlegesség a telken található, különálló épületben lévő autószerelő műhely, amely tökéletes hobbi célra, vagy akár kisebb vállalkozás indítására.
A műhely a lakóteret nem zavarja, mégis karnyújtásnyira van.
Ideális megoldás autószerelőknek vagy barkácsolni vágyóknak, hobbi célra.
Főbb jellemzők:
Családi ház + Műhely
Építés éve: 1976
Tetőtér beépítés: 1986
Teljes tetőcsere: 2002
Szigetelt homlokzat
Fűtése gázcirkóval, radiátorokkal
Riasztó
Automata kapu
Nyílászáró: a földszinten felújított fa ablakkeretek, redőnnyel. a tetőtérben alumínium.
Szerelőműhely: 4 autó beállással (60 nm), szerelőaknával a másik, ami lakóautók tárolására adott helyet (80 nm).
Lokáció: közelben óvoda, iskola, vásárlási lehetőség, buszmegálló 2 perc sétával elérhető
Keressen bizalommal a hét bármely napján! FIX 3% lakáshitelre megvehető


