Eladó jó állapotú ház - Budapest XVII. kerület
- INGYENES HIRDETÉS FELADÁS
Ingatlan adatai
- Eladó vagy kiadó:Eladó
- Település:Budapest XVII. kerület
- Kategória:Ház
- Alkategória:Családi ház
- Alapterület:150 m2
- Telekterület:678 m2
- Csere is:Nem
- Hirdető:Cég
- Élő videón megtekinthető:Nem
- Építés éve:1970
- Szobaszám:5
- Állapot:Jó állapotú
- Hány szintes az ingatlan:Földszintes
- Tetőtér:nincs megadva
- Komfortosság:nincs megadva
- Pince:nincs megadva
- Parkolási lehetőség:nincs megadva
- Fűtés:Gáz
- Bútorozottság:nincs megadva
- Fényviszony:Jó
- Tájolás:D
- Kilátás:nincs megadva
- Internet:nincs megadva
- Klíma:nincs megadva
- Akadálymentesített:nincs megadva
- Energiatanúsítvány:nincs megadva
- Villany:nincs megadva
- Víz:nincs megadva
- Gáz:nincs megadva
- Csatorna:nincs megadva
- Kapcsolatfelvétel

Póta-Für Adrienn
+36-(30)-115-1416
Mondd meg a hirdetőnek, hogy a megveszLAK-on találtad a hirdetést.
Referencia szám: HZ046088
Hitel ajánlatok
Ingatlan hirdetés leírása
Kétgenerációs családi ház Rákoskerten
Eladó igényesen felújított, kétgenerációs családi ház Rákoskerten, termő gyümölcsfákkal hívogató tágas kerttel
Budapest XVII. kerületének legkeresettebb részén, Rákoskerten, aszfaltozott mellékutcában kínálok megvételre egy nettó 150 m² (bruttó 180 m²-es), akár kétgenerációs együttélésre is alkalmas, pincével és beépített tetőtérrel rendelkező családi házat, parkosított közel 680 m²-es kerttel.
Az ingatlan az 1970-es években téglából épült, majd 2020-tól folyamatos, teljes körű felújításon esett át.
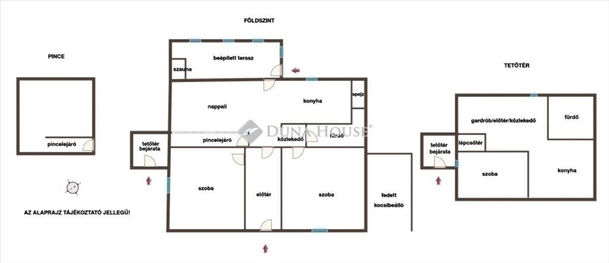
Kialakítás:
Földszint: nappali, konyha, 3 szoba, fürdőszoba + wc, közlekedő, beépített terasz szaunával
Beépített tetőtér: nappali, konyha, szoba, fürdőszoba + wc, közlekedő
Kert: parkosított kert tárolókkal, kutya kennellel, fedett kocsibeállóval
Pince + padlás: tárolási lehetőségek
Felújítás és felszereltség:
Teljes tetőszerkezet és a hideg-meleg burkolatok cseréje
10 cm külső hőszigetelés, tetőtér oldalán dupla gipszkartonos kialakítás és 25 cm, födémnél 30 cm szigetelés
Víz-, elektromos- és szennyvízhálózat teljesen felújítva
Új központi fűtésrendszer gázkazánnal, + kandalló
Korszerű műanyag nyílászárók szúnyoghálóval ellátva
Gépesített konyha, kamra
Szintenként hűtő-fűtő klíma
Elhelyezkedés:
A környék infrastruktúrája kiváló:
Néhány perc sétával elérhető iskola, óvoda, posta, orvosi rendelő és kisebb boltok
bkk buszmegálló és Rákoskert vasútállomás néhány perc sétára található,
Autóval 5 perc a maglódi Auchan bevásárlóközpont, az M0-s csomópontja
Ez a ház tökéletes választás azok számára, akik igényes, kétgenerációs otthont keresnek csendes, kertvárosi környezetben, de mégis kiváló közlekedési és infrastruktúra kapcsolattal. a ház minden részlete a minőséget, a kényelmet és a harmóniát szolgálja. Megegyezés alapján akár rövid határidővel költözhető.
Ha kérdése van vagy szeretné megtekinteni, keressen bizalommal a hét bármely napján!
Póta-Für Adrienn, ingatlanértékesítő
+36 30 115 1416
potafur. Adrienn@dh. Hu
Ha még nem találta meg új otthonát, esetleg a vásárláshoz előbb el kell adnia egy ingatlant, keressen a fenti elérhetőségeimen, együtt megtaláljuk a megoldást!
Irodánk pénzügyi szakértője díjmentes és bankfüggetlen hiteltanácsadással segíti a vásárlást, melynek lebonyolításához igény esetén megbízható ügyvédi hátteret biztosítunk.
Referencia szám: hz046088 FIX 3% lakáshitelre megvehető
Tetszett ez az eladó Budapest XVII. kerületi jó állapotú 5 szobás családi ház? Hívd fel a hirdetőt most, és tudj meg mindent erről az eladó családi házról! Ha gondolod nézelődj tovább az eladó ház Budapest XVII. kerület oldal hirdetései között. Ennek az eladó háznak az ára 125000000 Ft és mivel az alapterülete 150 négyzetméter, ezért az átlagos négyzetméterára 833333 HUF/m2.
Az eladó házak menüpontban további hirdetések között is böngészhetsz. Ha van kedved, akkor böngészhetsz a Póta-Für Adrienn összes hirdetése között, vagy akár a/az Duna House Villa Gyömrő összes hirdetése között is.

