Eladó jó állapotú ház Budapest XVII. kerület
| Kedvencbe | Megosztás | Árfigyelő |
| FIX 3% lakáshitelre megvehető | ||
| 134 900 000 HUF | ||
Ingatlan adatai
- Eladó vagy kiadó:Eladó
- Település:Budapest XVII. kerület
- Kategória:Ház
- Alkategória:Családi ház
- Alapterület:150 m2
- Telekterület:678 m2
- Csere is:Nem
- Hirdető:Cég
- Élő videón megtekinthető:Nem
- Építés éve:1970
- Szobaszám:5
- Állapot:Jó állapotú
- Hány szintes az ingatlan:Földszintes
- Tetőtér:nincs megadva
- Komfortosság:nincs megadva
- Parkolási lehetőség:nincs megadva
- Fűtés:Gáz
- Bútorozottság:nincs megadva
- Fényviszony:Jó
- Tájolás:D
- Kilátás:nincs megadva
- Internet:nincs megadva
- Akadálymentesített:nincs megadva
- Energiatanúsítvány:nincs megadva
- Villany:Van
- Víz:Van
- Gáz:Van
- Csatorna:Van
- Üzenetküldés
- Hívás

Schäffer János Péter
Mondd meg a hirdetőnek, hogy a megveszLAK-on találtad a hirdetést.
Referencia szám: HZ046088

Hitel ajánlat
Ingatlan hirdetés leírása
Eladó ház, Budapest 17. ker.
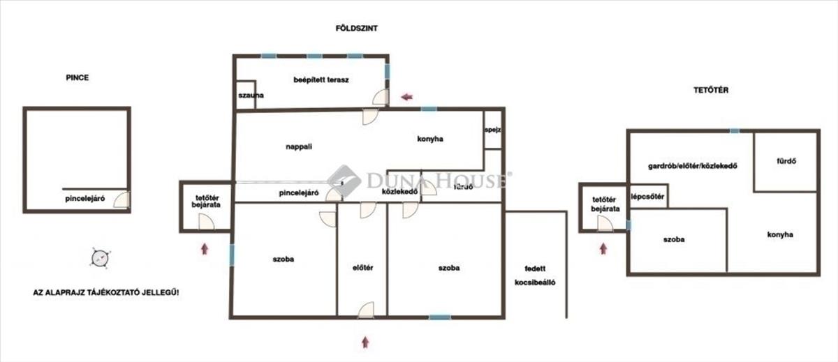
Eladó igényesen felújított, kétgenerációs családi ház Rákoskerten, termő gyümölcsfákkal hívogató tágas kerttelBudapest XVII. kerületének legkeresettebb részén, Rákoskerten, aszfaltozott mellékutcában kínálok megvételre egy nettó 150 m² (bruttó 180 m²-es), akár kétgenerációs együttélésre is alkalmas, pincével és beépített tetőtérrel rendelkező családi házat, parkosított közel 680 m²-es kerttel. Az ingatlan az 1970-es években téglából épült, majd 2020-tól folyamatos, teljes körű felújításon esett át. Kialakítás: Földszint: nappali, konyha, 3 szoba, fürdőszoba + wc, közlekedő, beépített terasz szaunával Beépített tetőtér: nappali, konyha, szoba, fürdőszoba + wc, közlekedő Kert: parkosított kert tárolókkal, kutya kennellel, fedett kocsibeállóval Pince + padlás: tárolási lehetőségekFelújítás és felszereltség: Teljes tetőszerkezet és a hideg-meleg burkolatok cseréje 10 cm külső hőszigetelés, tetőtér oldalán dupla gipszkartonos kialakítás és 25 cm, födémnél 30 cm szigetelés Víz-, elektromos- és szennyvízhálózat teljesen felújítva Új központi fűtésrendszer gázkazánnal, + kandalló Korszerű műanyag nyílászárók szúnyoghálóval ellátva Gépesített konyha, kamra Szintenként hűtő-fűtő klíma Elhelyezkedés:A környék infrastruktúrája kiváló: Néhány perc sétával elérhető iskola, óvoda, posta, orvosi rendelő és kisebb boltok bkk buszmegálló és Rákoskert vasútállomás néhány perc sétára található, Autóval 5 perc a maglódi Auchan bevásárlóközpont, az M0-s csomópontjaEz a ház tökéletes választás azok számára, akik igényes, kétgenerációs otthont keresnek csendes, kertvárosi környezetben, de mégis kiváló közlekedési és infrastruktúra kapcsolattal. a ház minden részlete a minőséget, a kényelmet és a harmóniát szolgálja. Megegyezés alapján akár rövid határidővel költözhető. Amennyiben felkeltettem érdeklődését, keressen bizalommal további információért a hét bármely napján! a Duna House teljes kínálatával állok rendelkezésére! Ingatlan eladás és vétel teljes körű ügyintézése, megbízható ügyvédi háttér biztosítása, ingyenes ingatlan tanácsadás, teljes körű és gyors bankfüggetlen hitelügyintézés, biztosítás, energetikai tanúsítvány akár hozott ingatlanra is az ország piacvezető ingatlanközvetítő hálózatának támogatásával!Schaffer. Janos@dh. Hu
Referencia szám: hz046088 FIX 3% lakáshitelre megvehető

