Eladó új építésű ház - Budapest XVIII. kerület
- INGYENES HIRDETÉS FELADÁS
Ingatlan adatai
- Eladó vagy kiadó:Eladó
- Település:Budapest XVIII. kerület
- Kategória:Ház
- Alkategória:Családi ház
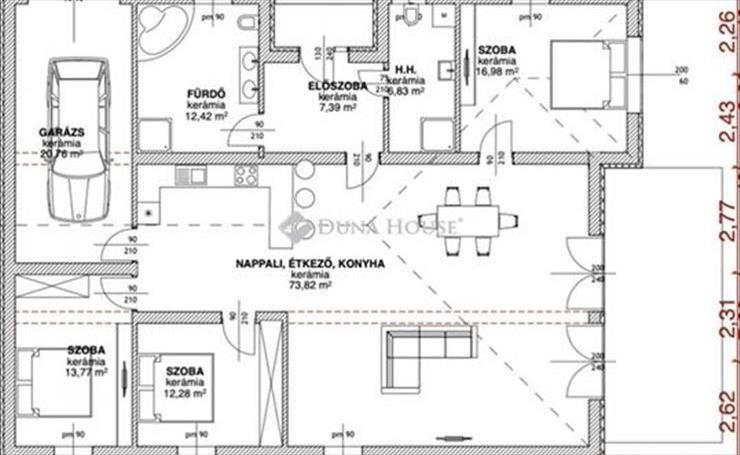
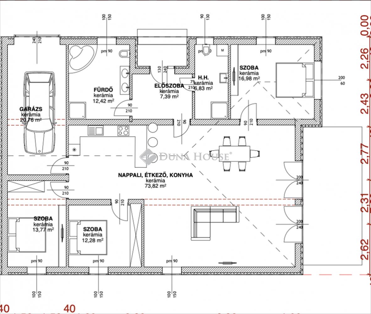
- Alapterület:164 m2
- Telekterület:500 m2
- Csere is:Nem
- Hirdető:Cég
- Élő videón megtekinthető:Nem
- Építés éve:2026
- Szobaszám:4
- Állapot:Új építésű
- Hány szintes az ingatlan:Földszintes
- Tetőtér:nincs megadva
- Komfortosság:nincs megadva
- Pince:nincs megadva
- Parkolási lehetőség:nincs megadva
- Fűtés:Hőszivattyús
- Bútorozottság:nincs megadva
- Fényviszony:Napfényes
- Tájolás:DNY
- Kilátás:nincs megadva
- Internet:nincs megadva
- Klíma:nincs megadva
- Akadálymentesített:nincs megadva
- Energiatanúsítvány:nincs megadva
- Villany:nincs megadva
- Víz:nincs megadva
- Gáz:nincs megadva
- Csatorna:nincs megadva
- Kapcsolatfelvétel

Szeleczkiné Trapp Ilona
+36-(20)-936-2570
Mondd meg a hirdetőnek, hogy a megveszLAK-on találtad a hirdetést.
Referencia szám: HZ081612
Hitel ajánlatok
Ingatlan hirdetés leírása
Eladó ház, Budapest 18. ker.
Kivételes ajánlat az ALMÁSKERTBEN! ! ! 18. kerület legkedveltebb részén AlmáskertbenAlmáskertben modern környezetben eladó új építésű ikerházfél. a kivitelező sok éves múlttal és rengeteg elégedett ügyféllel rendelkezik, referenciák akár itt a lakóparkban is megtekinthetőek. 164, 25 Négyzetméter hasznos lakótérrel rendelkezik, mely egy 500 négyzetméteres telken fekszik. Nappali+3hálószobával rendelkezik, a szobák minimum 12 négyzetméteresek. a földszinten elhelyezkedő 73négyzetméteres nappali+amerikai konyha tágas életteret biztosít, melyből egy csodás privát teraszon keresztül juthatunk ki a saját privát kertünkbe. Autóval garázsban és az udvaron is lehet parkolni. Műszaki adatok:-30-as Prototherm tégla falazat-15 cm-es homlokzati szigetelés-29 cm-es szigetelés az aljzat felől-35 cm-es szigetelés a födém felől-3 rétegű műanyag nyílászárók, fehér színnel-a tető szerkezete fafödém cserépfedéssel-elektromos garázskapu fehér színnel-elektromos kertikapu-Hőszivattyús fűtés, padlófűtéssel-1db hűtő-fűtő klíma-mosókonyha-riasztó és kamerarendszer-térkövezett autóbeállóBurkolatok/beltéri ajtók/szaniterek még választhatóak. a házak csak garázzsal érintkeznek! a lakópark teljesen új modern környezet, összetartó közösség jellemzi. Közlekedést tekintve autóval a Gyorsforgalmi út, Üllői út, Gyömrői út az M0-ás, M5-ös és a 4-es út mind-mind maximum 5 perc alatt megközelíthető. Tömegközlekedés 3 perc sétára, ahonnan a buszok Kőbánya Kispest vasútállomásig, illetve Határ úti metrómegálló, Ferihegyi vasútállomás is megközelíthető. 10 Perc busz távolságra Ferihegyi vasútállomás, melyről a Nyugati pályaudvarig közlekedhetünk. Séta távolságra: Gyógyszertár, Spar, Iskola, Óvoda, PostaFelkeltette érdeklődését keressen bizalommal a hét bármely napján, akár hétvégén IS! !
Referencia szám: hz081612 FIX 3% lakáshitelre megvehető
Tetszett ez az eladó Budapest XVIII. kerületi új építésű 4 szobás családi ház? Hívd fel a hirdetőt most, és tudj meg mindent erről az eladó családi házról! Ha gondolod nézelődj tovább az eladó ház Budapest XVIII. kerület oldal hirdetései között. Ennek az eladó háznak az ára 149900000 Ft és mivel az alapterülete 164 négyzetméter, ezért az átlagos négyzetméterára 914024 HUF/m2.
Az eladó házak menüpontban további hirdetések között is böngészhetsz. Ha van kedved, akkor böngészhetsz a Szeleczkiné Trapp Ilona összes hirdetése között, vagy akár a/az Duna House Gyál összes hirdetése között is.

