Eladó jó állapotú ház - Budapest XVIII. kerület
- INGYENES HIRDETÉS FELADÁS
Ingatlan adatai
- Eladó vagy kiadó:Eladó
- Település:Budapest XVIII. kerület
- Kategória:Ház
- Alkategória:Családi ház
- Alapterület:265 m2
- Telekterület:664 m2
- Csere is:Nem
- Hirdető:Cég
- Élő videón megtekinthető:Nem
- Építés éve:2003
- Szobaszám:5
- Állapot:Jó állapotú
- Hány szintes az ingatlan:2 szintes
- Tetőtér:nincs megadva
- Komfortosság:nincs megadva
- Pince:nincs megadva
- Parkolási lehetőség:Teremgarázsban
- Fűtés:Gáz (cirko)
- Bútorozottság:nincs megadva
- Fényviszony:Napfényes
- Tájolás:nincs megadva
- Kilátás:nincs megadva
- Internet:nincs megadva
- Klíma:nincs megadva
- Akadálymentesített:nincs megadva
- Energiatanúsítvány:nincs megadva
- Villany:nincs megadva
- Víz:nincs megadva
- Gáz:nincs megadva
- Csatorna:nincs megadva
- Kapcsolatfelvétel

Takács Zsuzsanna
+36-(30)-495-3819
Mondd meg a hirdetőnek, hogy a megveszLAK-on találtad a hirdetést.
Referencia szám: M325821
Hitel ajánlatok
Ingatlan hirdetés leírása
Eladó Ház, Budapest 18. ker.
Budapest XVIII. kerületének családi házas övezetében kiváló adottságú, kétgenerációssá alakítható családi ház eladó!
Budapest XVIII. kerület csendes, kertvárosi részén kínálunk megvételre egy tehermentes, rendezett tulajdonviszonyokkal rendelkező, körbejárható családi házat, amely ideális választás lehet nagycsaládosoknak vagy akár kétgenerációs otthont keresőknek is, vagy akár irodának, rendelőnek is.
Az ingatlan egy 664m2-es telken helyezkedik el, használatbavételi engedélyét 2003-ban kapta.
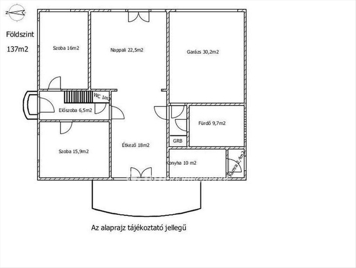
A ház kétszintes, összesen közel 265 m2 lakótérrel:
Földszint (137 m2):
3 külön nyíló szoba + nappali, étkező, tágas fürdőszoba, kamra, + WC.
Emelet (128 m2):
jelenleg egy óriási tér, mely szabadon alakítható. Válaszfalak még nem kerültek kialakításra. Egy 30 m2-es kész szoba található (a garázs felett), fürdő, konyhasarok ( konyhabútor nincs).
Az emeletre vezető lépcső lezárható.
Főbb műszaki jellemzők:
Beton alap, 44 cm vastag, masszív téglafalak. Szigetelés nincs. Hódfarkú tetőcserép.
Fa nyílászárók, elektromos alumínium redőnyökkel, óriási ablakok minden irányba.
Központi gázkazán biztosítja a fűtést és a melegvizet.
A nappaliban lévő kémény kandallóbekötésére alkalmas.
3×32 Amperes elektromos hálózat.
Riasztórendszer kiépítve.
Dupla garázs (2 autó számára). a garázsban egy szerelőakna is található, melynek oldalnyúlványai tárolásra is alkalmasak.
Az ingatlan erkélyekkel és teraszokkal bővített, világos, jól alakítható terekkel rendelkezik.
Fontos információ, hogy az emelet jelenleg nincs teljesen befejezve (radiátorok nincsenek felszerelve, nem volt lakott), illetve a ház külső felújítást, valamint részben belső korszerűsítést igényel, ugyanakkor kiváló alapot nyújt egy egyedi igényekre szabott otthon kialakításához.
Ajánljuk mindazoknak, akik:
nagy alapterületű ingatlant keresnek,
kétgenerációs házban gondolkodnak,
vagy értéknövelő felújításban látnak lehetőséget,
székhelyet keresnek cégnek, irodának, rendelőnek.
M325821
Az OTP Ingatlanpont, mint egyetlen közvetlen banki hátterű ingatlanközvetítő társaság teljes körű ügyintézéssel áll az eladók és a vevők rendelkezésére! a kínálatunkból választott ingatlan finanszírozásához minősített fogyasztóbarát, piaci és kedvezményes hitel- és lízingkonstrukciókat kínálunk (lakásvásárlási hitel, CSOK plusz, szabad felhasználású hitel, babaváró hitel, céges hitelek, pályázatok, amennyiben az ügyfél és az ingatlan megfelel a feltételeknek). Az adásvételi szerződés megkötéséhez igény szerint megbízható ügyvédi közreműködést biztosítunk, és segítséget nyújtunk az adásvételhez kapcsolódó egyéb ügyek intézéséhez.
Ha az új ingatlana megvásárlásához a jelenlegi ingatlanát el kell adnia, abban is szívesen segítünk.
Referencia szám: m325821-ml Hitel.hu - Hasonlítsa össze a bankok lakáshitel ajánlatait
Tetszett ez az eladó Budapest XVIII. kerületi jó állapotú 5 szobás családi ház? Hívd fel a hirdetőt most, és tudj meg mindent erről az eladó családi házról! Ha gondolod nézelődj tovább az eladó ház Budapest XVIII. kerület oldal hirdetései között. Ennek az eladó háznak az ára 170000000 Ft és mivel az alapterülete 265 négyzetméter, ezért az átlagos négyzetméterára 641509 HUF/m2.
Az eladó házak menüpontban további hirdetések között is böngészhetsz. Ha van kedved, akkor böngészhetsz a Takács Zsuzsanna összes hirdetése között, vagy akár a/az OTPip Budapest XIII. kerület Lehel utca 50 - OTP Ingatlanpont Iroda összes hirdetése között is.

