Eladó jó állapotú ház - Budapest XVIII. kerület
- INGYENES HIRDETÉS FELADÁS
Ingatlan adatai
- Eladó vagy kiadó:Eladó
- Település:Budapest XVIII. kerület
- Kategória:Ház
- Alkategória:Családi ház
- Alapterület:88 m2
- Telekterület:710 m2
- Csere is:Nem
- Hirdető:Cég
- Élő videón megtekinthető:Nem
- Építés éve:1945
- Szobaszám:4
- Állapot:Jó állapotú
- Hány szintes az ingatlan:Földszintes
- Tetőtér:nincs megadva
- Komfortosság:nincs megadva
- Pince:nincs megadva
- Parkolási lehetőség:nincs megadva
- Fűtés:Elektromos
- Bútorozottság:nincs megadva
- Fényviszony:Napfényes
- Tájolás:DK
- Kilátás:nincs megadva
- Internet:nincs megadva
- Klíma:nincs megadva
- Akadálymentesített:nincs megadva
- Energiatanúsítvány:nincs megadva
- Villany:Van
- Víz:Van
- Gáz:Van
- Csatorna:Van
- Kapcsolatfelvétel

Alexa Zsolt
+36-(70)-415-0298
Mondd meg a hirdetőnek, hogy a megveszLAK-on találtad a hirdetést.
Referencia szám: HZ067330
Hitel ajánlatok
Ingatlan hirdetés leírása
Eladó ház, Budapest 18. ker.
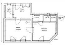
Eladó a 18. kerület közkedvelt részén, nyugodt, rendezett környezetben, egy 54 nm -es, és egy 33nm -es, két generációnak kiválóan alkalmas családi házak, 710 nm -es telken!
Mindkét ház két szobás, és összkomfortos.
A nagyobbik ingatlan felújított, a tetőre 5, 8 kw 20 panel napelem került felszerelésre, ami mindkét otthont ellátja energiával.
A kisebbik ingatlan felújítandó, alatta pince található.
A kert kiválóan alkalmas baráti összejövetelekre, ásott kút, szaletli, sütögető, és egy kis játszótér szolgálja kényelmünket.
Ha felkeltette érdeklődését ez a kiváló paraméterekkel rendelkező ingatlan, további kérdéseivel, megtekintésért kérem hívjon!
Alexa Zsolt
alexa. Zsolt@dh. Hu
+36704150298
Referencia szám: hz067330 FIX 3% lakáshitelre megvehető
Tetszett ez az eladó Budapest XVIII. kerületi jó állapotú 4 szobás családi ház? Hívd fel a hirdetőt most, és tudj meg mindent erről az eladó családi házról! Ha gondolod nézelődj tovább az eladó ház Budapest XVIII. kerület oldal hirdetései között. Ennek az eladó háznak az ára 79990000 Ft és mivel az alapterülete 88 négyzetméter, ezért az átlagos négyzetméterára 908977 HUF/m2.
Az eladó házak menüpontban további hirdetések között is böngészhetsz. Ha van kedved, akkor böngészhetsz a Alexa Zsolt összes hirdetése között, vagy akár a/az Duna House Zaragoza összes hirdetése között is.

