Eladó átlagos állapotú ház - Budapest XX. kerület
- INGYENES HIRDETÉS FELADÁS
Ingatlan adatai
- Eladó vagy kiadó:Eladó
- Település:Budapest XX. kerület
- Kategória:Ház
- Alkategória:Családi ház
- Alapterület:110 m2
- Telekterület:660 m2
- Csere is:Nem
- Hirdető:Cég
- Élő videón megtekinthető:Nem
- Építés éve:1945
- Szobaszám:3
- Állapot:Átlagos állapotú
- Hány szintes az ingatlan:Földszintes
- Tetőtér:nincs megadva
- Komfortosság:nincs megadva
- Pince:nincs megadva
- Parkolási lehetőség:Teremgarázsban
- Fűtés:Gáz (cirko)
- Bútorozottság:nincs megadva
- Fényviszony:Jó
- Tájolás:nincs megadva
- Kilátás:nincs megadva
- Internet:nincs megadva
- Klíma:Van
- Akadálymentesített:nincs megadva
- Energiatanúsítvány:nincs megadva
- Villany:Telken belül
- Víz:Telken belül
- Gáz:Telken belül
- Csatorna:nincs megadva
- Kapcsolatfelvétel

Takács Zsuzsanna
+36-(30)-495-3819
Mondd meg a hirdetőnek, hogy a megveszLAK-on találtad a hirdetést.
Referencia szám: M314986
Hitel ajánlatok
Ingatlan hirdetés leírása
Eladó Ház, Budapest 20. ker.
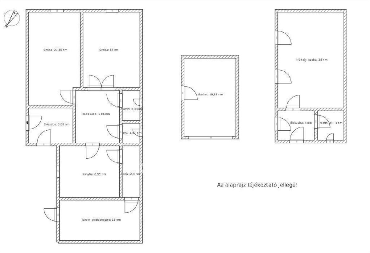
Eladó Budapest, 20. kerület, Pacsirtatelepen, családi házas övezetben 660 nm -es összközműves telken álló, összesen 110 nm lakóterület, ami áll: 75 nm -es, 2 szobás, összkomfortos ház, plusz egy 35 nm -es kis ház, -mely jelenleg műhely-, és 20 nm -es garázs. Akár két generáció együttélésére is alkalmas. a ház betonalapra épült, téglából, fafödémmel. Fűtés - meleg víz gázcirkóval, de klíma is rendelkezésre áll.
2006-Ban felújításon esett át, mely tartalmazta a fűtés korszerűsítését, nyílászárók (műanyag, redőnnyel, szúnyoghálóval) cseréje, szigetelést, tető, és a villanyhálózat felújítását.
Fúrt kút van, locsolásra alkalmas. Pár éve elhanyagolt, de életre kelthető kert: 3 diófa, fügefa, 2 mandula, alma, szilva.
Közlekedés kiváló: 36, 966-os buszmegálló közelben, nem messze Erzsébet központjától.
M314986
Az OTP Ingatlanpont, mint egyetlen közvetlen banki hátterű ingatlanközvetítő társaság teljes körű ügyintézéssel áll az eladók és a vevők rendelkezésére! a kínálatunkból választott ingatlan finanszírozásához minősített fogyasztóbarát, piaci és kedvezményes hitel- és lízingkonstrukciókat kínálunk (lakásvásárlási hitel, CSOK plusz, szabad felhasználású hitel, babaváró hitel, céges hitelek, pályázatok, amennyiben az ügyfél és az ingatlan megfelel a feltételeknek). Az adásvételi szerződés megkötéséhez igény szerint megbízható ügyvédi közreműködést biztosítunk, és segítséget nyújtunk az adásvételhez kapcsolódó egyéb ügyek intézéséhez.
Ha az új ingatlana megvásárlásához a jelenlegi ingatlanát el kell adnia, abban is szívesen segítünk.
Referencia szám: m314986-ml FIX 3% lakáshitelre megvehető
Tetszett ez az eladó Budapest XX. kerületi átlagos állapotú 3 szobás családi ház? Hívd fel a hirdetőt most, és tudj meg mindent erről az eladó családi házról! Ha gondolod nézelődj tovább az eladó ház Budapest XX. kerület oldal hirdetései között. Ennek az eladó háznak az ára 82000000 Ft és mivel az alapterülete 110 négyzetméter, ezért az átlagos négyzetméterára 745455 HUF/m2.
Az eladó házak menüpontban további hirdetések között is böngészhetsz. Ha van kedved, akkor böngészhetsz a Takács Zsuzsanna összes hirdetése között, vagy akár a/az OTPip Budapest XIII. kerület Lehel utca 50 - OTP Ingatlanpont Iroda összes hirdetése között is.

