Eladó felújított ház - Budapest XX. kerület
- INGYENES HIRDETÉS FELADÁS
Ingatlan adatai
- Eladó vagy kiadó:Eladó
- Település:Budapest XX. kerület
- Kategória:Ház
- Alkategória:Családi ház
- Alapterület:62 m2
- Telekterület:160 m2
- Csere is:Nem
- Hirdető:Cég
- Élő videón megtekinthető:Nem
- Építés éve:1970
- Szobaszám:2
- Állapot:Felújított
- Hány szintes az ingatlan:Földszintes
- Tetőtér:nincs megadva
- Komfortosság:nincs megadva
- Pince:nincs megadva
- Parkolási lehetőség:Utcán
- Fűtés:Gáz (cirko)
- Bútorozottság:nincs megadva
- Fényviszony:nincs megadva
- Tájolás:nincs megadva
- Kilátás:nincs megadva
- Internet:nincs megadva
- Klíma:nincs megadva
- Akadálymentesített:nincs megadva
- Energiatanúsítvány:nincs megadva
- Villany:Van
- Víz:Van
- Gáz:Van
- Csatorna:Van
- Kapcsolatfelvétel

Justus Lilla
+36-(30)-491-8241
Mondd meg a hirdetőnek, hogy a megveszLAK-on találtad a hirdetést.
Hitel ajánlatok
Ingatlan hirdetés leírása
Eladó felújított családi ház Pesterzsébet – Pacsirtatelepen E...
Eladó felújított családi ház Pesterzsébet – Pacsirtatelepen
Eladásra kínálunk Pesterzsébet kedvelt, csendes Pacsirtatelep részén egy felújított családi házat, amely ideális választás lehet fiatal párok első otthonának vagy kisebb család számára.
Az ingatlan jelenleg osztatlan közös tulajdon, az ügyvédi használati megosztás kész van, az önálló albetétesítés pedig folyamatban, ami a későbbi tulajdonjogi rendezést biztosítja.
A felújítás során elvégzett munkák
A ház az elmúlt időszakban jelentős korszerűsítésen esett át:
* 10 cm-es külső hőszigetelés és nemesvakolat
* Új, háromrétegű műanyag nyílászárók
* Teljes villanyvezeték csere
* Új szennyvízcsövek
* Új tető cseréplemez fedéssel
* Új, modern linóleum burkolatok
Fűtés és közművek
Az otthon kellemes hőmérsékletéről gázcirkó fűtés, valamint egy felújított cserépkályha gondoskodik.
A melegvizet villanybojler biztosítja.
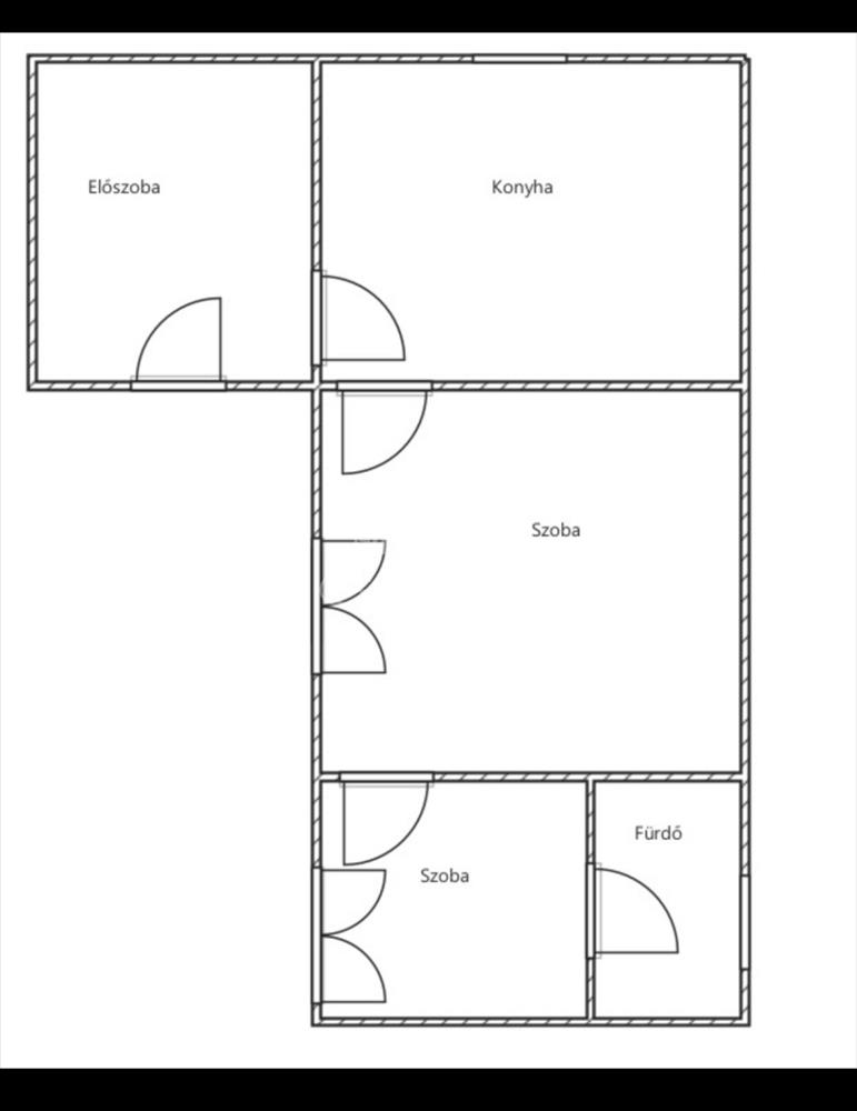
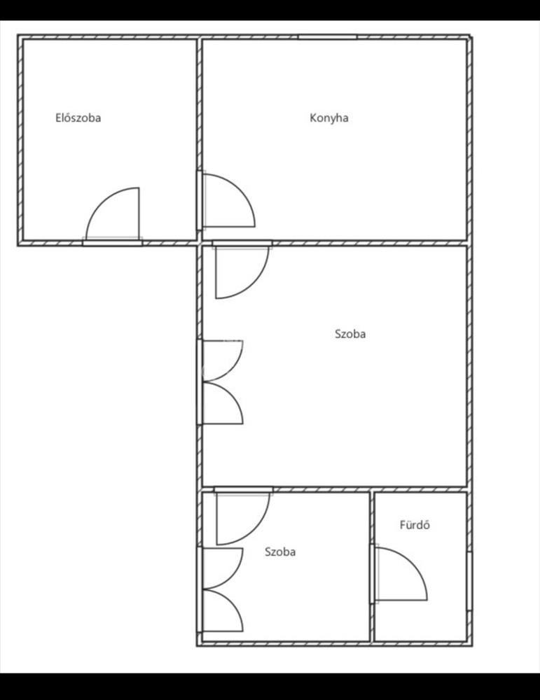
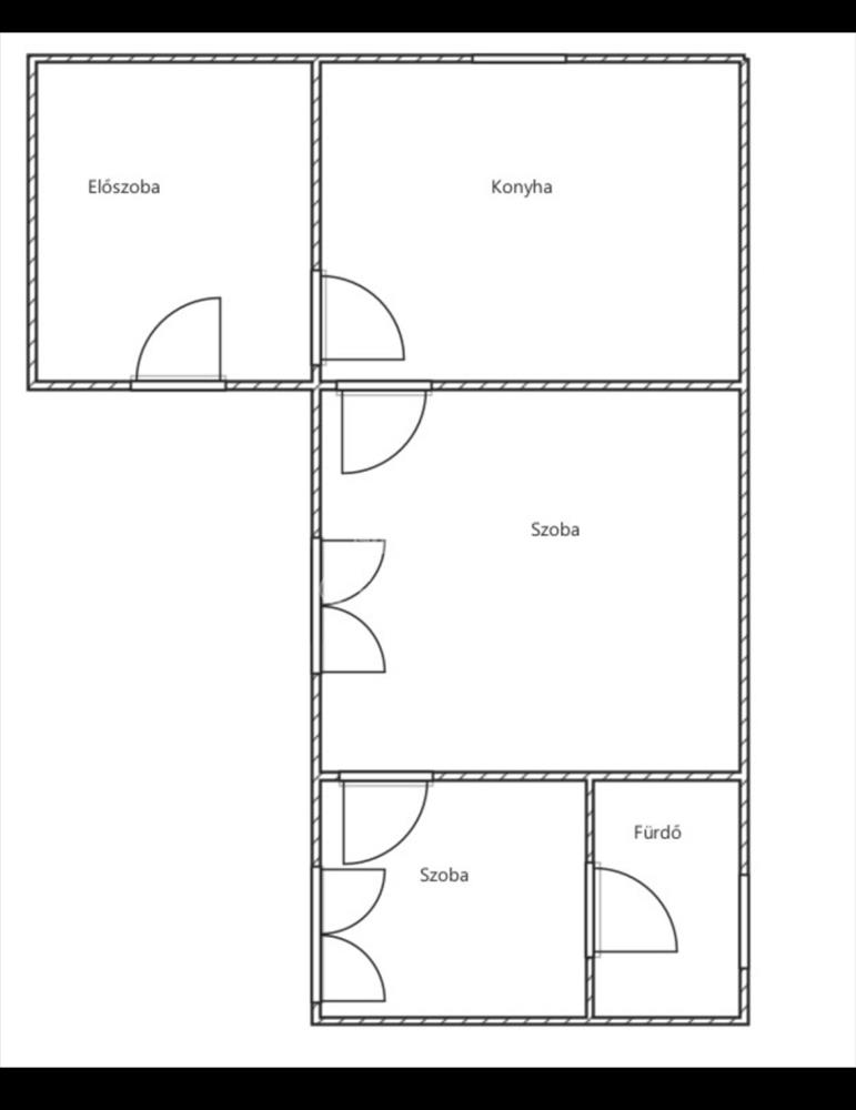
Helyiségek elrendezése
A ház praktikus elosztású:
* előszoba nagy beépített szekrénnyel
* konyha
* 3 m²-es spájz
* tágas első szoba
* abból nyíló második szoba
* fürdőkádas fürdőszoba
További lehetőségek
A fürdőszoba jelenleg felújításra vár, azonban a tulajdonos a vételár részeként a vevő igényei szerint felújítja.
Az új konyhabútor beépítése szintén megegyezés tárgyát képezheti.
Környék
A környék családi házas, a tömegközlekedés kiváló, így a város többi része is könnyen elérhető.
Ez az ingatlan kiváló lehetőség lehet azok számára, akik egy felújított, azonnal költözhető otthont keresnek, ugyanakkor még saját ízlésük szerint szeretnék alakítani egyes részleteit.
Az alaprajz tájékoztató jellegű!
Amennyiben hitelfelvétel is érdekelné, bankfüggetlen hitelközpontunk térítés mentes nyújt segítséget ügyfeleink részére!
További információért vagy megtekintésért keressen bizalommal! FIX 3% lakáshitelre megvehető
Tetszett ez az eladó Budapest XX. kerületi felújított 2 szobás családi ház? Hívd fel a hirdetőt most, és tudj meg mindent erről az eladó családi házról! Ha gondolod nézelődj tovább az eladó ház Budapest XX. kerület oldal hirdetései között. Ennek az eladó háznak az ára 56900000 Ft és mivel az alapterülete 62 négyzetméter, ezért az átlagos négyzetméterára 917742 HUF/m2.
Az eladó házak menüpontban további hirdetések között is böngészhetsz. Ha van kedved, akkor böngészhetsz a Justus Lilla összes hirdetése között, vagy akár a/az GDN Ingatlanhálózat összes hirdetése között is.

