+ 29 fotó

Eladó ház Budapest XX. kerület
| |  |
| Kedvencbe | Megosztás | Árfigyelő |
- Eladó vagy kiadó:Eladó
- Település:Budapest XX. kerület
- Kategória:Ház
- Alkategória:Családi ház
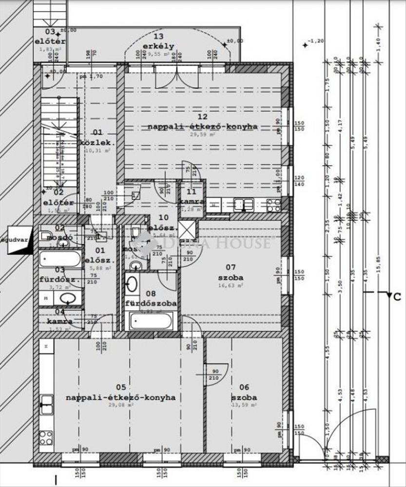
- Alapterület:295 m2
- Telekterület:535 m2
- Csere is:Nem
- Hirdető:Cég
- Élő videón megtekinthető:Nem
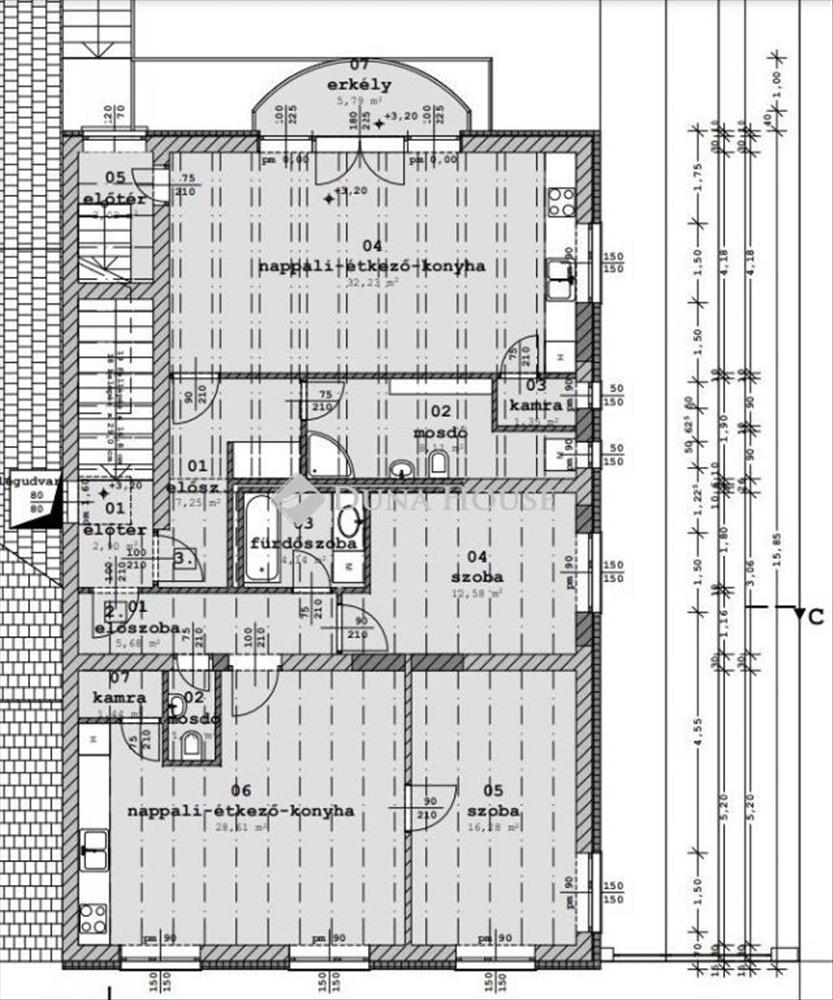
- Építés éve:2008
- Szobaszám:11
- Állapot:nincs megadva
- Hány szintes az ingatlan:Földszintes
- Tetőtér:nincs megadva
- Komfortosság:nincs megadva
- Parkolási lehetőség:nincs megadva
- Fűtés:Hőszivattyús
- Bútorozottság:nincs megadva
- Fényviszony:Napfényes
- Tájolás:DK
- Kilátás:nincs megadva
- Internet:nincs megadva
- Akadálymentesített:nincs megadva
- Energiatanúsítvány:E
- Villany:Van
- Víz:Van
- Gáz:Telken belül
- Csatorna:Telken belül

Nagy Annamária
Mondd meg a hirdetőnek, hogy a megveszLAK-on találtad a hirdetést.
Referencia szám: HZ047979

Eladó ház, Budapest 20. ker.
Szent Erzsébet térnél a kerület központjában, 535 nm-es telken álló, három szintesnégy lakásos társasház tervekkel, dokumentációval, kedvező haszonnal eladó! a bal oldali telekhatáron álló épület részletesen:-1. (Nem) lakószint: 3x11 nm tároló + 16 nm gépészet- földszint: 115 nm fűtőtt alapterület + 10nm terasz- emelet: 121 nm fűtött alapterület + 6 nm erkély- tetőtér: 26 nm nettó alapterületJelenlegi tervek alapján 262 nm adható el, autóbeállókat a telken belül kellkialakítani. a tulajdoni lap tehermentes, a befejezés azonnal megkezdhető, az építés nem engedélyköteles. Hőszivattyűs fűtés lett tervezve, de ettőligény esetén el lehet térni. További kérdéseivel keressen bizalommal, vagy küldjön üzenetet!
FIX 3% lakáshitelre megvehető Hasonló ingatlan hirdetések