Eladó átlagos állapotú ház Budapest XXI. kerület
| Kedvencbe | Megosztás | Árfigyelő |
| Kedvezményes lakáshitel ajánlatok | ||
| 179 500 000 HUF | ||
Ingatlan adatai
- Eladó vagy kiadó:Eladó
- Település:Budapest XXI. kerület
- Kategória:Ház
- Alkategória:Családi ház
- Alapterület:160 m2
- Telekterület:539 m2
- Csere is:Nem
- Hirdető:Cég
- Élő videón megtekinthető:Nem
- Építés éve:1968
- Szobaszám:5
- Állapot:Átlagos állapotú
- Hány szintes az ingatlan:3 szintes
- Tetőtér:nincs megadva
- Komfortosság:nincs megadva
- Pince:Van
- Parkolási lehetőség:Garázsban
- Fűtés:Gáz (cirko)
- Bútorozottság:nincs megadva
- Fényviszony:nincs megadva
- Tájolás:nincs megadva
- Kilátás:nincs megadva
- Internet:nincs megadva
- Akadálymentesített:nincs megadva
- Energiatanúsítvány:nincs megadva
- Villany:Van
- Víz:Van
- Gáz:Van
- Csatorna:Van
- Üzenetküldés
- Hívás


Hitel ajánlat
Ingatlan hirdetés leírása
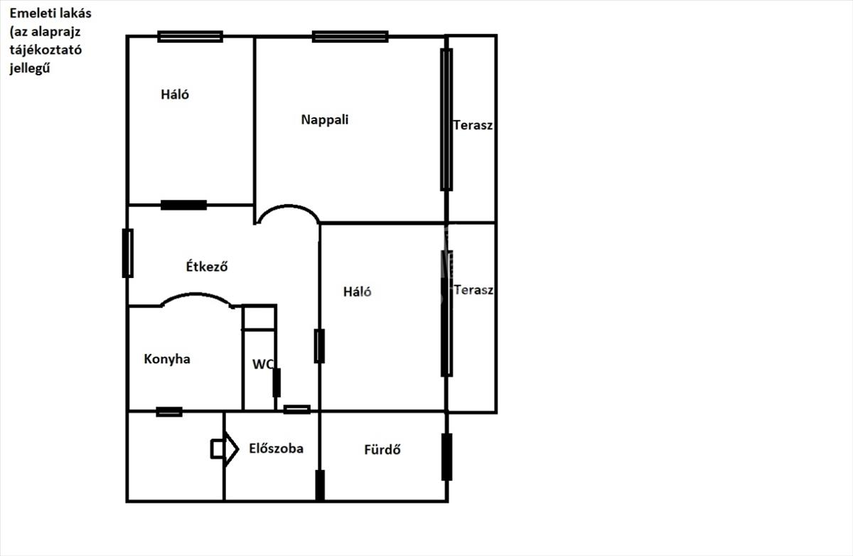
*Különleges lehetőség! 1970-80-as években épült, 3 szintes csa...
*Különleges lehetőség! 1970-80-As években épült, 3 szintes családi ház eladó! *Egyedi ajánlat: 2 x 95 nm-es, két külön bejáratú lakás egy ingatlanban!
- *Alsó szint:*
- Fedett teraszról érkezünk az előszobába, 2 szoba, étkező, konyha, spájz, kádas fürdőszoba, külön wc, és tartozik hozzá egy külön bejáratú szoba/tároló
- *Felső szint:*
- 3 szoba, étkező, konyha, zuhanyzós fürdőszoba, külön wc, előszoba
- Műszaki jellemzők:
- Téglából épült, műanyag nyílászárók redőnnyel, szúnyoghálóval
- Alsó szinten és fent is radiátoros fűtés (kazán és vegyestüzelésű kazán) fenti szinten egy klíma
- Melegvíz: villanybojler
Környezet:
-Az ingatlan közel a Dunaparthoz egy szépen gondozott saroktelken épült két ütemben. a kert locsolása fúrt kútról megoldható.
- 30 Nm-es garázs az autónak
Érdekel? Szeretnél többet megtudni vagy megtekinteni az ingatlant?
Keress bizalommal! Hitel.hu - Hasonlítsa össze a bankok lakáshitel ajánlatait

