Eladó átlagos állapotú ház - Buják
- INGYENES HIRDETÉS FELADÁS
Ingatlan adatai
- Eladó vagy kiadó:Eladó
- Település:Buják
- Kategória:Ház
- Alkategória:Családi ház
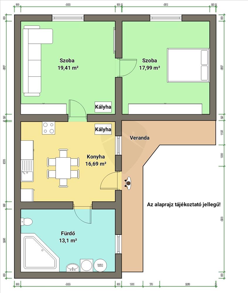
- Alapterület:66 m2
- Telekterület:1088 m2
- Csere is:Nem
- Hirdető:Cég
- Élő videón megtekinthető:Nem
- Építés éve:1960
- Szobaszám:2
- Állapot:Átlagos állapotú
- Hány szintes az ingatlan:nincs megadva
- Tetőtér:nincs megadva
- Komfortosság:nincs megadva
- Pince:nincs megadva
- Parkolási lehetőség:nincs megadva
- Fűtés:nincs megadva
- Bútorozottság:nincs megadva
- Fényviszony:nincs megadva
- Tájolás:DK
- Kilátás:Utcai
- Internet:nincs megadva
- Klíma:nincs megadva
- Akadálymentesített:nincs megadva
- Energiatanúsítvány:nincs megadva
- Villany:Van
- Víz:Van
- Gáz:Utcában
- Csatorna:Van
- Kapcsolatfelvétel

Horváth Tibor
+36-(70)-467-6871
Mondd meg a hirdetőnek, hogy a megveszLAK-on találtad a hirdetést.
Hitel ajánlatok
Ingatlan hirdetés leírása
Buják CSENDES, barátságos utcájában kínálunk eladásra egy vegy...
Buják csendes, barátságos utcájában kínálunk eladásra egy vegyes falazatból épült családi házat, amely ideális lehet középkorúak számára, akik egy nyugodt, családias környezetben szeretnének élni.
Ez a nettó 66 nm -es ingatlan tökéletes választás lehet, ha a békés életvitel és a természet közelsége a prioritásod. Az ingatlan elhelyezkedése páratlan, hiszen a telek mérete 1088 nm , ami lehetőséget biztosít a szabadban való pihenésre és a kertészkedésre. a két szobás elrendezés kényelmes otthont biztosít, ahol 2 db kályha gondoskodik a fűtésről. a fürdőszoba praktikus elrendezésű, tágas, teljesen felújított, így a mindennapi használat során maximális kényelmet nyújt. a villanyvezeték rendszer és a nyílászárók szintén korszerűsítésre kerültek. Új konyhabútor került beépítésre. a ház költözhető állapotú, külsőleg igénnyel majd felújítást.
A természet közelsége lehetővé teszi a kirándulásokat és a szabadban eltöltött időt. a tömegközlekedés kedvező, autóval pedig gyorsan megközelíthető a környező települések, így a napi ingázás sem jelent problémát.
Az ingatlan tehermentes, így azonnal birtokba vehető, igény esetén kedvező lakáshitel ügyintézésben díjmentes segítséget nyújtok! Ha egy kényelmes otthont keresel 2-3 fő számára és fontos az alacsony fenntartási költség, akkor ezt a lehetőséget ne hagyd ki! FIX 3% lakáshitelre megvehető
Tetszett ez az eladó Bujáki átlagos állapotú 2 szobás családi ház? Hívd fel a hirdetőt most, és tudj meg mindent erről az eladó családi házról! Ha gondolod nézelődj tovább az eladó ház Buják oldal hirdetései között. Ennek az eladó háznak az ára 16500000 Ft és mivel az alapterülete 66 négyzetméter, ezért az átlagos négyzetméterára 250000 HUF/m2.
Az eladó házak menüpontban további hirdetések között is böngészhetsz. Ha van kedved, akkor böngészhetsz a Horváth Tibor összes hirdetése között, vagy akár a/az ingatlanmentor összes hirdetése között is.

