Eladó ház - Buják
- INGYENES HIRDETÉS FELADÁS
Ingatlan adatai
- Eladó vagy kiadó:Eladó
- Település:Buják
- Kategória:Ház
- Alkategória:Családi ház
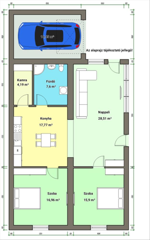
- Alapterület:94 m2
- Telekterület:896 m2
- Csere is:Nem
- Hirdető:Cég
- Élő videón megtekinthető:Nem
- Építés éve:1950
- Szobaszám:3
- Állapot:nincs megadva
- Hány szintes az ingatlan:nincs megadva
- Tetőtér:nincs megadva
- Komfortosság:nincs megadva
- Pince:nincs megadva
- Parkolási lehetőség:nincs megadva
- Fűtés:Gáz (cirko)
- Bútorozottság:Bútorozott
- Fényviszony:nincs megadva
- Tájolás:DK
- Kilátás:Utcai
- Internet:nincs megadva
- Klíma:nincs megadva
- Akadálymentesített:nincs megadva
- Energiatanúsítvány:nincs megadva
- Villany:Van
- Víz:nincs megadva
- Gáz:Van
- Csatorna:nincs megadva
- Kapcsolatfelvétel

Horváth Tibor
+36-(70)-467-6871
Mondd meg a hirdetőnek, hogy a megveszLAK-on találtad a hirdetést.
Hitel ajánlatok
Ingatlan hirdetés leírása
Keresed az ideális otthont a családod számára? Akkor ne hagyd ...
Keresed az ideális otthont a családod számára? Akkor ne hagyd ki ezt a remek lehetőséget!
Eladó egy modern, frissen felújított lakóingatlan Nógrád megyében, Buják település kedvelt részén. Az ingatlan központi elhelyezkedésének köszönhetően könnyen megközelíthető autóval és tömegközlekedéssel is. Az ingatlan állapota kiváló, tehermentes, tágas terek jellemzik, praktikus elosztás mellett. Az ingatlan alapterülete 94 nm , vegyes falazatból épült (vályog+tégla), a telek mérete pedig 896 nm . a parkolásról egy garázs gondoskodik, illetve a kert végén egy boros pince is található.
A felújítás alkalmával a következők lettek cserélve:
- Új tetőszerkezet + cserepes lemezfedés
- Külső 10 cm-es hőszigetelés
- Új műanyag bejárati ajtó + nyílászárok, redőnyökkel
- Új víz-, villany-, gáz-, és csatornarendszer került kialakításra
- Új kondenzációs gázkazán lapradiátorokkal
- Gipszkarton állmennyezet + födém szigetelés
- Új fürdőszoba, konyha, nappali, szobák, minőségi burkolatokkal kialakítva
- Új fa mintás lemezzel borított utcafronti kerítés
A környék csendes és nyugodt, ideális családoknak és nyugdíjasoknak is.
Amennyiben olyan házat kerestek, ahol csak a költözéssel kell foglalkozni, akkor Ne habozz, és légy Te az első, aki megnézi ezt a fantasztikus otthont! További információért keress bizalommal! FIX 3% lakáshitelre megvehető
Tetszett ez az eladó Bujáki 3 szobás családi ház? Hívd fel a hirdetőt most, és tudj meg mindent erről az eladó családi házról! Ha gondolod nézelődj tovább az eladó ház Buják oldal hirdetései között. Ennek az eladó háznak az ára 29990000 Ft és mivel az alapterülete 94 négyzetméter, ezért az átlagos négyzetméterára 319043 HUF/m2.
Az eladó házak menüpontban további hirdetések között is böngészhetsz. Ha van kedved, akkor böngészhetsz a Horváth Tibor összes hirdetése között.

