Eladó újszerű állapotú ház - Cegléd
- INGYENES HIRDETÉS FELADÁS
Ingatlan adatai
- Eladó vagy kiadó:Eladó
- Település:Cegléd
- Kategória:Ház
- Alkategória:Családi ház
- Alapterület:240 m2
- Telekterület:372 m2
- Csere is:Nem
- Hirdető:Cég
- Élő videón megtekinthető:Nem
- Építés éve:1975
- Szobaszám:5 + 1 fél
- Állapot:Újszerű, kitűnő
- Hány szintes az ingatlan:3 szintes
- Tetőtér:nincs megadva
- Komfortosság:nincs megadva
- Pince:nincs megadva
- Parkolási lehetőség:Teremgarázsban
- Fűtés:Gáz (cirko)
- Bútorozottság:nincs megadva
- Fényviszony:Jó
- Tájolás:nincs megadva
- Kilátás:nincs megadva
- Internet:nincs megadva
- Klíma:Van
- Akadálymentesített:nincs megadva
- Energiatanúsítvány:nincs megadva
- Villany:Telken belül
- Víz:Telken belül
- Gáz:Telken belül
- Csatorna:nincs megadva
- Kapcsolatfelvétel

Orovecz Józsefné
+36-(30)-535-2397
Mondd meg a hirdetőnek, hogy a megveszLAK-on találtad a hirdetést.
Referencia szám: M296547
Hitel ajánlatok
Ingatlan hirdetés leírása
Eladó Ház, Cegléd, Eladó újszerű állapotú ház - Cegléd
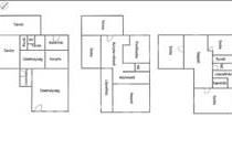
Eladó Cegléden, Pest vármegyében, egy tégla építésű, 372 négyzetméteres telken fekvő 240 négyzetméter hasznos alapterületű 3 szintes 5+1 szobás családi ház. Az ingatlan különleges elrendezése és remek elhelyezkedése számos lehetőséget kínál. a földszinten található üzlethelyiség, amely külön bejárattal rendelkezik, lakhatásra is alkalmas lehet kis átalakítás után. Itt egy konyha, fürdőszoba, wc és egy tágas üzlettér található, amely nappaliként funkcionálhat, de akár egy plusz szoba is kialakítható belőle. Ez a szint ideális választás lehet vállalkozás működtetésére, de akár több generáció számára is kényelmes otthont biztosíthat.
Az első emeleten egy hálószoba, konyha, étkező, nappali, fürdőszoba és wc található. a konyhából juthatunk ki a teraszra, itt kihúzható napellenző adja az árnyékot, innen juthatunk le az udvarra: itt egy szaletli, kemence, sütögető és tároló helyiség található, amely kiváló lehetőséget ad a szabadban való pihenésre és szórakozásra. a tetőtérben két szoba, egy félszoba, nappali, zuhanyzó, wc és gardrób található. Az ingatlan melegét gáz-cirkó kazán és légkondicionáló biztosítja, így minden évszakban komfortos környezetet kínál. Az ingatlan 14 évvel ezelőtt teljes körű felújításon esett át, így modern és kényelmes otthont biztosít. a nyílászárókat műanyagra cserélték, az ingatlan hőszigetelése is megtörtént. Ez az ingatlan ideális választás lehet családoknak, akik szeretnék összekapcsolni a vállalkozást és a lakóteret illetve több generáció számára is tökéletes otthont nyújthat. Legyen Ön is megbízónk, adja el rajtunk keresztül ingatlanát! Az OTP Ingatlanpontnál évről-évre több ügyfelünknek segítünk abban, hogy maximális áron, problémamentesen tudják eladni ingatlanukat. Képzett és tapasztalt tanácsadóink kiválóan ismerik az ingatlanpiacot, szakmai tudásuk és piacismeretük révén végig segítséget tudnak nyújtani Önnek a sikeres értékesítés folyamatában. Irodánk Cegléd, Népkőr utca 6. Szám alatt várja a személyes érdeklődőket hétköznapokon 9-17 óra között.
Referencia szám: m296547 FIX 3% lakáshitelre megvehető

