Eladó átlagos állapotú ház - Cegléd
- INGYENES HIRDETÉS FELADÁS
Ingatlan adatai
- Eladó vagy kiadó:Eladó
- Település:Cegléd
- Kategória:Ház
- Alkategória:Családi ház
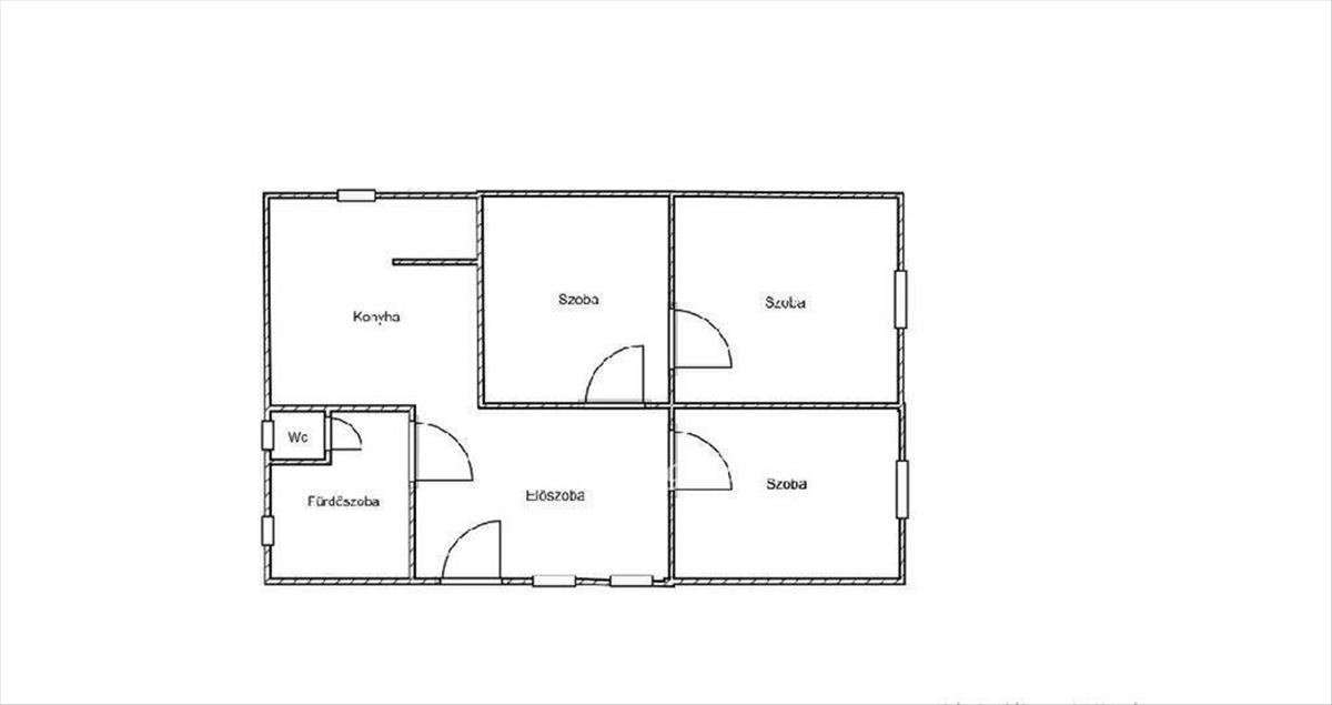
- Alapterület:74 m2
- Telekterület:406 m2
- Csere is:Nem
- Hirdető:Cég
- Élő videón megtekinthető:Nem
- Építés éve:1970
- Szobaszám:2 + 1 fél
- Állapot:Átlagos állapotú
- Hány szintes az ingatlan:Földszintes
- Tetőtér:nincs megadva
- Komfortosság:nincs megadva
- Pince:nincs megadva
- Parkolási lehetőség:Udvaron
- Fűtés:Gáz (konvektor)
- Bútorozottság:nincs megadva
- Fényviszony:Jó
- Tájolás:nincs megadva
- Kilátás:nincs megadva
- Internet:nincs megadva
- Klíma:nincs megadva
- Akadálymentesített:nincs megadva
- Energiatanúsítvány:nincs megadva
- Villany:nincs megadva
- Víz:nincs megadva
- Gáz:nincs megadva
- Csatorna:nincs megadva
- Kapcsolatfelvétel

Gutléber Nelly
+36-(70)-323-1309
Mondd meg a hirdetőnek, hogy a megveszLAK-on találtad a hirdetést.
Referencia szám: M326155
Hitel ajánlatok
Ingatlan hirdetés leírása
Eladó Ház, Cegléd, Eladó átlagos állapotú ház - Cegléd
Cegléden, csendes környezetben eladó egy 74 m2 családi ház egy 406 m2-es telken! Az ingatlan vegyes falazatú, elrendezése praktikus. Megtalálható benne előszoba, konyha, fürdőszoba külön wc-vel, nappali és két szoba. a fürdőszoba 2026-ban felújításra került. a fűtést gázkonvektor biztosítja és hűtő-fűtő klima is beszerelésre került a maximális komfort érdekében. Az ingatlan minden közművel ellátott. a padlásfödém szigetelés idén elkészült, így a fűtési költségek jelentősen csökennek. a környék nyugodt és csendes, mégis minden elérhető távolságra van: óvoda, iskola, kórház és bevásárlási lehetőségek. Az Otp Ingatlanpont teljes körű ügyintézéssel áll az eladók és a vevők rendelkezésére! Az adásvételi szerződéshez megbízható ügyvédi közreműködést biztosítunk.
Referencia szám: m326155 FIX 3% lakáshitelre megvehető
Tetszett ez az eladó Ceglédi átlagos állapotú 2 egész és 1 fél szobás családi ház? Hívd fel a hirdetőt most, és tudj meg mindent erről az eladó családi házról! Ha gondolod nézelődj tovább az eladó ház Cegléd oldal hirdetései között. Ennek az eladó háznak az ára 49500000 Ft és mivel az alapterülete 74 négyzetméter, ezért az átlagos négyzetméterára 668919 HUF/m2.
Az eladó házak menüpontban további hirdetések között is böngészhetsz. Ha van kedved, akkor böngészhetsz a Gutléber Nelly összes hirdetése között, vagy akár a/az OTPip Albertirsa Pesti út 46 - OTP Ingatlanpont Iroda összes hirdetése között is.

