Eladó újszerű állapotú ház Cegléd
| Kedvencbe | Megosztás | Árfigyelő |
| FIX 3% lakáshitelre megvehető | ||
| 117 000 000 HUF | ||
Ingatlan adatai
- Eladó vagy kiadó:Eladó
- Település:Cegléd
- Kategória:Ház
- Alkategória:Családi ház
- Alapterület:187 m2
- Telekterület:1814 m2
- Csere is:Nem
- Hirdető:Cég
- Élő videón megtekinthető:Nem
- Építés éve:2022
- Szobaszám:4
- Állapot:Újszerű, kitűnő
- Hány szintes az ingatlan:nincs megadva
- Tetőtér:nincs megadva
- Komfortosság:nincs megadva
- Pince:Nincs
- Parkolási lehetőség:Garázsban
- Fűtés:Elektromos
- Bútorozottság:nincs megadva
- Fényviszony:nincs megadva
- Tájolás:nincs megadva
- Kilátás:nincs megadva
- Internet:nincs megadva
- Klíma:Van
- Akadálymentesített:Nem akadálymentesített
- Energiatanúsítvány:A
- Villany:nincs megadva
- Víz:Van
- Gáz:Utcában
- Csatorna:Van
- Üzenetküldés
- Hívás


Hitel ajánlat
Ingatlan hirdetés leírása
ELADÓ CEGLÉDI 187 m2 ÚJ ÉPÍTÉSŰ CSALÁDI HÁZ.
A casanetwork cegléd eladásra kínálja a 174602019 ceglédi új építésű családi HÁZAT.ELADÓ cegléden 187 m2-s 2022-ben épült családi ház az úrinegyed szélén.
Szereti a nagy tereket? Fontos Önnek és családjának a hatalmas élettér? Új házat szeretne, de semmi kedve építkezésbe fogni? ! Megtalálta az ideális vételt!
Ha autóval érkezik akkor a távirányítós elektromos garázskapu nyitásával érkezik egy tágas 21 m2-s garázsba. Garázsból egyből az épületbe lépve egy hihetetlen méretű nappali - étkező tárul elénk. a három 16 m2-s szobából kettő egymás mellett kapott helyet, de szülői háló logikusan távolabb kapott helyet. Az igazán tágas 20 m2-s konyha közepén van egy épített konyha sziget. Itt a család rengeteg hasznos időt tud eltölteni. a 18 m2-s teraszról tökéletes kilátás nyílik az összesen 1814 m2-s kertre. Az ingatlanban van ipariáram, az udvaron a gazdaságos locsoláshoz fúrt kút is kialakításra került. Az ingatlan per, teher és igény mentes.
Egyéb jellemzők:
- Tégla építésű
- Tető beton cserép fedésű
- 20 cm hőszigetelés a padláson
- 20 cm szigetelés a külső flakon
- Műanyag nyílászárók
- Építkezéshez tartozó teljes dokumentáció rendelkezésre áll
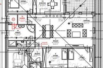
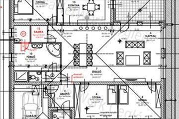
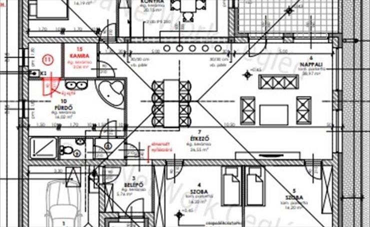
Az épület helyiségei:
- Nappali + étkező 85. 6 m2
- Konyha 20. 1 m2
- Szoba 16. 2 m2
- Szoba 16. 2 m2
- Szoba 16. 2 m2
- Előtér 5. 7 m2
- Fürdő 16 m2
- Toalett 2. 3 m2
- Spájz 3 m2
- Mosókonyha 3. 6 m2
- Terasz 18. 6 m2
- Garázs 21. 6 m2
Irodánk teljes körű segítséget tud nyújtani hitelekhez és az összes államilag finanszírozott családi támogatásokhoz!
Ha felkeltette érdeklődését, hívjon bátran és szívesen megmutatom!
Megtekintése kizárólag előre egyeztetett időpontban lehetséges!
Eladó ingatlana van? Hirdesse meg Nálam!
Amennyiben a 174602019 számú a casanetwork Cegléd által kínált lakás, építési telek, családi ház vagy bármely a kínálatunkban található ingatlan felkeltette érdeklődését, hívjon a megadott telefonszámon. /A hirdetésben szereplő információk a megbízótól kapott adatok alapján készültek, pontosságukért felelősséget nem vállalunk! /
CasaNetWork - Ingatlanban otthon vagyunk! FIX 3% lakáshitelre megvehető

