Eladó új építésű ház - Ceglédbercel
- INGYENES HIRDETÉS FELADÁS
Ingatlan adatai
- Eladó vagy kiadó:Eladó
- Település:Ceglédbercel
- Kategória:Ház
- Alkategória:Családi ház
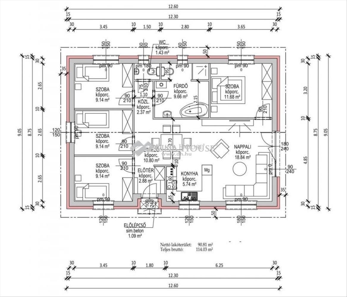
- Alapterület:90 m2
- Telekterület:1575 m2
- Csere is:Nem
- Hirdető:Cég
- Élő videón megtekinthető:Nem
- Építés éve:2026
- Szobaszám:5
- Állapot:Új építésű
- Hány szintes az ingatlan:Földszintes
- Tetőtér:nincs megadva
- Komfortosság:nincs megadva
- Pince:nincs megadva
- Parkolási lehetőség:nincs megadva
- Fűtés:Hőszivattyús
- Bútorozottság:nincs megadva
- Fényviszony:Napfényes
- Tájolás:DNY
- Kilátás:nincs megadva
- Internet:nincs megadva
- Klíma:nincs megadva
- Akadálymentesített:nincs megadva
- Energiatanúsítvány:nincs megadva
- Villany:nincs megadva
- Víz:nincs megadva
- Gáz:nincs megadva
- Csatorna:nincs megadva
- Kapcsolatfelvétel

Kovács-Orbán Mercédesz
+36-(70)-882-9683
Mondd meg a hirdetőnek, hogy a megveszLAK-on találtad a hirdetést.
Referencia szám: HZ096891
Hitel ajánlatok
Ingatlan hirdetés leírása
Eladó ház, Ceglédbercel
Új építésű családi ház kulcsrakészen Ceglédbercelen, Aranyhegy utcában.
Eladó egy 90m2-es családi ház, nappali + 4 szoba, nagy méretű, 1575 m²-es telken - az ár a telekkel együtt értendő!
Ár: kulcsrakészen, terasz, konyhabútor és lámpatestek nélkül értendő.
Kiemelt előnyök:
-ELŐFINANSZÍROZÁS lehetősége csak az elkészült ütemek után kell fizetni.
-ÁRGARANCIA és kötbér vállalás a kivitelezőtől
Műszaki tartalom:
Teherhordó falazat: Wienerberger Porotherm 30 N+F
Homlokzati hőszigetelés: 15 cm
Tetőhéjazat választható: Leier Toscana tetőcserép választható színben
Külső nyílászárók: 3 réteg üvegezésű, kívül antracit, belül fehér prémium Gealan s8000 külső nyílászárók, 36 mm-es üvegezéssel + antracit, alumínium redőnyök + antracit műkő párkány
Válaszfal: Wienerberger Porotherm 10 tégla válaszfal
Bejárati ajtó választható: Colorplast standard betéttel
Teraszajtó: Dupla szárnyas
Beltéri ajtó: Borovi Szicília (dekorfóliás) választható színben
Hidegburkolat választható: 6. 500 Ft / m2
Melegburkolat választható: 6. 000 Ft / m2
Szaniterek választható: (kád, zuhanykabin, csaptelep stb. ) 460. 000Ft-ig
Gépészet: Bosch 3400 levegő-víz hőszivattyú vizes padlófűtéssel
Közművek:
Gáz: nincs
Villany: ingatlanban
Csatorna: ingatlanban
Víz: ingatlanban
Érd: Kovács-Orbán Mercédesz +36708829683
E-mail: kovacs. Orban. Mercedesz@gmail. Com
Referencia szám: hz096891 FIX 3% lakáshitelre megvehető
Tetszett ez az eladó Ceglédberceli új építésű 5 szobás családi ház? Hívd fel a hirdetőt most, és tudj meg mindent erről az eladó családi házról! Ha gondolod nézelődj tovább az eladó ház Ceglédbercel oldal hirdetései között. Ennek az eladó háznak az ára 89900000 Ft és mivel az alapterülete 90 négyzetméter, ezért az átlagos négyzetméterára 998889 HUF/m2.
Az eladó házak menüpontban további hirdetések között is böngészhetsz. Ha van kedved, akkor böngészhetsz a Kovács-Orbán Mercédesz összes hirdetése között, vagy akár a/az Duna House Villa Gyömrő összes hirdetése között is.

