Eladó átlagos állapotú ház - Ceglédbercel
- INGYENES HIRDETÉS FELADÁS
Ingatlan adatai
- Eladó vagy kiadó:Eladó
- Település:Ceglédbercel
- Kategória:Ház
- Alkategória:Családi ház
- Alapterület:124 m2
- Telekterület:1100 m2
- Csere is:Nem
- Hirdető:Cég
- Élő videón megtekinthető:Nem
- Szobaszám:4
- Állapot:Átlagos állapotú
- Hány szintes az ingatlan:2 szintes
- Tetőtér:nincs megadva
- Komfortosság:nincs megadva
- Pince:Nincs
- Parkolási lehetőség:nincs megadva
- Fűtés:Gáz
- Bútorozottság:Bútorozott
- Fényviszony:nincs megadva
- Tájolás:nincs megadva
- Kilátás:nincs megadva
- Internet:nincs megadva
- Klíma:Van
- Akadálymentesített:nincs megadva
- Energiatanúsítvány:nincs megadva
- Villany:Van
- Víz:Van
- Gáz:Van
- Csatorna:Van
- Kapcsolatfelvétel

Kereki Katalin
+36-(20)-406-0896
Mondd meg a hirdetőnek, hogy a megveszLAK-on találtad a hirdetést.
Hitel ajánlatok
Ingatlan hirdetés leírása
Két szintes, 124 nm-es családi ház eladó Ceglédbercel nívós kö...
Ceglédbercel egyik kedvelt, rendezett részén kínálom megvételre ezt a tégla falazatú, beton alapra épült, 124 nm hasznos alapterületű, kétszintes családi házat.
Az ingatlan összközműves, hitelképes, duplakomfortos kialakítású, lakótere praktikus elrendezésű, kiváló lehetőség nagyobb családok számára is.
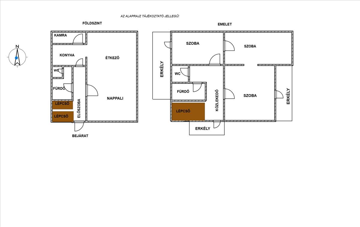
Helyiségek elosztása:
Földszint:
előszoba
tágas nappali–étkező
konyha
kamra
fürdőszoba/WC
Emelet:
3 szoba
közlekedő
fürdőszoba
külön WC
3 erkély
A melegvizet a földszinten gázbojler, az emeleten villanybojler biztosítja.
Műszaki jellemzők:
Tégla falazat
Beton alap
Lindab lemez tetőfedés
Gázkazán + vegyes tüzelésű kazán (radiátoros hőleadással)
2 db hűtő-fűtő klíma
Jó állapotú, redőnnyel ellátott, duplaszárnyú fatokos nyílászárók
A lakótér alatt egy 60 nm -es szuterén található, amely magában foglalja:
garázst
mosókonyhát
pincét
A szuterén a lakótéren belülről és az udvar felől is megközelíthető.
Telek:
Az 1 100 nm -es, kerített porta rendezett, parkosított.
Az udvaron egy könnyűszerkezetes szerszámtároló is helyet kapott.
Az ingatlan állapota átlagos, stabil szerkezeti háttérrel és jó adottságokkal rendelkezik – igény szerint korszerűsíthető, alakítható.
Irányára: 115 000 000 Ft
Érdeklődését megadott elérhetőségeim egyikén várom a hét bármely napján. Az ingatlant rugalmasan tudom mutatni. Tel. : 0620/406-0896 Vagy 0670/602-1326
Amennyiben az ingatlan megvásárlásához hitelre van szüksége, ingyenes hitel tanácsadással és teljes körű ügyintézéssel állunk rendelkezésére. Közreműködésünknek köszönhetően kedvezményesebb hitelre tehet szert, mintha önállóan a bankban intézné ügyeit, továbbá az ingatlan megvásárlásával kapcsolatos teljes körű ügyintézést is biztosítunk.
Jelzáloghitel, babaváró hitel, csok, személyi kölcsön igényét vásárlástól függetlenül díjtalanul elintézzük Önnek. FIX 3% lakáshitelre megvehető
Tetszett ez az eladó Ceglédberceli átlagos állapotú 4 szobás családi ház? Hívd fel a hirdetőt most, és tudj meg mindent erről az eladó családi házról! Ha gondolod nézelődj tovább az eladó ház Ceglédbercel oldal hirdetései között. Ennek az eladó háznak az ára 115000000 Ft és mivel az alapterülete 124 négyzetméter, ezért az átlagos négyzetméterára 927419 HUF/m2.
Az eladó házak menüpontban további hirdetések között is böngészhetsz. Ha van kedved, akkor böngészhetsz a Kereki Katalin összes hirdetése között.

