- >>
- eladó ingatlanok
- >>
- eladó ház
- >>
- eladó ház Csabrendek
- >>
Eladó felújítandó ház - Csabrendek
| | |||
| Kedvencnek jelölöm | Elküldöm emailben | Megosztás | Szavazás |
| FIX 3% lakáshitelre megvehető | |||
| 8 900 000 HUF | |||
Ingatlan adatai
- Eladó vagy kiadó:Eladó
- Település:Csabrendek
- Kategória:Ház
- Alkategória:Családi ház
- Alapterület:70 m2
- Telekterület:626 m2
- Csere is:Nem
- Hirdető:Cég
- Élő videón megtekinthető:Nem
- Építés éve:1950
- Szobaszám:3
- Állapot:Felújítandó
- Hány szintes az ingatlan:nincs megadva
- Tetőtér:nincs megadva
- Komfortosság:nincs megadva
- Pince:Nincs
- Parkolási lehetőség:nincs megadva
- Fűtés:Egyedi
- Bútorozottság:nincs megadva
- Fényviszony:nincs megadva
- Tájolás:nincs megadva
- Kilátás:nincs megadva
- Internet:nincs megadva
- Akadálymentesített:nincs megadva
- Energiatanúsítvány:nincs megadva
- Villany:nincs megadva
- Víz:nincs megadva
- Gáz:nincs megadva
- Csatorna:nincs megadva
- Üzenetküldés
- Hívás

Bonczföldi Bianka
Mondd meg a hirdetőnek, hogy a megveszLAK-on találtad a hirdetést.

Hitel ajánlat
Ingatlan hirdetés leírása
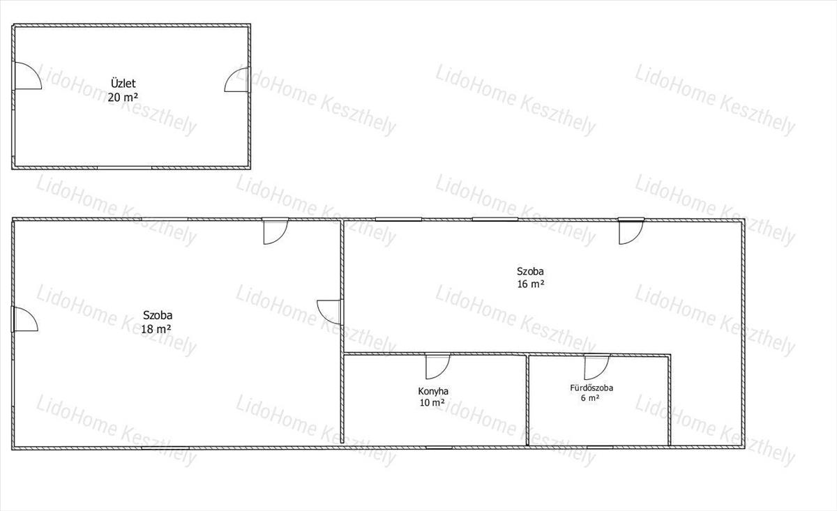
Csabrendek központjában felújítandó családi ház eladó!
A lido home Keszthely eladásra kínál csabrendeki családi HÁZAT.A lido home Keszthely által kínált csabrendeki családi ház jellemzői:
- a 70 m²-es családi ház Csabrendek központjában található
- a családi ház 1950-es években téglából épült, kívül belül egyaránt felújítandó
- 2 szoba, konyha, fürdő +wc lett kialakítva
- az utcafrontra nyíló egy szobás kis ház üzletként hasznosítható
- az ingatlan összközműves, víz, villany, gáz, csatorna bevezetve
- a 626 m²-es teleken kétállásos, szerelőaknás garázs található
- parkolási lehetőség garázsban és fedett beállón megoldott
- régi fa nyílászárók vannak
Csabrendek a Bakony utolsó nyúlványán a 374 méter magas Csúcsos-hegy lábánál fekszik. a nagy kiterjedésű községet az „Öreg-hegy” mint egy ölelő kar tavasszal virágzó pompájával, ősszel ezerszínű szépségével fogja körül. Az örökké zöldben ékeskedő fenyvesei pedig egész évben melegséggel töltik el a vidéken élők szívét. Csabrendek Sümegtől 4 km-re található.
Amennyiben a lido home által kínált csabrendeki családi ház, vagy bármely a kínálatunkban található ingatlan felkeltette érdeklődését, hívjon bizalommal a megadott telefonszámon.
Amennyiben ingatlant keres díjmentes keresőszolgálattal állok rendelkezésére.
Vásárolna, de nincs rá keret? Kollégám díjmentes, bank semleges hitelügyintézéssel áll rendelkezésére.
LIDO home - Ingatlanok egy életen át! FIX 3% lakáshitelre megvehető

