Eladó felújítandó ház - Csanytelek
- INGYENES HIRDETÉS FELADÁS
Ingatlan adatai
- Eladó vagy kiadó:Eladó
- Település:Csanytelek
- Kategória:Ház
- Alkategória:Családi ház
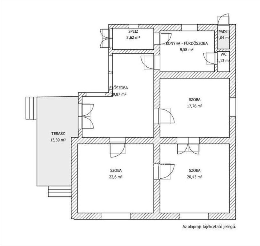
- Alapterület:91 m2
- Telekterület:4552 m2
- Csere is:Nem
- Hirdető:Cég
- Élő videón megtekinthető:Nem
- Építés éve:1960
- Szobaszám:3
- Állapot:Felújítandó
- Hány szintes az ingatlan:Földszintes
- Tetőtér:nincs megadva
- Komfortosság:nincs megadva
- Pince:nincs megadva
- Parkolási lehetőség:Udvaron
- Fűtés:Gáz (konvektor)
- Bútorozottság:nincs megadva
- Fényviszony:Jó
- Tájolás:nincs megadva
- Kilátás:nincs megadva
- Internet:nincs megadva
- Klíma:nincs megadva
- Akadálymentesített:nincs megadva
- Energiatanúsítvány:nincs megadva
- Villany:nincs megadva
- Víz:nincs megadva
- Gáz:nincs megadva
- Csatorna:nincs megadva
- Kapcsolatfelvétel

Dr. Szabados Éva
+36-(30)-309-5252
Mondd meg a hirdetőnek, hogy a megveszLAK-on találtad a hirdetést.
Referencia szám: M325835
Hitel ajánlatok
Ingatlan hirdetés leírása
Eladó Ház, Csanytelek
Kitűnő lehetőség Csanyteleken! Csak az OTP Ingatlanpontnál!
Megvételre kínálok egy jó szerkezeti állapotú családi házat Csanyteleken, a központhoz közel.
Az 4552m2-es gondozott telken egy főépület, tárolók és ólak vannak.
A vegyes falazatú 91m2-es lakóépületben egy tágas előszoba, 3 szoba, konyha, fürdő, wc, kamra kapott helyet, az előszobához egy 13m2-es fedett terasz kapcsolódik. a konyha alatt egy tárolásra alkalmas pince található. a ház felújítást igényel, korszerűsítés után értékes ingatlan válhat belőle.
A fűtést jelenleg gázkonvektorok és 2 cserépkályha biztosítja, a melegvizet villanybojler szolgáltatja.
A meglévő ólak lehetőséget biztosítanak háziállatok tartására, míg a nagyméretű telken bőven van hely konyhakert kialakítására is, az öntözéshez fúrt kút is rendelkezésre áll.
A telek végében egy 5992m2-es, szépen gondozott gyümölcsös (dió és kajszibarack) található, ami házzal együtt megvásárolható + 2 millió forintos irányáron.
Az ingatlan rendezett környéken van, a központ közelében. Óvoda, iskola, élelmiszerbolt, piac, buszmegálló a közelben van, remek lehetőség családok számára.
Az ingatlanban minden közmű megtalálható.
Per-, teher- és igénymentes.
Amennyiben felkeltette érdeklődését, hívjon bizalommal!
Az OTP Ingatlanpont teljes körű ügyintézéssel áll az eladók és vevők rendelkezésére. a kínálatunkból választott ingatlan finanszírozásához kedvezményes hitelkonstrukciót biztosítunk. Az OTP Banknál elérhető Babaváró, falusi csok, CSOK Plusz hitel és egyéb kölcsönök intézését díjmentesen vállaljuk. Az adásvételi szerződés megkötéséhez igény szerint ügyvédet biztosítunk. Irodáink Szentes, Petőfi utca 12. a buszmegálló felől, és Csongrád, Fő utca 54. Szám alatt várjuk a személyes érdeklődőket. Válasszuk ki együtt az Önnek legmegfelelőbb ajánlatot banki sorban állás nélkül!
Referencia szám: m325835-ml FIX 3% lakáshitelre megvehető
Tetszett ez az eladó Csanyteleki felújítandó 3 szobás családi ház? Hívd fel a hirdetőt most, és tudj meg mindent erről az eladó családi házról! Ha gondolod nézelődj tovább az eladó ház Csanytelek oldal hirdetései között. Ennek az eladó háznak az ára 15900000 Ft és mivel az alapterülete 91 négyzetméter, ezért az átlagos négyzetméterára 174725 HUF/m2.
Az eladó házak menüpontban további hirdetések között is böngészhetsz. Ha van kedved, akkor böngészhetsz a Dr. Szabados Éva összes hirdetése között, vagy akár a/az OTPip Szentes Petőfi utca 12 - OTP Ingatlanpont Iroda összes hirdetése között is.

