Eladó felújítandó ház - Csanytelek
- INGYENES HIRDETÉS FELADÁS
Ingatlan adatai
- Eladó vagy kiadó:Eladó
- Település:Csanytelek
- Kategória:Ház
- Alkategória:Családi ház
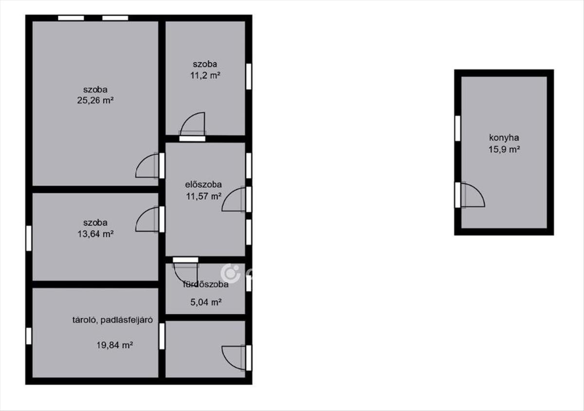
- Alapterület:87 m2
- Telekterület:2276 m2
- Csere is:Nem
- Hirdető:Cég
- Élő videón megtekinthető:Nem
- Építés éve:1940
- Szobaszám:2 + 1 fél
- Állapot:Felújítandó
- Hány szintes az ingatlan:Földszintes
- Tetőtér:nincs megadva
- Komfortosság:nincs megadva
- Pince:nincs megadva
- Parkolási lehetőség:Udvaron
- Fűtés:Egyéb
- Bútorozottság:nincs megadva
- Fényviszony:Jó
- Tájolás:nincs megadva
- Kilátás:nincs megadva
- Internet:nincs megadva
- Klíma:nincs megadva
- Akadálymentesített:nincs megadva
- Energiatanúsítvány:nincs megadva
- Villany:Nincs
- Víz:nincs megadva
- Gáz:Telken belül
- Csatorna:nincs megadva
- Kapcsolatfelvétel

Dr. Szabados Éva
+36-(30)-309-5252
Mondd meg a hirdetőnek, hogy a megveszLAK-on találtad a hirdetést.
Referencia szám: M321603
Hitel ajánlatok
Ingatlan hirdetés leírása
Eladó Ház, Csanytelek
*** Felújítandó, 3 szobás családi ház, nagy telekkel Csanytelek központjához közel csak az OTP Ingatlanpont kínálatában eladó ***
A 87m2-es ház aszfaltos utcában, iskola, óvoda és boltok a közelében található, így megfelelő választás családok számára.
Az otthon 3 külön bejáratú szobából és fürdőszobából áll. a konyha külön épületben található. Két szobában épített csempekályha biztosítja az egész ház fűtését. Energetikai tanúsítvány nem áll rendelkezésre.
Az ingatlan felújításra szorul. Fontos, hogy vizesedés a lakótérben nem tapasztalható, van fürdőszoba.
Az OTP Ingatlanpontnál évről-évre több ügyfelünknek segítünk abban, hogy maximális áron, problémamentesen tudják eladni ingatlanukat. Képzett és tapasztalt tanácsadóink kiválóan ismerik az ingatlanpiacot, szakmai tudásuk és piacismeretük révén végig segítséget tudnak nyújtani Önnek a sikeres értékesítés folyamatában. Irodáink Szentes, Petőfi utca 12. a buszmegálló felől, és Csongrád, Fő utca 54. Szám alatt várja a személyes érdeklődőket. ***Válasszuk ki együtt az önnek legmegfelelőbb ajánlatot! Banki sorban állás nélkül! ***
Az energetikai tanúsítvány készítése folyamatban van, amint rendelkezésre áll, úgy azzal a hirdetés frissítésre kerül.
Referencia szám: m321603-ml FIX 3% lakáshitelre megvehető
Tetszett ez az eladó Csanyteleki felújítandó 2 egész és 1 fél szobás családi ház? Hívd fel a hirdetőt most, és tudj meg mindent erről az eladó családi házról! Ha gondolod nézelődj tovább az eladó ház Csanytelek oldal hirdetései között. Ennek az eladó háznak az ára 6990000 Ft és mivel az alapterülete 87 négyzetméter, ezért az átlagos négyzetméterára 80345 HUF/m2.
Az eladó házak menüpontban további hirdetések között is böngészhetsz. Ha van kedved, akkor böngészhetsz a Dr. Szabados Éva összes hirdetése között, vagy akár a/az OTPip Szentes Petőfi utca 12 - OTP Ingatlanpont Iroda összes hirdetése között is.

