Eladó jó állapotú ház - Cserépfalu
- INGYENES HIRDETÉS FELADÁS
Ingatlan adatai
- Eladó vagy kiadó:Eladó
- Település:Cserépfalu
- Kategória:Ház
- Alkategória:Családi ház
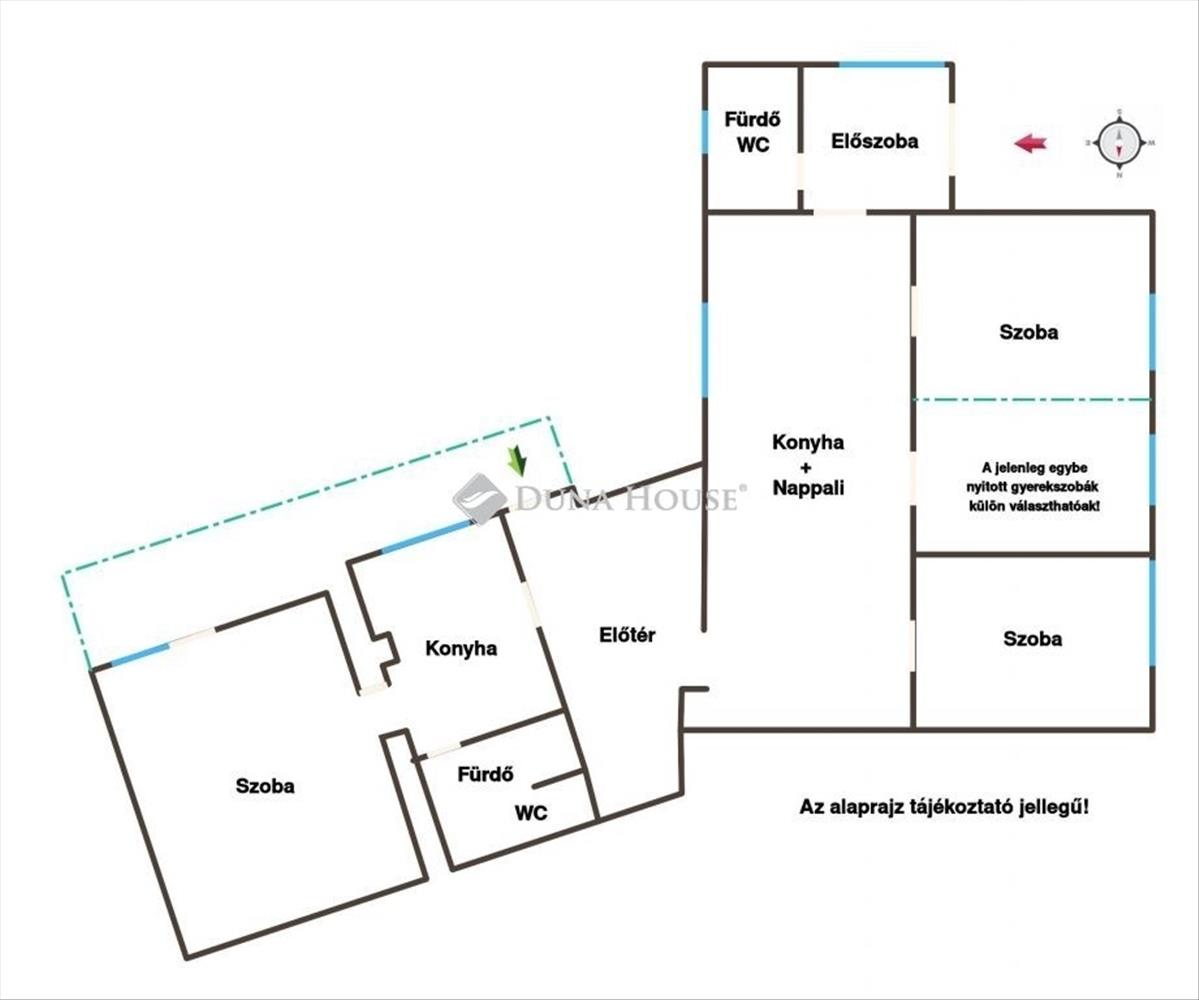
- Alapterület:143 m2
- Telekterület:1396 m2
- Csere is:Nem
- Hirdető:Cég
- Élő videón megtekinthető:Nem
- Építés éve:1978
- Szobaszám:4
- Állapot:Jó állapotú
- Hány szintes az ingatlan:Földszintes
- Tetőtér:nincs megadva
- Komfortosság:nincs megadva
- Pince:nincs megadva
- Parkolási lehetőség:nincs megadva
- Fűtés:Gáz
- Bútorozottság:nincs megadva
- Fényviszony:Jó
- Tájolás:K
- Kilátás:nincs megadva
- Internet:nincs megadva
- Klíma:nincs megadva
- Akadálymentesített:nincs megadva
- Energiatanúsítvány:nincs megadva
- Villany:nincs megadva
- Víz:Van
- Gáz:nincs megadva
- Csatorna:Van
- Kapcsolatfelvétel

Darók Katalin
+36-(30)-628-4686
Mondd meg a hirdetőnek, hogy a megveszLAK-on találtad a hirdetést.
Referencia szám: HZ045911
Hitel ajánlatok
Ingatlan hirdetés leírása
Eladó ház, Cserépfalu
Eladó felújított családi ház külön bejáratú lakrésszel Cserépfalu központjában
Cserépfalu frekventált, mégis nyugodt részén kínálunk megvételre egy igényesen felújított, otthonos hangulatú családi házat, amelyhez egy külön bejáratú, teraszos lakrész is tartozik.
Az ingatlan kialakítása lehetővé teszi a kényelmes együttélést, miközben a külön lakrész önálló lakásként vagy apartmanként is hasznosítható. a belső terek világosak, barátságosak, az elrendezés praktikus, a műszaki tartalom korszerű, így az ingatlan azonnal költözhető vagy hasznosítható.
Főbb adatok
Telek területe: 1396 m²
Lakóterület: kb. 143 M²
Felújítás éve: 2021
Műszaki tartalom
Falazat: bogácsi kő
Nyílászárók: 2 rétegű műanyag ablakok
Tető: betoncserép, felújított lécezés
Homlokzati szigetelés: 10–15 cm
Lábazati szigetelés: 5–10 cm
Teljes villamoshálózat csere
Födém szigetelés: 20 cm üveggyapot (2026)
Fűtés és komfort
Padlófűtés és radiátoros hőleadás kombinációja
5, 3 kW-os inverteres klíma
Fatüzelésű kályha alternatív fűtési lehetőségként
Két felújított fürdőszoba
A jelenlegi nagyobb hálószoba igény szerint két külön helyiséggé alakítható
Belső kialakítás
Szobákban laminált padló
Közlekedőkben és vizes helyiségekben hidegburkolat
Letisztult, világos belső terek, harmonikus színvilág
Hasznosítási lehetőségek
Külön bejáratú, teraszos lakrész önálló lakásként vagy apartmanként működtethető
Ideális vendégek fogadására vagy turisztikai kiadásra
Kiváló választás többgenerációs együttéléshez
Alkalmas otthoni munkavégzésre, külön dolgozótér kialakítására
Nyugodt, elkülönült élettér biztosítható a fő lakrésztől
Összegzés
Az ingatlan harmonikus egyensúlyt kínál otthon és befektetési lehetőség között: nagy méretű telek, korszerű műszaki tartalom és többféle hasznosítási opció Cserépfalu központi elhelyezkedésével.
Amennyiben hitelre is szüksége van, a Duna House saját, bankfüggetlen pénzügyi partnere, a Credipass díjmentesen áll rendelkezésére. FIX 3% lakáshitelre megvehető
Tetszett ez az eladó Cserépfalui jó állapotú 4 szobás családi ház? Hívd fel a hirdetőt most, és tudj meg mindent erről az eladó családi házról! Ha gondolod nézelődj tovább az eladó ház Cserépfalu oldal hirdetései között. Ennek az eladó háznak az ára 58000000 Ft és mivel az alapterülete 143 négyzetméter, ezért az átlagos négyzetméterára 405594 HUF/m2.
Az eladó házak menüpontban további hirdetések között is böngészhetsz. Ha van kedved, akkor böngészhetsz a Darók Katalin összes hirdetése között, vagy akár a/az Duna House Eger összes hirdetése között is.

