Eladó jó állapotú ház Cserépfalu
| Kedvencbe | Megosztás | Árfigyelő |
| FIX 3% lakáshitelre megvehető | ||
| 58 000 000 HUF | ||
Ingatlan adatai
- Eladó vagy kiadó:Eladó
- Település:Cserépfalu
- Kategória:Ház
- Alkategória:Családi ház
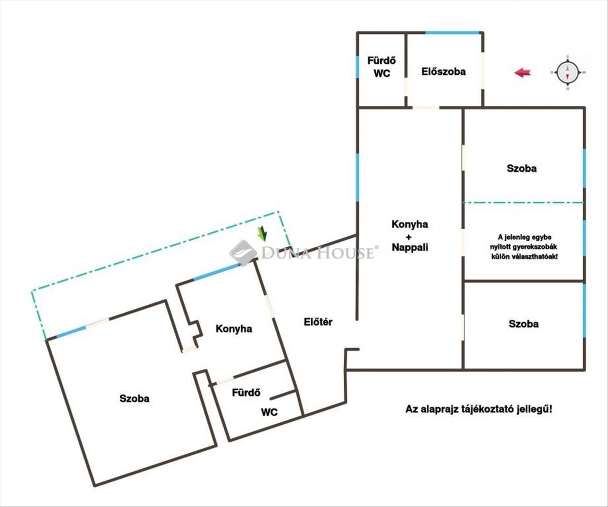
- Alapterület:143 m2
- Telekterület:1396 m2
- Csere is:Nem
- Hirdető:Cég
- Élő videón megtekinthető:Nem
- Építés éve:1978
- Szobaszám:4
- Állapot:Jó állapotú
- Hány szintes az ingatlan:Földszintes
- Tetőtér:nincs megadva
- Komfortosság:nincs megadva
- Parkolási lehetőség:nincs megadva
- Fűtés:Gáz
- Bútorozottság:nincs megadva
- Fényviszony:Jó
- Tájolás:K
- Kilátás:nincs megadva
- Internet:nincs megadva
- Akadálymentesített:nincs megadva
- Energiatanúsítvány:E
- Villany:nincs megadva
- Víz:nincs megadva
- Gáz:nincs megadva
- Csatorna:nincs megadva
- Üzenetküldés
- Hívás

Referencia szám: HZ045911

Hitel ajánlat
Ingatlan hirdetés leírása
Eladó ház, Cserépfalu
Eladó családi ház Cserépfalu központjában külön bejáratú, apartmanként is hasznosítható lakrésszelCserépfalu frekventált, mégis nyugodt részén kínálunk megvételre egy igényesen felújított, otthonos hangulatú családi házat, amelyhez egy külön bejáratú, teraszos lakrész is tartozik. Az ingatlan kialakítása lehetővé teszi a kényelmes együttélést, miközben a külön lakrész önálló funkciót is betölthet.
A belső terek világosak, barátságosak, az elrendezés praktikus, a műszaki tartalom korszerű, így az ingatlan azonnal költözhető vagy hasznosítható.
>
Főbb adatok és műszaki jellemzők
Telek területe: 1396 m²
Lakóterület: kb. 143 M²
Felújítás éve: 2021
Falazat: bogácsi kő
Nyílászárók: 2 rétegű műanyag ablakok
Tető: betoncserép, a lécezés cseréje megtörtént
Homlokzati szigetelés: 10-15 cm
Lábazati szigetelés: 5-10 cm
Villamoshálózat teljes cseréje megtörtént
Födém szigetelése 2026-os kivitelezésű: 20 cm-es üveggyapot
⸻
Fűtés és komfort
Padlófűtés és radiátoros hőleadás kombinációja
5, 3 kW-os inverteres klíma
Fatüzelésű kályha, mint alternatív fűtési lehetőség
Két felújított fürdőszoba
A jelenlegi nagyobb hálószoba két külön helyiséggé alakítható
⸻
Belső burkolatok és esztétika
Szobákban laminált padló
Közlekedőkben és vizes helyiségekben hidegburkolat
Letisztult, világos belső terek, harmonikus színvilág
⸻
Hasznosítási lehetőségek
A külön bejáratú, teraszos lakrész önálló lakásként vagy apartmanként is működtethető
Ideális vendégek fogadására vagy turisztikai kiadásra
Kiváló megoldás többgenerációs családoknak
Alkalmas csendes otthoni munkavégzésre, külön dolgozótérként
Lehetőséget biztosít nyugodt elvonulásra, pihenésre, a fő lakótértől elkülönítve
⸻
Összegzés
Ez az ingatlan harmonikus egyensúlyt kínál otthon és funkcionalitás között: nagy telek, felújított műszaki tartalom, valamint többféle hasznosítási lehetőség Cserépfalu központjában.
Hívjon bizalommal, és tekintse meg személyesen ezt a sokoldalúan használható ingatlant!
Credipass-bankfüggetlen hitelügyintézés
További információ : Mizser Andrea, telefon: +36 20 498 2113 FIX 3% lakáshitelre megvehető

