Eladó jó állapotú ház - Csobád
- INGYENES HIRDETÉS FELADÁS
Ingatlan adatai
- Eladó vagy kiadó:Eladó
- Település:Csobád
- Kategória:Ház
- Alkategória:Családi ház
- Alapterület:100 m2
- Telekterület:1223 m2
- Csere is:Nem
- Hirdető:Cég
- Élő videón megtekinthető:Nem
- Építés éve:1965
- Szobaszám:2 + 1 fél
- Állapot:Jó állapotú
- Hány szintes az ingatlan:Földszintes
- Tetőtér:nincs megadva
- Komfortosság:nincs megadva
- Pince:nincs megadva
- Parkolási lehetőség:Udvaron
- Fűtés:Gáz
- Bútorozottság:nincs megadva
- Fényviszony:Napfényes
- Tájolás:nincs megadva
- Kilátás:nincs megadva
- Internet:nincs megadva
- Klíma:nincs megadva
- Akadálymentesített:nincs megadva
- Energiatanúsítvány:nincs megadva
- Villany:nincs megadva
- Víz:nincs megadva
- Gáz:nincs megadva
- Csatorna:nincs megadva
- Kapcsolatfelvétel

Balogh Gergő
+36-(30)-716-3302
Mondd meg a hirdetőnek, hogy a megveszLAK-on találtad a hirdetést.
Referencia szám: M321154
Hitel ajánlatok
Ingatlan hirdetés leírása
Eladó Ház, Csobád, Eladó jó állapotú ház - Csobád
Csobád csendes, nyugodt részén kínálunk megvételre egy nettó 100 négyzetméteres, 2+1 szobás, két éve teljes körűen felújított családi házat, amely ideális választás lehet mindazok számára, akik az azonnal költözhető, korszerű otthont keresik, kompromisszumok nélkül.
Az ingatlan az elmúlt években szinte teljes újjászületésen ment keresztül. Új lécezést és lemez tetőt kapott, a külső nyílászárókat korszerű műanyagra, a belső ajtókat pedig modern, fa hatású kivitelre cserélték. a felújítás nem csupán esztétikai volt: a víz- és villamoshálózat teljes körűen megújult, a régi vezetékek helyére új, szabványos rendszer került, új villanyórával. Az otthon energiahatékonyságát 25 cm-es födémszigetelés is javítja, ami hosszú távon is kedvező fenntartást biztosít.
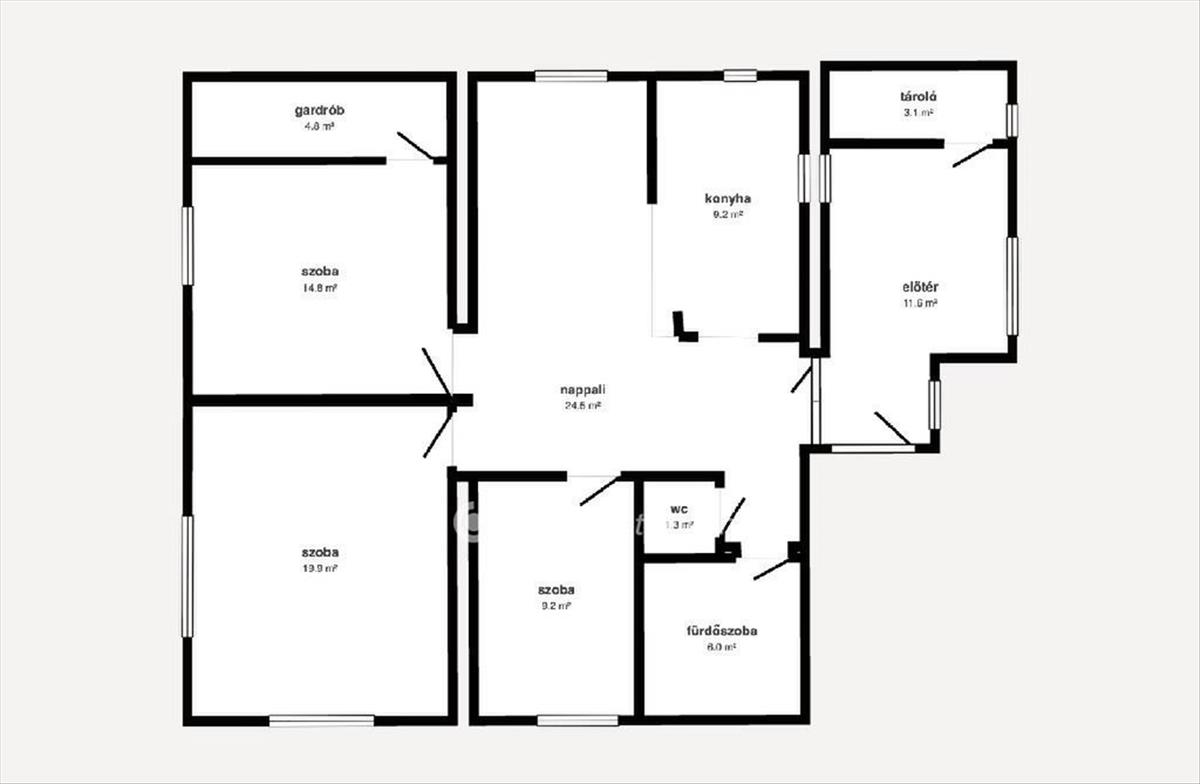
A ház szíve a tágas, világos amerikai stílusú konyha-nappali, amely kényelmes közösségi térként szolgál a családi mindennapokhoz. a teljesen új fürdőszoba igazi kényelmi központ: zuhanyzó és kád egyaránt helyet kapott benne, így minden igényt kielégít. a wc külön helyiségben található, ami a mindennapok során kifejezetten praktikus megoldás.
A burkolatok is igényesek és egységesek: a konyha, fürdőszoba, wc és a zárt terasz járólappal fedett, míg a lakótér többi részében meleg hatású laminált padló teszi otthonossá a tereket. Két tágas szoba, egy kisebb gyerekszoba, valamint egy külön kialakított gardróbszoba biztosítja, hogy minden családtagnak jusson saját tér.
A fűtést kondenzációs Ariston kombi gázkazán biztosítja, amely hordozható termosztátról vezérelhető. a rendszerhez teljesen új fűtéscsövek és radiátorok tartoznak, így a komfort és a gazdaságos működés egyaránt adott.
Az ingatlan alatt két pince is található, ami kiváló tárolási lehetőséget kínál, emellett egy tágas, különálló garázs is a ház része. a kert hangulatos és élhető, ahol gyümölcsfák sora teremti meg a valódi vidéki otthon érzését.
Ez a ház tökéletes választás lehet azoknak, akik felújítással már nem szeretnének foglalkozni, csak beköltözni egy műszakilag is megújult, kényelmes otthonba, csendes környezetben. Ha egy gondosan felújított, azonnal élhető családi házat keres Csobádon, ezt az ingatlant érdemes személyesen is megnéznie. Lehet, hogy éppen itt találja meg új otthonát.
Elhelyezkedéséből adódóan iskola, óvoda, posta, bolt, templom, és egyéb szolgáltatók 5-10 percen belül elérhetők. Az ingatlan per és tehermentes.
OTP Banki hátterünknek köszönhetően finanszírozási igényekben (pl. Otthon Start Hitelprogram, Babaváró, Falusi csok, CSOK Plusz, Lakáshitel, Személyi kölcsön stb. ), Illetve biztosítások tekintetében is díjmentesen, soron kívüli ügyintézéssel segítem ügyfeleim! Érdeklődés esetén kérem hivatkozzon az M321154-es referenciaszámra. FIX 3% lakáshitelre megvehető
Tetszett ez az eladó Csobádi jó állapotú 2 egész és 1 fél szobás családi ház? Hívd fel a hirdetőt most, és tudj meg mindent erről az eladó családi házról! Ha gondolod nézelődj tovább az eladó ház Csobád oldal hirdetései között. Ennek az eladó háznak az ára 27000000 Ft és mivel az alapterülete 100 négyzetméter, ezért az átlagos négyzetméterára 270000 HUF/m2.
Az eladó házak menüpontban további hirdetések között is böngészhetsz. Ha van kedved, akkor böngészhetsz a Balogh Gergő összes hirdetése között, vagy akár a/az OTPip Miskolc Szemere Bertalan utca 20 - OTP Ingatlanpont Iroda összes hirdetése között is.

