Eladó felújítandó ház - Csongrád
- INGYENES HIRDETÉS FELADÁS
Ingatlan adatai
- Eladó vagy kiadó:Eladó
- Település:Csongrád
- Kategória:Ház
- Alkategória:Családi ház
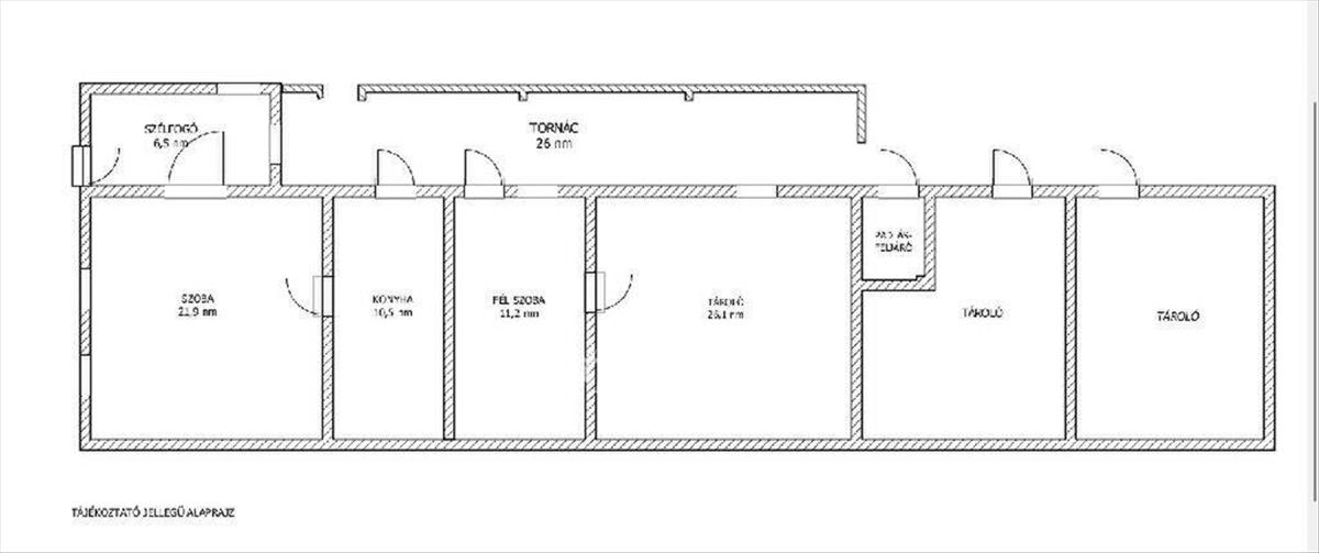
- Alapterület:102 m2
- Telekterület:330 m2
- Csere is:Nem
- Hirdető:Cég
- Élő videón megtekinthető:Nem
- Építés éve:1940
- Szobaszám:1 + 1 fél
- Állapot:Felújítandó
- Hány szintes az ingatlan:Földszintes
- Tetőtér:nincs megadva
- Komfortosság:nincs megadva
- Pince:nincs megadva
- Parkolási lehetőség:Udvaron
- Fűtés:Gáz (konvektor)
- Bútorozottság:nincs megadva
- Fényviszony:Közepes
- Tájolás:nincs megadva
- Kilátás:nincs megadva
- Internet:nincs megadva
- Klíma:nincs megadva
- Akadálymentesített:nincs megadva
- Energiatanúsítvány:nincs megadva
- Villany:nincs megadva
- Víz:nincs megadva
- Gáz:nincs megadva
- Csatorna:nincs megadva
- Kapcsolatfelvétel

Vincze Zoltán
+36-(70)-708-1452
Mondd meg a hirdetőnek, hogy a megveszLAK-on találtad a hirdetést.
Referencia szám: M326264
Hitel ajánlatok
Ingatlan hirdetés leírása
Eladó Ház, Csongrád, Eladó felújítandó ház - Csongrád
Csongrád szívéhez közel kínálunk megvételre egy kb. 100 Nm-es, tornácos, vegyes falazatú parasztházat, igazi kis kerttel. Pár éve megtörtént a szakszerű aláfalazás.
Az ingatlan felújítandó állapotú, így új tulajdonosa saját igényei szerint alakíthatja át, jelenleg félkomfortos. Kiváló lehetőség azoknak, akik értéket látnak egy régi, hangulatos parasztház felújításában vagy akár egy üzlethelyiség létrehozásában. Szárazkapu bejáróval rendelkezik, mely akár garázsként is funkcionálhat.
Csendes környezet, mégis minden fontos intézmény könnyen elérhető, lidl, pepco, kik a közelben.
Amennyiben felkeltettem érdeklődését, hívjon bizalommal! Az OTP Ingatlanpont teljes körű ügyintézéssel áll az eladók és vevők rendelkezésére. a kínálatunkból választott ingatlan finanszírozásához kedvezményes hitelkonstrukciót biztosítunk. Az OTP Banknál elérhető Otthon Start Hitelprogram, Babaváró, falusi csok, CSOK Plusz hitel és egyéb kölcsönök intézését díjmentesen vállaljuk. Az adásvételi szerződés megkötéséhez igény szerint ügyvédet biztosítunk. Irodáink Csongrád, Fő utca 54. Szám és Szentes, Petőfi utca 12. (Buszmegálló felől) várjuk a személyes érdeklődőket. Válasszuk ki együtt az Önnek legmegfelelőbb ajánlatot banki sorban állás nélkül
Referencia szám: m326264-ml FIX 3% lakáshitelre megvehető
Tetszett ez az eladó Csongrádi felújítandó 1 egész és 1 fél szobás családi ház? Hívd fel a hirdetőt most, és tudj meg mindent erről az eladó családi házról! Ha gondolod nézelődj tovább az eladó ház Csongrád oldal hirdetései között. Ennek az eladó háznak az ára 12900000 Ft és mivel az alapterülete 102 négyzetméter, ezért az átlagos négyzetméterára 126471 HUF/m2.
Az eladó házak menüpontban további hirdetések között is böngészhetsz. Ha van kedved, akkor böngészhetsz a Vincze Zoltán összes hirdetése között, vagy akár a/az OTPip Csongrád Fő utca 54 - OTP Ingatlanpont Iroda összes hirdetése között is.

