Eladó jó állapotú ház - Csongrád
- INGYENES HIRDETÉS FELADÁS
Ingatlan adatai
- Eladó vagy kiadó:Eladó
- Település:Csongrád
- Kategória:Ház
- Alkategória:Családi ház
- Alapterület:160 m2
- Telekterület:625 m2
- Csere is:Nem
- Hirdető:Cég
- Élő videón megtekinthető:Nem
- Építés éve:1988
- Szobaszám:5
- Állapot:Jó állapotú
- Hány szintes az ingatlan:2 szintes
- Tetőtér:nincs megadva
- Komfortosság:nincs megadva
- Pince:nincs megadva
- Parkolási lehetőség:Udvaron
- Fűtés:Gáz (konvektor)
- Bútorozottság:nincs megadva
- Fényviszony:Napfényes
- Tájolás:nincs megadva
- Kilátás:nincs megadva
- Internet:nincs megadva
- Klíma:Van
- Akadálymentesített:nincs megadva
- Energiatanúsítvány:nincs megadva
- Villany:Telken belül
- Víz:Telken belül
- Gáz:Telken belül
- Csatorna:nincs megadva
- Kapcsolatfelvétel

Majzik Alexandra
+36-(70)-429-5531
Mondd meg a hirdetőnek, hogy a megveszLAK-on találtad a hirdetést.
Referencia szám: M308289
Hitel ajánlatok
Ingatlan hirdetés leírása
Eladó Ház, Csongrád, Eladó jó állapotú ház - Csongrád
Kizárólag az OTP Ingatlanpont kínálatában!
Megvételre kínálok egy kiváló szerkezeti állapotú 5 szobás, kétszintes tégla házat Csongrádon, a Bökény városrész közkedvelt kertvárosi övezetében!
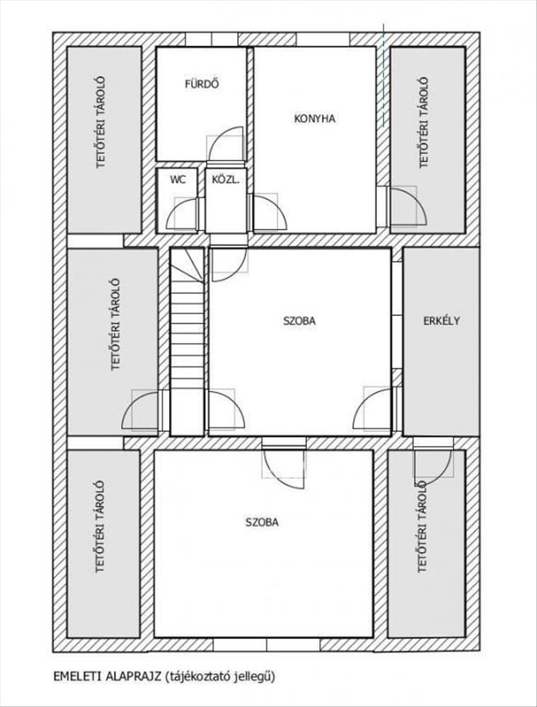
Az 1988-ban épült lakóház falazata Thermoton tégla, amely belső hőszigetelő betéttel rendelkezik. 160m2 hasznos alapterületű ház földszintjén egy nagy előtér, 3 külön nyíló szoba, tágas konyha, kamra, fürdőszoba és külön wc helyezkedik el, az előtérhez nagy terasz kapcsolódik. Az emeleti részen teljes értékű, 250cm belmagasságú helyiségek kerültek kialakításra, ami akár külön lakrészként is használható, mivel a nagy, erkélyes nappali mellett egy tágas szoba, konyha, külön fürdőszoba és wc kapott benne helyet, továbbá 5 praktikus tetőtéri tároló helyiség is rendelkezésre áll.
A homlokzat jó állapotú (nemesvakolat), csakúgy, mint a tetőszerkezet és héjazat (cserép). a szobák mindegyikében kifogástalan állapotú a parketta, az előtér, konyha és a vizes helyiségek kerámia burkolatúak. Mindkét fürdőszobában fürdőkád van, a melegvizet gázüzemű bojlerek szolgáltatják. a fűtés gázkonvektorokkal van megoldva. Az emeleti nappaliban egy klíma is beszerelésre került.
A fa nyílászárók dupla üvegezésűek, redőnnyel felszereltek.
A 625m2-es telken lehetőség van akár egy konyhakert kialakítására is, amelyet fúrt kútról lehet öntözni.
A ház a Holt-Tisza közvetlen közelében helyezkedik el, ami remek kiránduló hely és kiváló horgászvíz is egyben. Csendes nyugodt környék, az utca átmenő forgalomtól mentes. a közelben óvoda, iskola, élelmiszer bolt, egészségügyi ellátás, gyorsétterem és helyi járatos buszmegálló is megtalálható. a Körös-toroki strand biciklis távolságra van.
Az ingatlan per-, teher-, és igénymentes, minden közmű megtalálható benne. (A földszinti és az emeleti rész külön villanyórával rendelkezik. ) a térképvázlat rendben van. Rövid határidővel birtokba vehető.
Amennyiben felkeltettem érdeklődését, hívjon bizalommal!
Az OTP Ingatlanpont teljes körű ügyintézéssel áll az eladók és vevők rendelkezésére. a kínálatunkból választott ingatlan finanszírozásához kedvezményes hitelkonstrukciót biztosítunk. Az OTP Banknál elérhető Babaváró, falusi csok, CSOK Plusz hitel és egyéb kölcsönök intézését díjmentesen vállaljuk. Az adásvételi szerződés megkötéséhez igény szerint ügyvédet biztosítunk. Irodáink Szentes, Petőfi utca 12. a buszmegálló felől, és Csongrád, Fő utca 54. Szám alatt várjuk a személyes érdeklődőket. Válasszuk ki együtt az Önnek legmegfelelőbb ajánlatot banki sorban állás nélkül!
Referencia szám: m308289-ml FIX 3% lakáshitelre megvehető

