Eladó felújítandó ház Csongrád
| Kedvencbe | Megosztás | Árfigyelő |
| FIX 3% lakáshitelre megvehető | ||
| 10 900 000 HUF | ||
Ingatlan adatai
- Eladó vagy kiadó:Eladó
- Település:Csongrád
- Kategória:Ház
- Alkategória:Családi ház
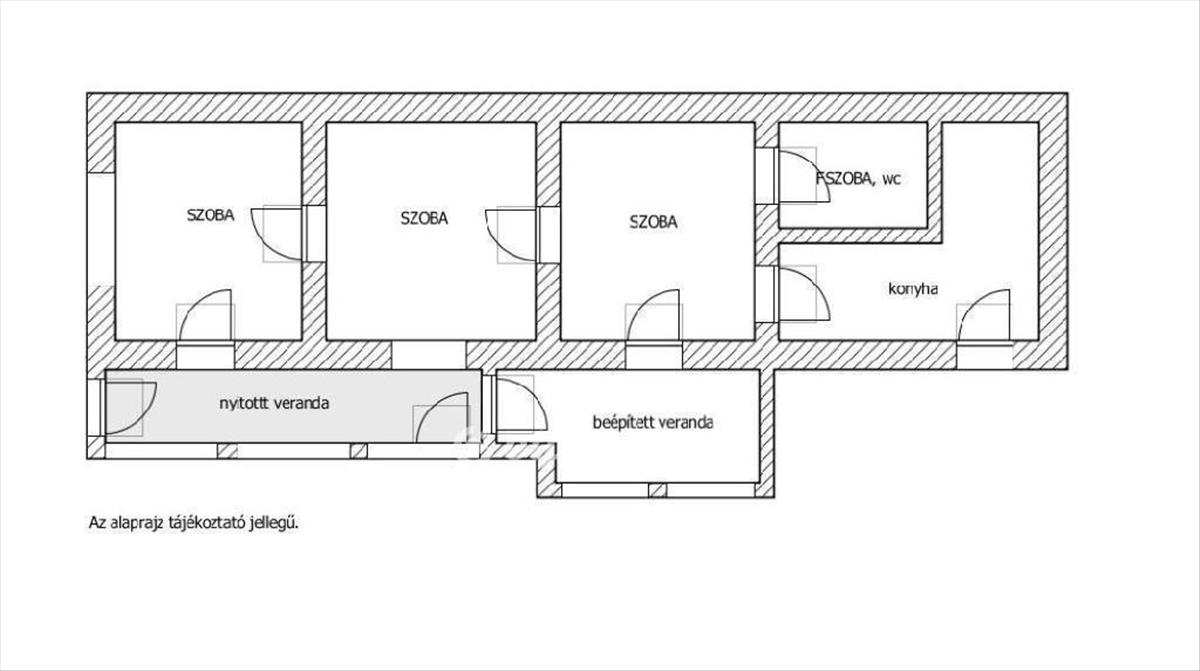
- Alapterület:86 m2
- Telekterület:559 m2
- Csere is:Nem
- Hirdető:Cég
- Élő videón megtekinthető:Nem
- Építés éve:1935
- Szobaszám:3
- Állapot:Felújítandó
- Hány szintes az ingatlan:Földszintes
- Tetőtér:nincs megadva
- Komfortosság:nincs megadva
- Parkolási lehetőség:Udvaron
- Fűtés:Egyéb
- Bútorozottság:nincs megadva
- Fényviszony:Közepes
- Tájolás:nincs megadva
- Kilátás:nincs megadva
- Internet:nincs megadva
- Akadálymentesített:nincs megadva
- Energiatanúsítvány:nincs megadva
- Villany:Telken belül
- Víz:Telken belül
- Gáz:Telken belül
- Csatorna:nincs megadva
- Üzenetküldés
- Hívás

Feketéné Bodor Regina
Mondd meg a hirdetőnek, hogy a megveszLAK-on találtad a hirdetést.
Referencia szám: M313890

Hitel ajánlat
Ingatlan hirdetés leírása
Eladó Ház, Csongrád, Eladó felújítandó ház - Csongrád
Csak az OTP Ingatlanpont kínálatában!Csongrád központhoz közeli csendes utcájában eladó, egy jó szerkezetű, felújítandó családi ház!
Az ingatlan kiváló lokációval rendelkezik. Az 559m2-es telken egy vegyes falazatú, felújításra szoruló lakóépület található. a 86m2 hasznos alapterületű házban 4 nagyobb helyiség, egy fürdőszoba, valamint egy nyitott és egy beépített veranda kapott helyet.
Villany, víz, csatorna közművel rendelkezik, a gáz a telken belül van, de gázóra jelenleg nincs.
A villanyhálózat részleges felújításon esett át, befejezésre vár.
A szobák betonosak.
Az ingatlan per, teher, és igénymentes.
Amennyiben felkeltettem érdeklődését, hívjon bizalommal!
Az OTP Ingatlanpont teljeskörű ügyintézéssel áll az eladók és vevők rendelkezésére. a kínálatunkból választott ingatlan finanszírozásához kedvezményes hitelkonstrukciót biztosítunk. Az OTP Banknál elérhető Babaváró, Otthon Start Hitelprogram, falusi csok, CSOK Plusz hitel és egyéb kölcsönök intézését díjmentesen vállaljuk. Az adásvételi szerződés megkötéséhez igény szerint ügyvédet biztosítunk. Irodáink Szentes, Petőfi utca 12. a buszmegálló felől, és Csongrád, Fő utca 54. Szám alatt várjuk a személyes érdeklődőket. Válasszuk ki együtt az Önnek legmegfelelőbb ajánlatot banki sorban állás nélkül!
Referencia szám: m313890 FIX 3% lakáshitelre megvehető

