Eladó felújítandó ház - Csopak
- INGYENES HIRDETÉS FELADÁS
Ingatlan adatai
- Feladva:4 hónapja a megveszLAK-on
- Eladó vagy kiadó:Eladó
- Település:Csopak
- Kategória:Ház
- Alkategória:Családi ház
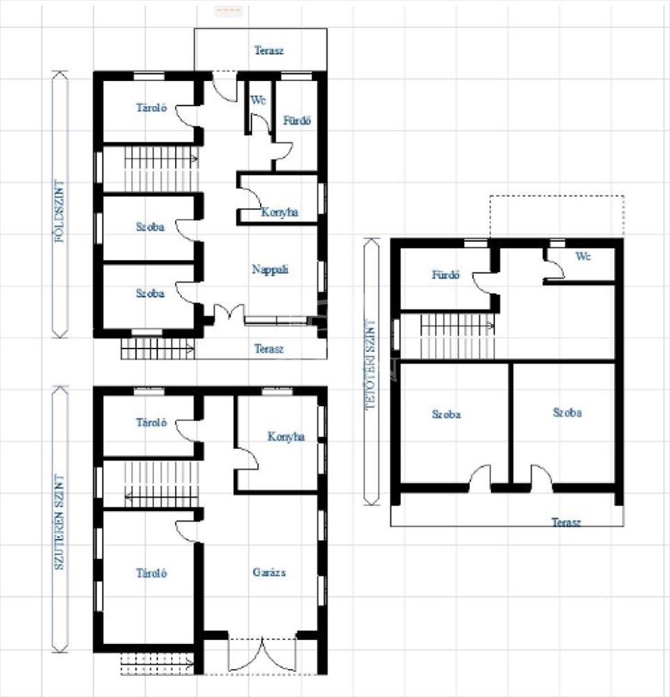
- Alapterület:240 m2
- Telekterület:1207 m2
- Csere is:Nem
- Hirdető:Cég
- Élő videón megtekinthető:Nem
- Építés éve:1985
- Szobaszám:5
- Állapot:Felújítandó
- Hány szintes az ingatlan:3 szintes
- Tetőtér:nincs megadva
- Komfortosság:nincs megadva
- Pince:nincs megadva
- Parkolási lehetőség:Garázsban
- Fűtés:Egyéb
- Bútorozottság:nincs megadva
- Fényviszony:nincs megadva
- Tájolás:nincs megadva
- Kilátás:nincs megadva
- Internet:nincs megadva
- Klíma:nincs megadva
- Akadálymentesített:nincs megadva
- Energiatanúsítvány:nincs megadva
- Villany:Van
- Víz:Van
- Gáz:Utcában
- Csatorna:Utcában
- Kapcsolatfelvétel

Miklósné Csapó Andrea
+36-(20)-397-5326
Mondd meg a hirdetőnek, hogy a megveszLAK-on találtad a hirdetést.
Hitel ajánlatok
Ingatlan hirdetés leírása
Csopak egyik csendes, nyugodt utcájában egy 1207 m2-es telken ...
Csopak egyik csendes, nyugodt utcájában egy 1207 m2-es telken lévő balatoni panorámás, 240 m2- es házat kínálom megvételre, a GDN Ingatlanhálózat kínálatából!
- a tágas, világos elrendezésű otthon 5 szobát, 2 konyhát, valamint 2 fürdőszobát WC-vel foglal magában.
- Tárolók is találhatóak az épületben, mely akár irodának vagy szobának is kialakíthatók, így akár 2 különálló generációnak is alkalmas lehet az ingatlan.
- a ház alatt található egy szuterén rész, garázzsal, konyhával és tárolóhelyiséggel, amely tökéletes hobbihelyiségnek, vagy akár kisebb vállalkozás kialakításának.
- a ház fa nyílászárókat kapott, a tető héjazata pala.
- Az ingatlannak 3 kisebb terasza, erkélye van.
- Ugyan a tetőtérbe jutáshoz a lépcső feljáró nincs teljesen befejezve, de megoldható a megtekintés alkalmával.
- Mind a 3 szintről a balatoni panoráma látható, illetve Csopak város szépsége és dombja is.
- a kert fákkal és bokrokkal teli, kisebb tereprendezést igényel ugyan, de nagyon romantikus a hangulata és a 2 különböző panoráma, a kertből, csodálatos élményt nyújt.
- a ház jó állapotú, víz és villany közművel rendelkezik, de hosszabb távon igény szerint - felújítható, így új tulajdonosa a saját ízlése szerint alakíthatja, bővítheti tovább.
- Értéknövelő előnyök:
Pince + szuterén + tetőtér = rengeteg lehetőséget jelent!
Ez az ingatlan ideális választás lehet otthonnak, nyaralónak vagy akár befektetésnek is Csopak egyik legcsendesebb részén.
Ne hagyja ki ezt a remek lehetőséget!
Amennyiben a veszprémi GDN Ingatlaniroda által kínált rengeteg lehetőséget rejtő családi ház, vagy bármely, a kínálatunkban található ingatlan felkeltette érdeklődését, forduljon hozzám bizalommal!
Ingatlanirodánk díjmentes, banksemleges hitelügyintézéssel, illetve ügyvédi tanácsadással is áll Ügyfeleink rendelkezésére! FIX 3% lakáshitelre megvehető
Tetszett ez az eladó Csopaki felújítandó 5 szobás családi ház? Hívd fel a hirdetőt most, és tudj meg mindent erről az eladó családi házról! Ha gondolod nézelődj tovább az eladó ház Csopak oldal hirdetései között. Ennek az eladó háznak az ára 99000000 Ft és mivel az alapterülete 240 négyzetméter, ezért az átlagos négyzetméterára 412500 HUF/m2.
Az eladó házak menüpontban további hirdetések között is böngészhetsz. Ha van kedved, akkor böngészhetsz a Miklósné Csapó Andrea összes hirdetése között, vagy akár a/az GDN Ingatlanhálózat összes hirdetése között is.
További hirdetéseket találsz az eladó Balaton északi parti nyaralók között. Ha a teljes régió kínálata érdekel, nézd meg az eladó Balatoni nyaralók oldalt.

