+ 24 fotó

Eladó átlagos állapotú ház Csorna
| |  |
| Kedvencbe | Megosztás | Árfigyelő |
- Eladó vagy kiadó:Eladó
- Település:Csorna
- Kategória:Ház
- Alkategória:Családi ház
- Alapterület:140 m2
- Telekterület:407 m2
- Csere is:Nem
- Hirdető:Cég
- Élő videón megtekinthető:Nem
- Építés éve:1985
- Szobaszám:4
- Állapot:Átlagos állapotú
- Hány szintes az ingatlan:2 szintes
- Tetőtér:nincs megadva
- Komfortosság:nincs megadva
- Parkolási lehetőség:Garázsban
- Fűtés:nincs megadva
- Bútorozottság:nincs megadva
- Fényviszony:nincs megadva
- Tájolás:nincs megadva
- Kilátás:nincs megadva
- Internet:nincs megadva
- Akadálymentesített:nincs megadva
- Energiatanúsítvány:nincs megadva
- Villany:Telken belül
- Víz:Telken belül
- Gáz:Telken belül
- Csatorna:Telken belül

Hima Zsuzsanna
Mondd meg a hirdetőnek, hogy a megveszLAK-on találtad a hirdetést.

Az ingatlan megfelel az Otthon Start Hitelprogram feltételeine...
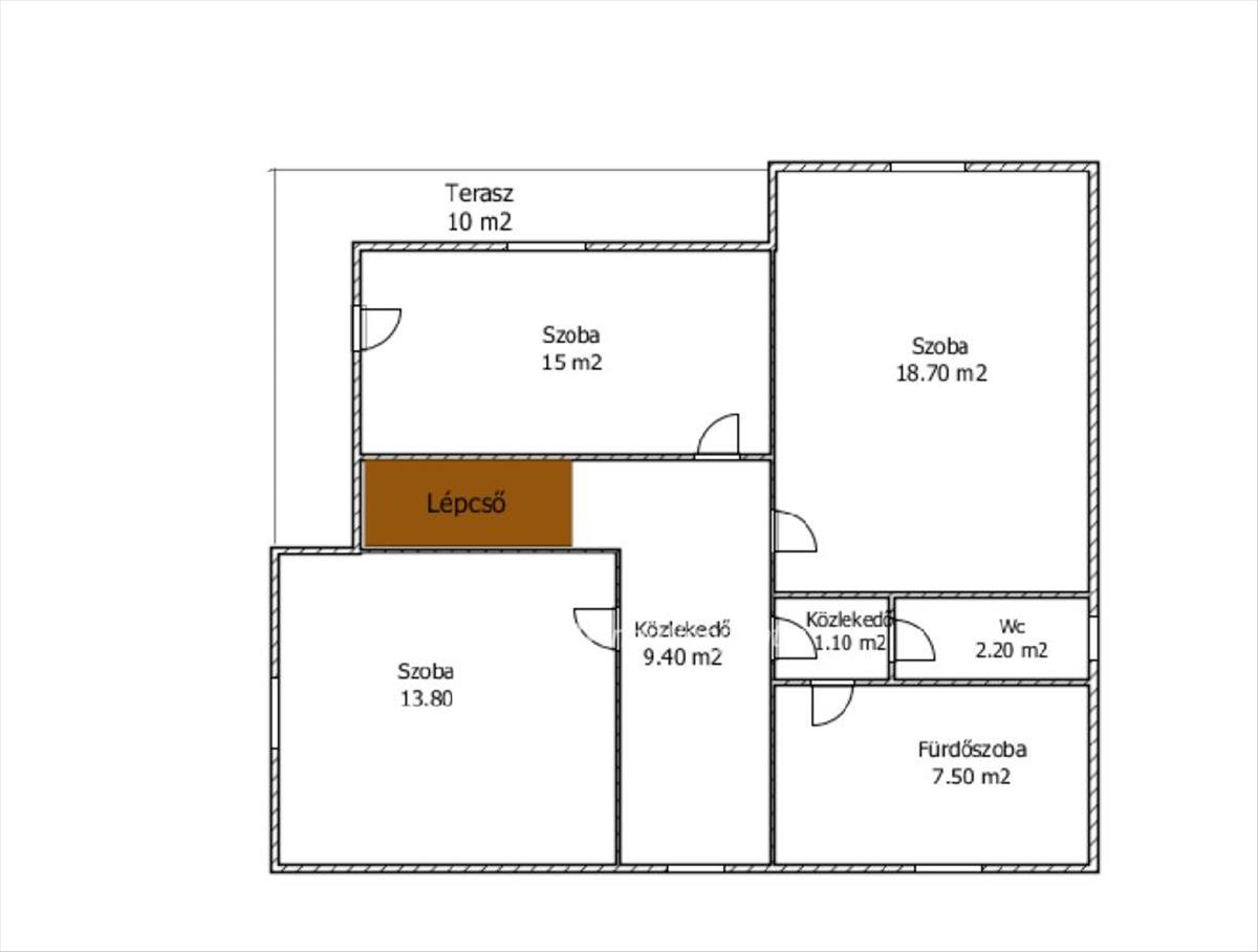
Az ingatlan megfelel az Otthon Start Hitelprogram feltételeinek! Csorna belvárosában keresi új tulajdonosát egy belső kétszintes, jó elosztású, duplakomfortos családi ház. Az ingatlan 140 m2-es, 3 szoba+ nappalis, igény szerint felújítandó állapotú. Az otthon melegét vegyestüzelésű kazán ill. Gázkazán biztosítja, radiátoros hőleadással. Az autódat egy fűtött garázsban biztonságban tudhatod. Amennyiben hirdetésem felkeltette az érdeklődését, keressen bizalommal!
Referenciaszám: m314052
FIX 3% lakáshitelre megvehető Hasonló ingatlan hirdetések