Eladó átlagos állapotú ház - Csorna
- INGYENES HIRDETÉS FELADÁS
Ingatlan adatai
- Eladó vagy kiadó:Eladó
- Település:Csorna
- Kategória:Ház
- Alkategória:Családi ház
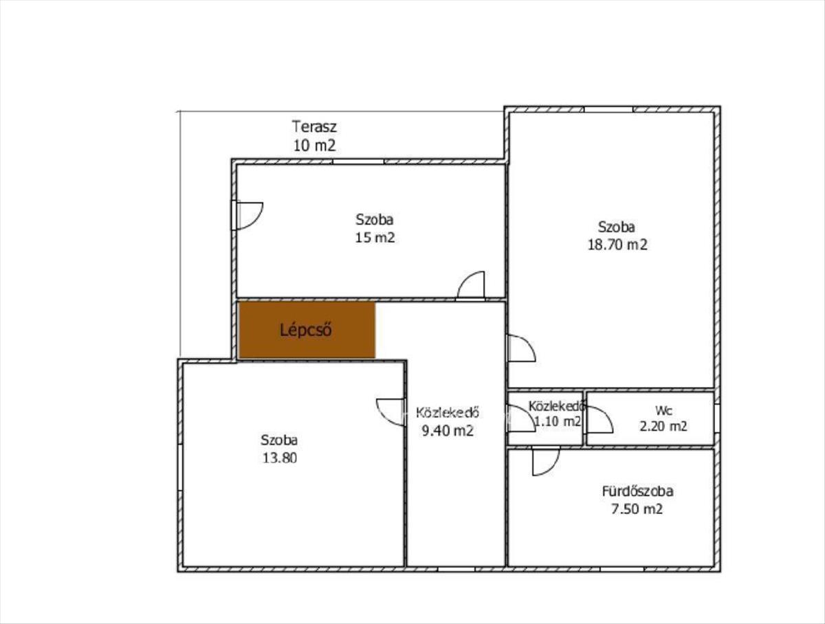
- Alapterület:140 m2
- Telekterület:407 m2
- Csere is:Nem
- Hirdető:Cég
- Élő videón megtekinthető:Nem
- Építés éve:1985
- Szobaszám:4
- Állapot:Átlagos állapotú
- Hány szintes az ingatlan:2 szintes
- Tetőtér:nincs megadva
- Komfortosság:nincs megadva
- Pince:nincs megadva
- Parkolási lehetőség:Teremgarázsban
- Fűtés:Gáz (cirko)
- Bútorozottság:nincs megadva
- Fényviszony:Napfényes
- Tájolás:nincs megadva
- Kilátás:nincs megadva
- Internet:nincs megadva
- Klíma:nincs megadva
- Akadálymentesített:nincs megadva
- Energiatanúsítvány:nincs megadva
- Villany:Telken belül
- Víz:Telken belül
- Gáz:Telken belül
- Csatorna:nincs megadva
- Kapcsolatfelvétel

Szabó Gábor
+36-(70)-639-8927
Mondd meg a hirdetőnek, hogy a megveszLAK-on találtad a hirdetést.
Referencia szám: M314052
Hitel ajánlatok
Ingatlan hirdetés leírása
Eladó Ház, Csorna, Eladó átlagos állapotú ház - Csorna
Az ingatlan megfelel az Otthon Start Hitelprogram feltételeinek! Csorna belvárosában keresi új tulajdonosát egy belső kétszintes, jó elosztású, duplakomfortos családi ház. Az ingatlan 140 m2-es, 3 szoba+ nappalis, igény szerint felújítandó állapotú. Az otthon melegét vegyestüzelésű kazán ill. Gázkazán biztosítja, radiátoros hőleadással. Az autódat egy fűtött garázsban biztonságban tudhatod. Amennyiben hirdetésem felkeltette az érdeklődését, keressen bizalommal!
Referenciaszám: M314052
Amennyiben felkeltettük érdeklődését, kérem hívjon bizalommal!
Szabó Gábor +36-70-639-8927
Referencia szám: m314052-ml FIX 3% lakáshitelre megvehető
Tetszett ez az eladó Csornai átlagos állapotú 4 szobás családi ház? Hívd fel a hirdetőt most, és tudj meg mindent erről az eladó családi házról! Ha gondolod nézelődj tovább az eladó ház Csorna oldal hirdetései között. Ennek az eladó háznak az ára 52900000 Ft és mivel az alapterülete 140 négyzetméter, ezért az átlagos négyzetméterára 377857 HUF/m2.
Az eladó házak menüpontban további hirdetések között is böngészhetsz. Ha van kedved, akkor böngészhetsz a Szabó Gábor összes hirdetése között, vagy akár a/az OTPip Mosonmagyaróvár Lucsony utca 20 - OTP Ingatlanpont Iroda összes hirdetése között is.

