Eladó újszerű állapotú ház - Csörög
- INGYENES HIRDETÉS FELADÁS
Ingatlan adatai
- Eladó vagy kiadó:Eladó
- Település:Csörög
- Kategória:Ház
- Alkategória:Családi ház
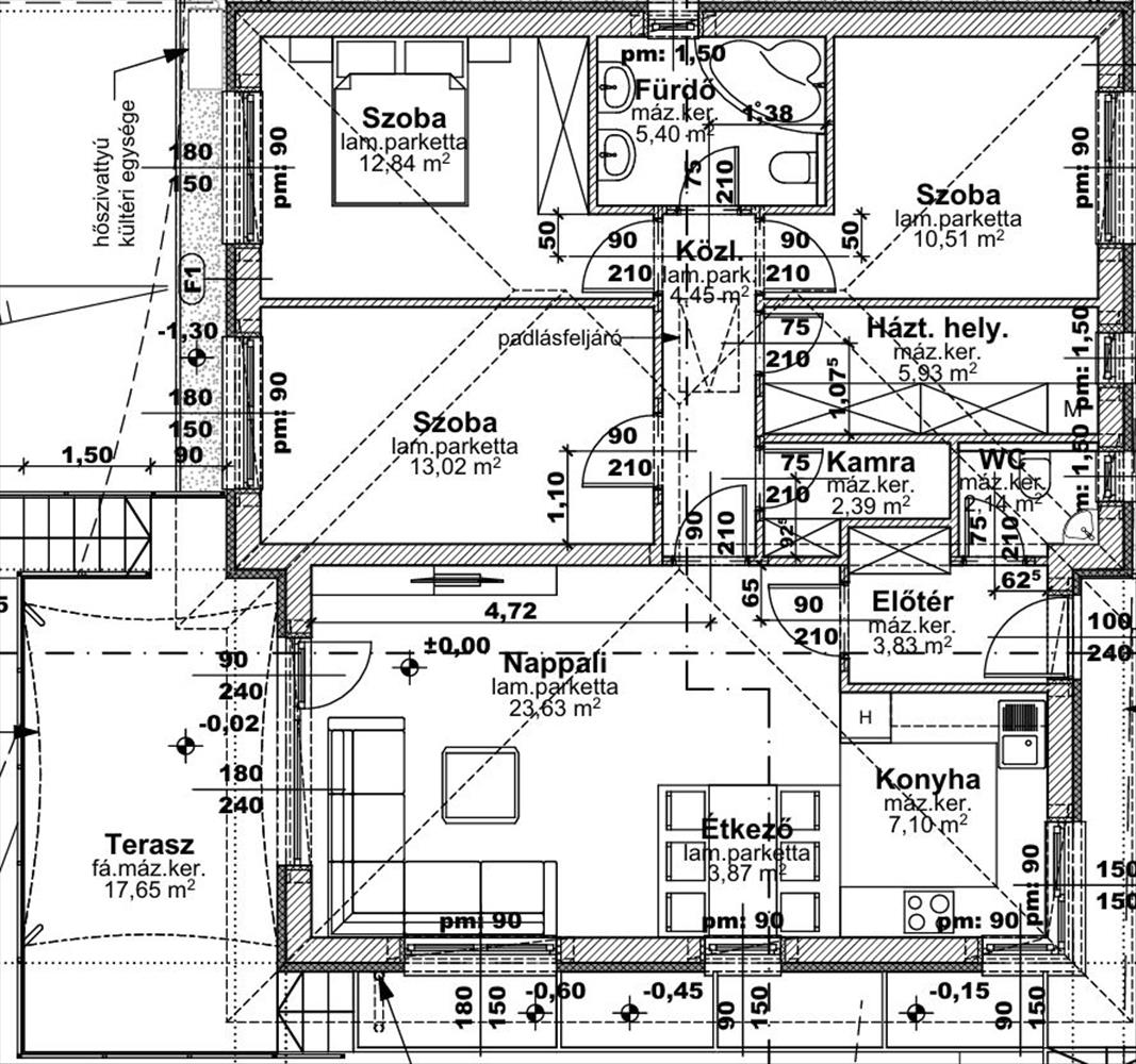
- Alapterület:96 m2
- Telekterület:750 m2
- Csere is:Nem
- Hirdető:Cég
- Élő videón megtekinthető:Nem
- Szobaszám:4
- Állapot:Újszerű, kitűnő
- Hány szintes az ingatlan:nincs megadva
- Tetőtér:nincs megadva
- Komfortosság:nincs megadva
- Pince:Nincs
- Parkolási lehetőség:nincs megadva
- Fűtés:nincs megadva
- Bútorozottság:nincs megadva
- Fényviszony:nincs megadva
- Tájolás:nincs megadva
- Kilátás:nincs megadva
- Internet:nincs megadva
- Klíma:nincs megadva
- Akadálymentesített:nincs megadva
- Energiatanúsítvány:nincs megadva
- Villany:nincs megadva
- Víz:nincs megadva
- Gáz:nincs megadva
- Csatorna:nincs megadva
- Kapcsolatfelvétel

Czirják Mihály
+36-(20)-220-9995
Mondd meg a hirdetőnek, hogy a megveszLAK-on találtad a hirdetést.
Hitel ajánlatok
Ingatlan hirdetés leírása
Újépítésű, hőszivattyús családi ház nagy telekkel Csörögön! ...
Új építésű, hőszivattyús családi ház nagy telekkel Csörögön!
Eladóvá vált egy kiváló adottságokkal rendelkező, új építésű, önálló családi ház Csörög egyik kedvelt, aszfaltozott utcájában. Ha fontos Önnek az alacsony rezsi és a minőségi kivitelezés, ezt az ingatlant látnia kell!
Főbb paraméterek:
Vételár: 95. 500. 000 Ft
Alapterület: 95 nm lakótér + 17, 65 nm terasz
Telekméret: 800 nm (tágas, jól alakítható kert)
Energetika: Modern hőszivattyús rendszer (minimális rezsiköltség! )
Elrendezés és helyiségek:
A ház tervezésekor a praktikum volt a fő szempont. a belső terek elosztása ideális családok számára:
Nappali – Étkező – Konyha: tágas, kertkapcsolatos közösségi tér
3 külön nyíló hálószoba
Kényelmi extrák: külön fürdőszoba és külön wc, valamint egy nélkülözhetetlen kamra és háztartási helyiség.
Terasz: 17, 65 nm , amely tökéletes helyszíne a nyári reggeliknek és esti beszélgetéseknek.
Miért válassza ezt az ingatlant?
Önálló ház: Nincs közös fal a szomszéddal, teljes intimitás.
Korszerű technológia: a hőszivattyús fűtésnek köszönhetően a fenntartási költségek rendkívül alacsonyak, az ingatlan megfelel a legmodernebb energetikai elvárásoknak.
Hatalmas telek: a 800 nm -es területen bőven van hely játszótérnek, konyhakertnek vagy akár medencének is.
Kiváló lokáció: Csörög dinamikusan fejlődő település, remek közlekedéssel és nyugodt, családias hangulattal.
Ne maradjon le erről a lehetőségről! Az ingatlan rugalmasan megtekinthető, keressen bizalommal a hét bármely napján! FIX 3% lakáshitelre megvehető
Tetszett ez az eladó Csörögi újszerű állapotú 4 szobás családi ház? Hívd fel a hirdetőt most, és tudj meg mindent erről az eladó családi házról! Ha gondolod nézelődj tovább az eladó ház Csörög oldal hirdetései között. Ennek az eladó háznak az ára 95500000 Ft és mivel az alapterülete 96 négyzetméter, ezért az átlagos négyzetméterára 994792 HUF/m2.
Az eladó házak menüpontban további hirdetések között is böngészhetsz. Ha van kedved, akkor böngészhetsz a Czirják Mihály összes hirdetése között, vagy akár a/az Dunakeszi Ingatlanközpont összes hirdetése között is.

